Hallonbergen

Lötsjövägen 1 A, 2tr

Till salu

- Kontakta mäklare för visning -
Underbar 2:a i etage med snyggt nyrenoverat kök och fräscha ytskikt. Ett stenkast ifrån både bussar och tunnelbana får ni en lägenhet med goda sociala ytor och härlig balkong med eftermiddagssol. Perfekt för paret eller den mindre familjen. Yteffektiv 2:a med låg avgift och närhet till både grönska och puls. Lägenheten har sedan bilderna renoverats till en modern stil.

Området erbjuder även på trevliga grönområden med Ursvik, Lötsjön och Råstasjön i framkant men man har även otroligt bra strategiskt läge med närhet till E4 och E18. En frisk promenad förbi sjöarna har man även Arenastaden med Mall of Scandinavia som har ett enormt utbud av butiker, restauranger, biografer och även Nationalarenan bredvid. Hallonbergen centrum fräschas upp och kommer under de närmaste åren genomgå stora renoveringar.

Välkomna till ett hem som måste upplevas!

Visa mer
Lötsjövägen 1 A, 2tr Lötsjövägen 1 A, 2tr [email protected] Svenska Mäklarhuset

SNABBFAKTA

  • Pris: 2 495 000 SEK
  • Boarea: 62.5 kvm föreningens information
  • Antal rum: 2 rum
  • Våning: 2 av 6, hiss finns
  • Avgift: 3 015 kr. Värme, vatten, bredband, el (bredband och el specas separat, bredband 59:-/mån 1000mbit/1000mbit. El faktureras beroende på förbrukning)
  • Förening: Brf Kompassen 1
  • Byggnadsår: 1972 - oå 1993
  • Område: Hallonbergen, Sundbyberg

2 495 000 SEK

Visningar

Intresserad av visning? Vänligen kontakta mäklaren.

Intresseanmälan
Ansvarig mäklare

René Tchini

Reg. fastighetsmäklare

Vardagsrum

Stort och rymligt vardagsrum med vackra nymålade väggar i ljus kulör som lyses upp tack vare det större fönsterpartiet. Vardagsrums ytorna bjuder in till goda möbleringsalternativ med gott om utrymme för både större soffgrupp men även middagsbord för ett större sällskap. Genomgånde nylagd parkett finnes i detta trevliga vardagsrum.

Lötsjövägen 1 A, 2tr
Lötsjövägen 1 A, 2tr
Lötsjövägen 1 A, 2tr
Lötsjövägen 1 A, 2tr
Lötsjövägen 1 A, 2tr

Kök

Härligt renoverat kök med robust maskinell utrustning som består av diskmaskin, rostfri kyl/frys, inbyggnadsugn, inbyggnadsmicro, häll och en stilren och rostfri fläkt. Ovan den ljusa bänkskivan av trä som erbjuder goda arbetsytor ligger snyggt kakel som inger en modern känsla i detta trevliga kök. Köksluckorna karaktäriseras av vit kulör. Tack vare flertalet över- och underskåp har man goda förvaringsmöjligheter här. Ett kök att trivas i!

Lötsjövägen 1 A, 2tr
Lötsjövägen 1 A, 2tr
Lötsjövägen 1 A, 2tr
Lötsjövägen 1 A, 2tr

Hall

Välkomnande hall med goda avhängningsmöjligheter. Från hallen når man lägenhetens sovrum och trappan som tar en till lägenhetens nedervåning. Hallen har en ljus färgsättning på väggarna och ett golv i trä viket är ett genomgående tema i lägenheten. I anslutning till den nedre hallen finner man även en rymlig klädkammare/förråd som med användningsområden såsom kontor eller dylikt.

Lötsjövägen 1 A, 2tr
Lötsjövägen 1 A, 2tr

Badrum

Stambytt badrum med helkaklade väggar och våtrumsmatta . För den som gillar att njuta i badkar finns här gott om utrymme för det. Utöver detta är badrummet utrustat med nyinstallerad WC, nytt stiligt handfat med kommod, stilig dusch samt tvättmaskin och torktumlare. Ett badrum att trivas i!

Lötsjövägen 1 A, 2tr

Sovrum

Härligt och rymligt sovrum med mycket bra ytor för dubbelsäng med tillhörande sängmöblemang. Stort fönsterparti som inbjuder till gott ljusinsläpp som lyser upp det nylagda parkettgolvet och de målade väggarna i ljus kulör. Bra med förvaringsmöjligheter finnes via sovrummets stora garderober som är smidigt inbyggda längs ena väggen. Rummets generösa rymd bjuder in till fler garderobslösningar om så önskas!

Lötsjövägen 1 A, 2tr

Balkong

Här får man en trevlig och rymlig balkong med härlig eftermiddagssol. Balkongens rymd erbjuder gott om utrymme för diverse balkongmöblemang och utemöbler.

Lötsjövägen 1 A, 2tr

Exteriör

Fastigheten ligger precis invid Hallonbergen centrum med goda kommunikationer tack vare tunnelbanan och bussar åt olika håll. Man har även närhet till matbutiker och service. Föreningen har även en trevlig privat innergård med lekplats för barnen. Välkommen!

Lötsjövägen 1 A, 2tr
Lötsjövägen 1 A, 2tr

Sundbyberg

För dig som gillar känslan av stad och puls! Sundbyberg är en liten stad i storstaden och här finns allt ni behöver inom ett bekvämt räckhåll, som en mångfald av butiker av alla dess slag, mysiga caféer och konditorier samt omtyckta och välbesökta restauranger. Flera alternativ finns när det gäller mataffärer, och för dig som pendlar erbjuds här suveränt goda kommunikationer.

Lötsjövägen 1 A, 2tr
Lötsjövägen 1 A, 2tr
Lötsjövägen 1 A, 2tr
Lötsjövägen 1 A, 2tr
Lötsjövägen 1 A, 2tr
Lötsjövägen 1 A, 2tr

Närområde

Invid bostaden finns Hallonbergens centrum med stort utbud av butiker och caféer. På gångavstånd finns även Matrebellerna och Coop Konsum.
En frisk promenad förbi sjöarna har man även Arenastaden med Mall of Scandinavia som har ett enormt utbud av butiker, restauranger, biografer och även Nationalarenan bredvid. Med detta läge är det aldrig långt till natur och rekreation. På bara några minuters promenad eller cykeltur nås Lötsjön med dess promenadstråk åt ena hållet och Ursvik med Igelbäckens naturreservat åt andra hållet. Reservatet skapar goda förutsättningar för naturupplevelser och friluftsliv i storstadens absoluta närhet. Det ska också skydda och bevara Igelbäcken som ett levande vattendrag. Det finns löp- och skidspår, knattespår, grillplatser och en motionsgård. Det finns även en allaktivitetspark med lekplats och fotbollsplaner m.m.

Visa mer

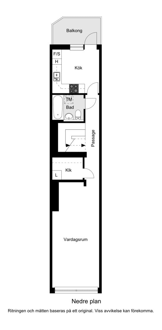
Planlösning

Lötsjövägen 1 A, 2tr
Lötsjövägen 1 A, 2tr

Om bostaden

- Kontakta mäklare för visning -
Underbar 2:a i etage med snyggt nyrenoverat kök och fräscha ytskikt. Ett stenkast ifrån både bussar och tunnelbana får ni en lägenhet med goda sociala ytor och härlig balkong med eftermiddagssol. Perfekt för paret eller den mindre familjen. Yteffektiv 2:a med låg avgift och närhet till både grönska och puls. Lägenheten har sedan bilderna renoverats till en modern stil.

Området erbjuder även på trevliga grönområden med Ursvik, Lötsjön och Råstasjön i framkant men man har även otroligt bra strategiskt läge med närhet till E4 och E18. En frisk promenad förbi sjöarna har man även Arenastaden med Mall of Scandinavia som har ett enormt utbud av butiker, restauranger, biografer och även Nationalarenan bredvid. Hallonbergen centrum fräschas upp och kommer under de närmaste åren genomgå stora renoveringar.

Välkomna till ett hem som måste upplevas!

Visa mer

ALLMÄNT

BOENDEFORM
Lägenhet
UPPLÅTELSEFORM
Bostadsrätt
Lägenhetsnummer
1A1206
Månadsavgift
3 015 kr, Värme, vatten, bredband, el (bredband och el specas separat, bredband 59:-/mån 1000mbit/1000mbit. El faktureras beroende på förbrukning)
Antal rum
2 rum + Kök
Boarea
62.5 m² föreningens information
Våning
2 av 6, hiss finns
Andel i förening
0,59 %
Andel av årsavgift
0,55 %
Nettoskuldsättning
771 166 kr
Allmänt om lägenheten
KABEL-TV/BREDBAND
Kabel-TV via ComHem eller och gruppanslutning Stockholmsstadsnät fiber med obligatoriskt tillägg om 79kr/mån för 1000/1000mbit fiberuppkoppling.

PARKERING
I området gäller boendeparkering på hänvisade gator, detta till en kostnad om 960kr/4 månader. Föreningen har inga egna p-platser. Q-park tillhandahåller p-platser för uthyrning i området. Kontakta Q-park för tillgänglighet och pris!

FÖRRÅD
Till lägenheten hör nyttjanderätten till ett källarförråd.

GÅRD
Mysig innergård med lekplats för barnen. Avskilt från trafiken.

TVÄTTSTUGA
Bra tvättstuga med moderna maskiner samt lätt att få tider. Ligger på första våningen.

KOMMUNIKATIONER
Ett stenkast från bostaden nås tunnelbanestationen som på ca 13 min tar dig till T-Centralen via blå linje mot Kungsträdgården. En station ifrån mot Akalla har man även Kista med Kista Galleria som erbjuder stort utbud av butiker och service. Från torget nås även stort antal bussar mot olika håll.

Föreningen

Namn
Brf Kompassen 1
ORGANISATIONSFORM/TYP
Bostadsrätt
Antal lägenheter
174 lägenheter varav 26 hyresrätter, 8 lokaler
Tillåter föreningen juridisk person
Nej
Äger föreningen marken
Ja
Allmänt om föreningen
Brf Kompassen 1 äger fastigheten Kompassen 1 i Hallonbergen, Sundbyberg och bildades 2012. Föreningen består av 210 medlemslägenheter varav 174 bostadsrätter och 26 hyresrätter samt 8 lokaler. I föreningen finns en väldigt fin tvättstuga som enkelt kan bokas via föreningens hemsida eller utanför tvättstugan. Stambyte skedde -93.

En överlåtelseavgift om 2,5% av rådande prisbasbelopp debiteras köparen.
En pantsättningsavgift om 1% per pant av rådande prisbasbelopp debiteras låntagaren.
FÖRENINGENS EKONOMI
Inga kommande avgifts förändringar (2024-05-23)
Tv och Bredband
Kabel-TV via ComHem och gruppanslutning Stockholmsstadsnät fiber med obligatoriskt tillägg om 79kr/mån för 1000/1000mbit fiberuppkoppling.
Parkering
I området gäller boendeparkering på hänvisade gator. Föreningen har inga egna p-platser. Q-park tillhandahåller p-platser för uthyrning i området. Kontakta Q-park för tillgänglighet och pris.
FÖRSÄKRING
Bostadsrättstillägg ingår ej
Övrigt
Föreningen uppgraderade under 2018 ventilation/värme för att sänka driftskostnaderna.

Länkar:
https://www.sundbyberg.se/kompassen
FÖRENINGENS RENOVERINGAR
1993 - Stambyte kök/badrum
1993 - Renovering tak
1991 - Bytt panna/uppvärmningssystem
1991 - Byte av elstigar/elcentral
1991 - Omdragning av el i lägenheten
2010 - Alla tvättmaskiner och torktumlare utbytta 2010 och framåt
2013 - Fräschat upp gårdarna
2014 - 2 hissar utbytta (motorerna)
2014 - Husens tak ommålade
2014 - Lamparmaturer utbytta (ledlampor)
2014 - Fjärrvärme utbytt
2016 - Ventilationsbyte
2016 - Hissrenovering Hallonbergsplan 6
2017 - Hissrenovering Hallonbergsplan 2
2017 - Hiss på Hallonbergsplan 12 har bytts ut
2018 - Byte av låssystem
2018 - Ovk -kontroll av samtliga lägenheter och lokaler har genomförts
2018 - Stamspolning av samtliga lägenheter och lokaler
2018 - Teknisk undersökning gällande byte av alla stamventiler
2019 - Justera betongplattor Örsvängen 2-4
2019-Måla träpanel i tvättstuga
2019- Byta tvättmaskiner Hallonbergsplan
2019- Byta torktumlare Lötsjövägen 1A
2020- OVK besiktning lokaler
2021- Byte av torkskåp till Hallonbergsplan 2

Inga kommande renoveringar 2024-05-23

dokument

BYGGNADSFAKTA

Byggnadstyp
Flerbostadshus
BYGGNADSÅR
1972
Kommentar BYGGNADSÅR
oå 1993
Uppvärmning
Vattenburen fjärrvärme
Fönster
2-glas isoler
Hiss
Ja

Ekonomi

Utgångspris
2 495 000 kr
Pantsatt
Ja

DRIFT

El
3 000 kr/år
Försäkring
2 400 kr/år
DRIFTKOSTNAD TOTAL
5 400 kr/år
Kommentar
Notera att driftkostnaderna är enligt schablon, är personliga och varierar.
Energideklaration
Utförd 2010-11-24

Allmänt om området

Fastighetsmäklare i Hallonbergen

VAD ÄR DIN BOSTAD VÄRD?

René Tchini

"Jag hjälper dig gärna med en kostnadsfri värdering."

René Tchini

Reg. fastighetsmäklare

VAD ÄR DIN BOSTAD VÄRD?

Jag hjälper dig gärna med en kostnadsfri värdering.

Bolånekalkyl

Hitta bostaden

Kunderna har sagt sitt
SVENSKA MÄKLARHUSET
ÄR DEN KEDJA SOM HAR
MEST NÖJDA KUNDER.

Enligt SKI - Svenskt Kvalitetsindex, där 1520 kunder i Sverige har tillfrågats om sin senaste bostadsaffär, är SMH - Svenska Mäklarhuset den mäklarkedja som placerar sig allra högst. Vill du också bli nöjd?

Kontakta oss idag oavsett som du ska sälja din bostad eller köpa en ny.

Till kontaktformuläret

Vi tar hjälp av cookies för att tillhandahålla våra tjänster. Genom att använda denna webbplats godkänner du att vi använder cookies.

Vardagsrum

Lötsjövägen 1 A, 2tr
Lötsjövägen 1 A, 2tr
Lötsjövägen 1 A, 2tr
Lötsjövägen 1 A, 2tr
Lötsjövägen 1 A, 2tr

Kök

Lötsjövägen 1 A, 2tr
Lötsjövägen 1 A, 2tr
Lötsjövägen 1 A, 2tr
Lötsjövägen 1 A, 2tr

Hall

Lötsjövägen 1 A, 2tr
Lötsjövägen 1 A, 2tr

Badrum

Lötsjövägen 1 A, 2tr

Sovrum

Lötsjövägen 1 A, 2tr

Balkong

Lötsjövägen 1 A, 2tr

Exteriör

Lötsjövägen 1 A, 2tr
Lötsjövägen 1 A, 2tr

Sundbyberg

Lötsjövägen 1 A, 2tr
Lötsjövägen 1 A, 2tr
Lötsjövägen 1 A, 2tr
Lötsjövägen 1 A, 2tr
Lötsjövägen 1 A, 2tr
Lötsjövägen 1 A, 2tr

Planlösning

Lötsjövägen 1 A, 2tr
Lötsjövägen 1 A, 2tr