Trollhättan

Torngatan 78

BUDGIVNING PÅGÅR

Tag chansen att gå på visning till detta välskötta parhus byggt -88, på friköpt fastighet, med tillhörande garage och ett fint läge med stor insynsskyddad baksida med mysig trädgårdstomt. Fastigheten passar många skeden i livet, men kanske perfekt för dig som söker din första bostad och önskar egen trädgårdstomt, uteplatser och allt som villa livet erbjuder.

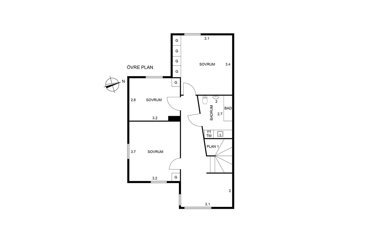
Bostaden om 106 kvm har en tilltalande planlösning och inrymmer tre sovrum och ett badrum på varje plan. På entréplanet återfinns trivsamma sällskapsytor med braskamin och utgång till insynsskyddad uteplats. Ovanvåningens yta är också väldisponerad med tre sovrum och rymligt badrum med tvättmöjligheter.

Fastigheten har vattenburet värmesystem med fjärrvärme, indragen fiber och mekanisk ventilation med värmeåtervinning.
Fastigheten är belägen i populärt och barnvänligt område intill barnomsorg, natur och med kort gångavstånd till sjukhuset som är en stor arbetsgivare för regionen. Tills nu har fastigheten varit uthyrd och nuvarande ägare Eidar söker ny ägare.

Visa mer
Torngatan 78 Torngatan 78 [email protected] Svenska Mäklarhuset

SNABBFAKTA

  • Pris: 2 350 000 SEK
  • Boarea: 106 kvm + 12 kvm biarea
  • Tomtarea: 579 kvm
  • Byggnadsår: 1988
  • Område: Trollhättan, Trollhättan
  • Besiktigad: Ja
  • Fastighetsbeteckning: Rubinen 9
Högsta BUD

2 022 000 SEK

På webbplatsen redovisas normalt alla inkomna bud. Undantagsvis kan det förekomma att säljaren beslutar att ett visst bud inte ska redovisas på webbplatsen. Du kan alltid vända dig till mäklaren för att få information om samtliga bud. Samtliga bud noteras också i den budgivningslista som mäklaren enligt lag ska upprätta och överlämna till köpare och säljare.

Visa mer

Visningar

Intresserad av visning? Vänligen kontakta mäklaren.

Intresseanmälan
Ansvarig mäklare

Sofia Arvidsson

Reg. fastighetsmäklare / Franchisetagare

Välkommen till Torngatan 78

HALL

Välkommen in i en rymlig hall med gott om plats för avhängning och ingång till separat förråd.

Torngatan 78
Torngatan 78

KÖK

Direkt till vänster nås köket med plats för stort matsalsbord, gott om skåpinredning , utrustat med kyl (-18), frys (-18), spis (-18), diskmaskin och fläkt (-15). Plastgolv och tapetserade väggar och målade skåpsluckor.

Torngatan 78
Torngatan 78
Torngatan 78

VARDAGSRUM

Vardagsrummet har en centralt placerad braskamin och även utgång till större altan mot bostadens stora insynsskyddade tomt. Här ute kan man avnjuta lite eftermiddagssol och fastighetens mysiga trädgård. Vardagsrummet har parkett på golvet och väggarna är målade.

Torngatan 78
Torngatan 78
Torngatan 78
Torngatan 78
Torngatan 78
Torngatan 78
Torngatan 78
Torngatan 78

UTEPLATS

På baksidan nås en större träaltan med utsikt över grönskande baksida. Vid entrén finns det möjlighet att göra en fin uteplats med sol under dagen.

Torngatan 78

SOVRUM

På övre plan möts vi av två tilltagna sovrum och ett litet mindre sovrum varav ett med 2 garderober, det största sovrummet har 4 garderober. Vinden nås via nerfällbar trapp på ovanvåningens hall och rymmer en hel del förvaring.

Torngatan 78
Torngatan 78
Torngatan 78
Torngatan 78

ALLRUM OVANVÅNING

På ovanvåningen möts vi av en ljus och fin hall med ett allrum som kan passa fint till kontorshörna, ett extra rum eller varför inte en mysig soffhörna!

Torngatan 78
Torngatan 78

BADRUM

Intill trappen upp till ovanvåningen ligger entréplanets badrum, badrummet har klinkersgolv och kaklade väggar från 2019. Utrustat med toalett, dusch och badrumsskåp.
Badrummet på ovanvåningen är halvkaklat med våtrumsmatta på golvet. Här finns en tvättmaskin (- 21), torktumlare (-23), badkar, tvättställ och toalett.

Torngatan 78
Torngatan 78
Torngatan 78

TRÄDGÅRD

Insynsskyddad baksida med stora ytor för studsmatta, planteringar eller annat som trädgårdslivet erbjuder.

Torngatan 78
Torngatan 78
Torngatan 78

Övriga bilder

Torngatan 78
Torngatan 78
Torngatan 78
Torngatan 78
Torngatan 78

Planlösning

Torngatan 78
Torngatan 78

ALLMÄNT

Fastighetsbeteckning
Rubinen 9
UPPLÅTELSEFORM
Friköpt
BOENDEFORM
Friliggande villa
Boarea
106 m² + 12 m² biarea taxeringsinformation
Tomtarea
579 kvm
BESIKTIGAD
Ja

BYGGNADSFAKTA

Uppvärmning
Fjärrvärme och kamin
BYGGNADSÅR
1988 
Byggnadstyp
2-plansparhus
Fasad
Trä/tegel
Fönster
Isolerglas (2-glas) med kopplat enkelglas (2+1)
Tak
Betongpannor
Grundläggning
Krypgrund
Utvändigt plåtarbete
Plåt
Vatten/avlopp
Kommunalt vatten året om. Kommunalt avlopp
VENTILATION
Mekanisk, typ FTX
RENOVERINGAR MM.
2021 Takfoten renoverades på yttertaket, avrinningen är utbytt.
2019 Nytt badrum på entréplan.'
Under åren har ytskikt renoverats och vitvarorna är utbytta.
Bredband
Fiber

Ekonomi

Utgångspris
2 350 000 kr
FASTIGHETSAVGIFT
10 074 kr/år
TAXERINGSVÄRDE
1 966 000 kr (Taxeringsår 2024)
BYGGNADENS TAXERINGSVÄRDE
1 474 000 kr
TAXERINGSKOD
220, Småhusenhet, bebyggd

dokument

DRIFTKOSTNADER/ÅR

Uppvärmning
6 000 kr/år
El
10 000 kr/år
VA
11 000 kr/år
Renhållning
3 500 kr/år
Försäkring
5 000 kr/år
Sotning
1 000 kr/år
Kommentar
Driftskostnaderna är antagna då inga faktiska uppgifter har kunnat inhämtats. Uppvärmningen avser fjärrvärme och El avser hushållsel. Övrigt är kostnaden för fiber.
DRIFTKOSTNAD TOTAL
36 500 kr/år
Nätbolag
Trollhättans energi
Elleverantör
Trollhättans energi

Energideklaration

Energideklaration
Utförd 2021-05-13
Energiprestanda primärenergital
74 kWh per kvm och år
Energiförbrukning
84 per kvm (Atemp) och år
Energiklass
C

INSKRIVNINGAR / PLANBESTÄMMELSER

Planbestämmelser
Stadsplan (1987-05-08)

VAD ÄR DIN BOSTAD VÄRD?

Sofia Arvidsson

"Jag hjälper dig gärna med en kostnadsfri värdering."

Sofia Arvidsson

Reg. fastighetsmäklare / Franchisetagare

VAD ÄR DIN BOSTAD VÄRD?

Jag hjälper dig gärna med en kostnadsfri värdering.

Bolånekalkyl

Hitta bostaden

Kunderna har sagt sitt
SVENSKA MÄKLARHUSET
ÄR DEN KEDJA SOM HAR
MEST NÖJDA KUNDER.

Enligt SKI - Svenskt Kvalitetsindex, där 1520 kunder i Sverige har tillfrågats om sin senaste bostadsaffär, är SMH - Svenska Mäklarhuset den mäklarkedja som placerar sig allra högst. Vill du också bli nöjd?

Kontakta oss idag oavsett som du ska sälja din bostad eller köpa en ny.

Till kontaktformuläret

Vi tar hjälp av cookies för att tillhandahålla våra tjänster. Genom att använda denna webbplats godkänner du att vi använder cookies.

HALL

Torngatan 78
Torngatan 78

KÖK

Torngatan 78
Torngatan 78
Torngatan 78

VARDAGSRUM

Torngatan 78
Torngatan 78
Torngatan 78
Torngatan 78
Torngatan 78
Torngatan 78
Torngatan 78
Torngatan 78

UTEPLATS

Torngatan 78

SOVRUM

Torngatan 78
Torngatan 78
Torngatan 78
Torngatan 78

ALLRUM OVANVÅNING

Torngatan 78
Torngatan 78

BADRUM

Torngatan 78
Torngatan 78
Torngatan 78

TRÄDGÅRD

Torngatan 78
Torngatan 78
Torngatan 78

Övriga bilder

Torngatan 78
Torngatan 78
Torngatan 78
Torngatan 78
Torngatan 78

Planlösning

Torngatan 78
Torngatan 78