Botered

Lidvägen 3

Välskött 30-talsvilla i Botered!

BUDGIVNING PÅGÅR

Välskött 30-talsvilla i Botered!

Välkommen till Lidvägen 3 och denna välskötta 30-talsvilla som är belägen i det eftertraktade Botered. Huset har genomgått omfattande renoveringar sedan förvärvet med bland annat dränering, tak, badrum med bastu, bytt och målat panel, nya fönster och inglasat uterum.

Bostaden är genomgående i gott skick med en trevlig planlösning. Entréplan inrymmer först och främst en väldigt mysig farstukvist sedan möts vi av det sociala sällskapsrummet med öppen planlösning mot köket. På entréplan finner vi ett sovrum och ett badrum samt utgång till det inglasade uterummet som verkligen förlänger den härliga sommarperioden. Övre plan består av två sovrum med gott om förvaringsutrymme. I källaren finns tvättstuga och badrum med lyxig bastudel. Detta badrum blir verkligen en lyx i din vardag.

Lättskött tomt på 764 kvm och här finns en stor altan med spabad som är belägen i härligt västerläge. På tomten finns även växthus och förråd. Bred och bra uppfart bredvid garaget och här finns även laddbox. Bergvärme tillsammans med solcellerna skapar ett energieffektivt och hemtrevligt boende och fiberanslutning ger snabb uppkoppling för både jobb och nöje.

I Botered bor du i ett lugnt villaområde, perfekt för barnfamiljen med närhet till förskola, skola och fina lekplatser. Läget är svårslaget med bra kommunikationer in till Vänersborg och Öxnered station ligger endast 2 km bort där du smidigt når Göteborg på 50 minuter.

Välkommen med din intresseanmälan!

Visa mer

Den här bostaden är besiktigad och försäkrad med SMH Tryggmärkt
Läs mer

Lidvägen 3 Lidvägen 3 [email protected] Svenska Mäklarhuset

SNABBFAKTA

  • utgångspris: 3 250 000 SEK
  • Antal rum: 4 rum
  • Boarea: 100 kvm + 100 kvm biarea
  • Tomtarea: 764 kvm
  • Byggnadsår: 1936
  • Område: Botered, Vänersborg
  • Besiktigad: Ja
  • Fastighetsbeteckning: Boxern 3
Högsta BUD

2 800 000 SEK

På webbplatsen redovisas normalt alla inkomna bud. Undantagsvis kan det förekomma att säljaren beslutar att ett visst bud inte ska redovisas på webbplatsen. Du kan alltid vända dig till mäklaren för att få information om samtliga bud. Samtliga bud noteras också i den budgivningslista som mäklaren enligt lag ska upprätta och överlämna till köpare och säljare.

Visa mer

Visningar

16 Apr 17:30 - 18:15
Välkommen att boka in dig på visningen!
Ansvarig mäklare

Daniel Johansson

Reg. fastighetsmäklare / Franchisetagare
Assisterande

Frida Dahlqvist

Mäklarkoordinator/ fastighetsmäklare

Välkommen till Lidvägen 3

VÄLKOMMEN!

Välkommen till Lidvägen 3 och detta mycket välskötta 30-talshus!

Lidvägen 3
Lidvägen 3
Lidvägen 3
Lidvägen 3

HALL

Inbjudande farstukvist och hall!

Lidvägen 3
Lidvägen 3
Lidvägen 3

KÖK

Köket är renoverat 2005 och har gott om förvaring.

Lidvägen 3
Lidvägen 3
Lidvägen 3

VARDAGSRUM

Socialt vardagsrum där hela familjen får plats att umgås! Här finns en fin äldre gjutjärnskamin.

Lidvägen 3
Lidvägen 3
Lidvägen 3

INGLASAT UTERUM

Det inglasade uterummet byggdes

Lidvägen 3
Lidvägen 3

SOVRUM

På entréplan finner vi ett sovrum med skjutgarderobeb. På övre plan har vi två sovrum och här på detta våningsplan finns flertalet förrådsutrymmen.

Lidvägen 3
Lidvägen 3
Lidvägen 3

BADRUM 1

På entréplan finner vi ett badrum som är renoverat 2005.

Lidvägen 3

BADRUM 2

Badrummet i källaren renoverades 2022 och är utrustat med lyxig spadel med både dusch, badkar och bastu.

Lidvägen 3
Lidvägen 3
Lidvägen 3
Lidvägen 3

ALTAN

Altanen är belägen i bästa solläge med sol ända fram till kvällen.

Lidvägen 3
Lidvägen 3

TOMT

Lagom stor tomt på 764 kvm.

Lidvägen 3
Lidvägen 3
Lidvägen 3

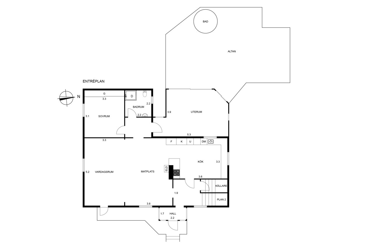
Planlösning

Lidvägen 3
Lidvägen 3
Lidvägen 3

ALLMÄNT

Fastighetsbeteckning
Boxern 3
UPPLÅTELSEFORM
Friköpt
BOENDEFORM
Friliggande villa
Antal rum
4 rum, varav 3 sovrum
Boarea
100 m² + 100 m² biarea taxeringsinformation
Tomtarea
764 kvm
BESIKTIGAD
Ja
Försäkrad mot dolda fel
Ja

BYGGNADSFAKTA

Uppvärmning
Bergvärme
BYGGNADSÅR
1936 
Byggnadstyp
1½-plansvilla med källare
Fasad
Trä
Fönster
2-glas kopplade samt 2-3-glas isolerfönster
Tak
Betongpannor, papptak
Stomme
Trä
Bjälklag
Trä
Grundläggning
Källare
Vatten/avlopp
Kommunalt vatten året om. Kommunalt avlopp
VENTILATION
Självdrag
RENOVERINGAR MM.
2005: Kök, Wc/dusch entréplan.
2007: Dränering, panel utbytt och tilläggsisolerat samt yttertak med papp, läkt och pannor.
2008: Fönster entréplan. Tak byttes inklusive pepp, läkt och takpannor och plåtdetaljer.
2010: Uterum.
2016: Farstukvist renoverad med nya fönster.
2019: Nytt papptak på tillbyggnaden.
2021: Målat huset utvändigt, bytt panel och tilläggsisolerat tillbyggnaden.
Tagit bort plasttaket och lagt råspont och bandtäkt plåt på uterum, nya fönster övre plan.
2022: Solceller
2024: Renoverat delar av källaren (utgrävd, isolerad och med golvvärme).
Bredband
Fiber
Övriga byggnader
Förråd och garage

Ekonomi

utgångspris
3 250 000 kr
FASTIGHETSAVGIFT
10 425 kr/år
TAXERINGSVÄRDE
2 338 000 kr (Taxeringsår 2024)
BYGGNADENS TAXERINGSVÄRDE
1 636 000 kr
TAXERINGSKOD
220, Småhusenhet, bebyggd
UTTAGNA PANTBREV
2 208 900 kr

dokument

DRIFTKOSTNADER/ÅR

Uppvärmning
10 334 kr/år
El
23 000 kr/år
VA
6 107 kr/år
Renhållning
2 808 kr/år
Sotning
1 000 kr/år
Kommentar
Säljaren har en årsförbrukning på 12 841 kwh/år. Detta är säljarens individuella driftkostnad och ska endast ses som en uppskattning.
DRIFTKOSTNAD TOTAL
43 249 kr/år

Energideklaration

Energideklaration
Utförd 2025-12-03
Energiprestanda primärenergital
82 kWh per kvm och år
Energiklass
C

INSKRIVNINGAR / PLANBESTÄMMELSER

Servitut, etc
Förmån: Officialservitut Väg, 15-VAU-522.1
Planbestämmelser
Avstyckningsplan (1932-04-04)

Allmänt om området

Ett attraktivt område med närhet till fina promenadstråk intill Vänern. Den vackra Dalbobron binder ihop Botered med Vänersborgs centrum. Botered är en äldre stadsdel och gatorna här är mycket charmiga.

Inte alls långt ifrån Botered ligger Dalbobergen som är ett centrumnära naturreservat som följer Vänerns strand. Här kan du vandra bekvämt genom lummig lövskog med fantastisk utsikt över Vänern. Om du vill kombinera vandringen med bad så kan du passa på att besöka Ursand Resort och Camping som ligger inte långt från vandringsleden. Här finns en härlig sandstrand, poolområde, äventyrsgolf, glasscafé och restaurang.

För dig som gillar att bada finns en mindre badplats känd som Gaddes brygga inte långt ifrån villaområdet. Det är en lång brygga och längst in en liten strand där barnen kan plaska.

Här finns flera förskolor samt skola från förskoleklass till och med årskurs 6 på Blåsut skola alternativt den nya Öxnered skola.

Mycket bra utbud av kollektivtrafik. Ett fåtal minuters bilväg (cirka tio minuter cykelväg) till Öxnereds Station och detsamma till Vänersborgs Resecentrum. Tåg från Öxnered till Göteborg på cirka 37-45 minuter, minst två tåg i timmen under rusningstid. Malöga flygplats tar cirka 15 minuter med bil.

VAD ÄR DIN BOSTAD VÄRD?

Daniel Johansson

"Jag hjälper dig gärna med en kostnadsfri värdering."

Daniel Johansson

Reg. fastighetsmäklare / Franchisetagare

VAD ÄR DIN BOSTAD VÄRD?

Jag hjälper dig gärna med en kostnadsfri värdering.

Bolånekalkyl

Hitta bostaden

Kunderna har sagt sitt
SVENSKA MÄKLARHUSET
ÄR DEN KEDJA SOM HAR
MEST NÖJDA KUNDER.

Enligt SKI - Svenskt Kvalitetsindex, där 1520 kunder i Sverige har tillfrågats om sin senaste bostadsaffär, är SMH - Svenska Mäklarhuset den mäklarkedja som placerar sig allra högst. Vill du också bli nöjd?

Kontakta oss idag oavsett som du ska sälja din bostad eller köpa en ny.

Till kontaktformuläret

Vi tar hjälp av cookies för att tillhandahålla våra tjänster. Genom att använda denna webbplats godkänner du att vi använder cookies.

VÄLKOMMEN!

Lidvägen 3
Lidvägen 3
Lidvägen 3
Lidvägen 3

HALL

Lidvägen 3
Lidvägen 3
Lidvägen 3

KÖK

Lidvägen 3
Lidvägen 3
Lidvägen 3

VARDAGSRUM

Lidvägen 3
Lidvägen 3
Lidvägen 3

INGLASAT UTERUM

Lidvägen 3
Lidvägen 3

SOVRUM

Lidvägen 3
Lidvägen 3
Lidvägen 3

BADRUM 1

Lidvägen 3

BADRUM 2

Lidvägen 3
Lidvägen 3
Lidvägen 3
Lidvägen 3

ALTAN

Lidvägen 3
Lidvägen 3

TOMT

Lidvägen 3
Lidvägen 3
Lidvägen 3

Planlösning

Lidvägen 3
Lidvägen 3
Lidvägen 3