Saltsjöbaden / Ljuskärrsberget

Ljuskärrsvägen 86

Nyrenoverad tvåa på Ljuskärrsberget!

Till salu

Nyrenoverad tvåa på Ljuskärrsberget!

Smakfullt renoverad bostad med öppen planlösning mellan kök och vardagsrum, separat sovrum och exklusivt badrum. Från vardagsrummet når du en insynsskyddad uteplats som också är helt nygjord!

Bostaden har renoverats med stor omsorg, där varje materialval och detalj valts för att skapa en ljus, harmonisk och genomtänkt helhet. Resultatet är ett hem som känns både elegant och lätt att trivas i.

Social och öppen planlösning
Köket har flyttats och öppnats upp mot vardagsrummet, vilket skapar en modern och social yta med härlig rymd. Den stora köksön blir en naturlig samlingspunkt, perfekt som serveringsyta, arbetsplats eller alternativ matplats. Samtidigt delar den av rummen på ett smakfullt sätt utan att kompromissa med den öppna känslan.

Smart och funktionell planlösning
Tack vare ombyggnationen har planlösningen optimerats med ett separat sovrum som erbjuder både lugn och god förvaring. I rummet finns plats för dubbelsäng och garderober, och de dubbla fönstren ger ett fint ljusinsläpp.

Stilfullt badrum
Badrummet håller hög standard med påkostade materialval och moderna detaljer som ger en känsla av vardagslyx. ( Spegel på plats nu)

Lummig och privat uteplats
Från vardagsrummet når du bostadens stora fördel – en insynsskyddad och grönskande uteplats. Här kan du njuta av solen, bjuda in till grillkvällar eller bara koppla av i en rofylld miljö. Den nyligen uppförda altanen ger gott om plats för både matgrupp och loungemöbler.

Visa mer
Ljuskärrsvägen 86 Ljuskärrsvägen 86 [email protected] Svenska Mäklarhuset

SNABBFAKTA

  • Pris: 1 745 000 SEK
  • Boarea: 44.5 kvm säljarens information
  • Antal rum: 2 rum
  • Våning: -1 av 2, ej hiss
  • Avgift: 3 786 kr
  • Förening: Brf Ljuskärrsberget 1
  • Byggnadsår: 1972
  • Område: Saltsjöbaden / Ljuskärrsberget , Nacka

1 745 000 SEK

Visningar

Intresserad av visning? Vänligen kontakta mäklaren.

Intresseanmälan
Ansvarig mäklare

Lukas Leijon

Reg. fastighetsmäklare

Välkommen!

Välkommen till en smakfullt renoverad lägenhet högt upp på populära Ljuskärrsberget – ett hem där genomtänkta materialval, smart planlösning och modern design möts i perfekt harmoni. Här bor du med naturen runt hörnet, nära hav, golfbana och promenadstråk, men med bekväm närhet till stadens puls.

Ljuskärrsvägen 86
Ljuskärrsvägen 86
Ljuskärrsvägen 86
Ljuskärrsvägen 86

Bostadsbeskrivning

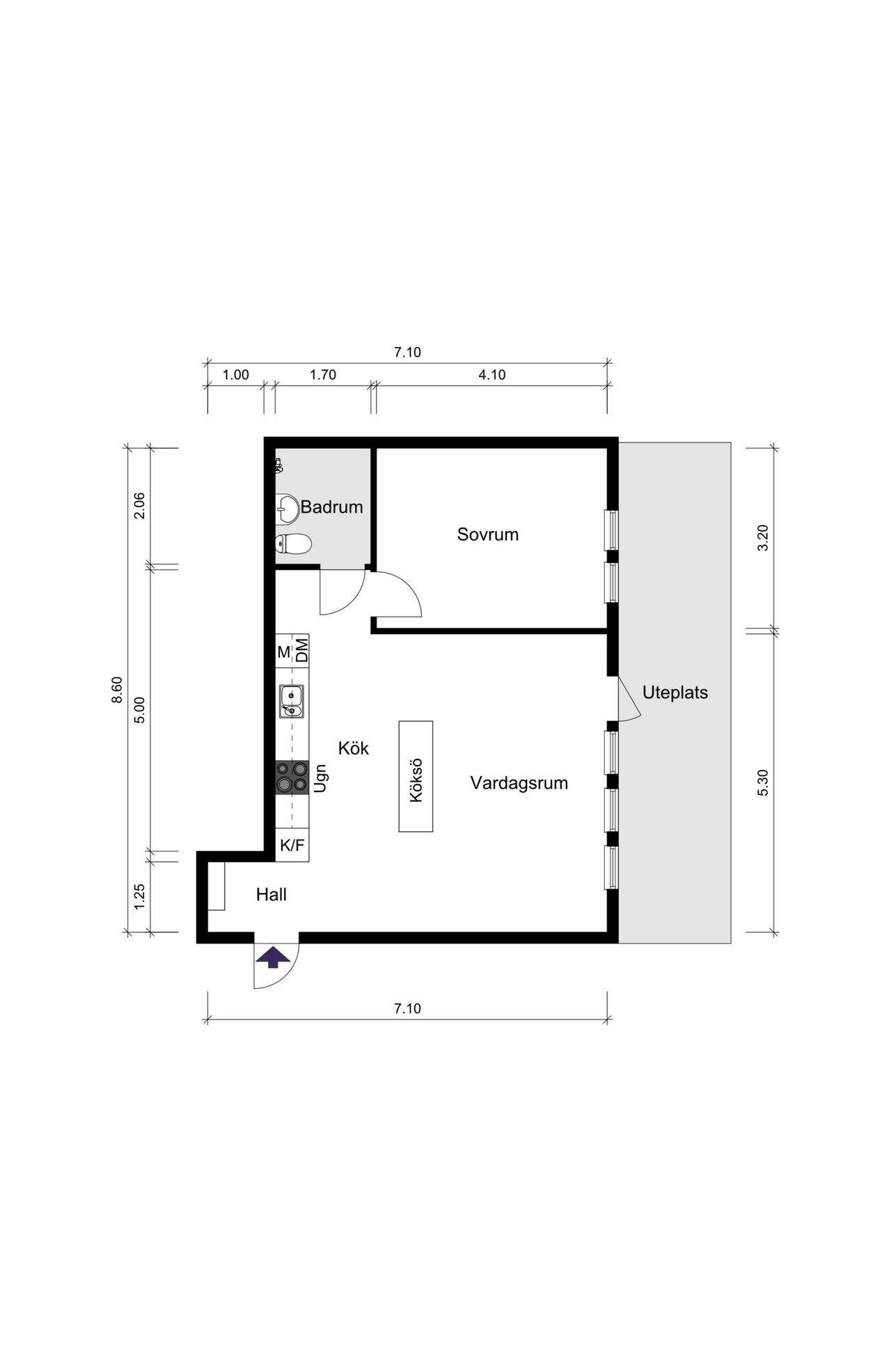
Bostaden har genomgått en omfattande och stilren renovering där varje detalj är noga utvald för att skapa en ljus, luftig, praktisk och trivsam atmosfär. Köket har flyttats och öppnats upp mot vardagsrummet, vilket ger en härlig social yta som inbjuder till umgänge och middagar i goda vänners lag. Utöver detta så har man en stor köksö med förvaring. Denna kan användas till servering, arbete eller som alternativ matplats. Köksön skärmar av kök och vardagsrum på ett härligt vis utan att påverka den öppna känslan. Tack vare ombyggnationen har planlösningen även optimerats med ett separat sovrum – en uppskattad lösning som ger både avskildhet och funktion. I sovrummet med dubbla fönster så finns utöver plats för dubbelsäng även flera alternativ var man kan få plats med gott om garderober.

Det exklusiva badrummet imponerar med sina materialval och moderna detaljer som skapar en känsla av lyx i vardagen.

Från vardagsrummet kliver du ut till en av bostadens höjdpunkter, den lummiga och insynsskyddade uteplatsen. Här njuter du av soliga dagar, grillkvällar och avkopplande stunder på din alldeles egna nya altan i lummig omgivning!

Ljuskärrsvägen 86
Ljuskärrsvägen 86
Ljuskärrsvägen 86
Ljuskärrsvägen 86

Ljuskärrsberget

Här bor du i ett lugnt och naturnära område med golfbanan intill och vackra strövområden runt Lundsjön. Här finns gott om möjligheter till ett aktivt liv året om, med närhet till golf, längdskidspår, båtliv, tennis, bad samt både vandrings- och cykelleder. Den omtyckta promenadslingan runt sjön, cirka fyra kilometer lång, bjuder in till såväl vardagsmotion som avkopplande söndagspromenader.

Området passar utmärkt för familjer så som yngre generationer på grund av allt som finns så nära till hands. På bekvämt gångavstånd ligger även Saltsjöbadens Centrum, ett trivsamt och välutrustat centrum som erbjuder butiker, restauranger, gym och annan service du behöver i vardagen.

Kommunikationerna är goda. Närmaste station, Tippen, nås till fots på några minuter. Härifrån tar Saltsjöbanan dig till Slussen på runt 20–25 minuter och med bil når du innerstan på något snabbare! Det finns även bussförbindelser med resvägar till både Slussen och T-centralen. I samband med att Saltsjöbanan rustas upp kommer kollektivtrafiken dessutom att få ännu tätare och smidigare förbindelser, inklusive framtida koppling till den nya blå tunnelbanelinjen.

Ljuskärrsvägen 86
Ljuskärrsvägen 86
Ljuskärrsvägen 86
Ljuskärrsvägen 86

Planlösning

Ljuskärrsvägen 86

Om bostaden

Smakfullt renoverad bostad med öppen planlösning mellan kök och vardagsrum, separat sovrum och exklusivt badrum. Från vardagsrummet når du en insynsskyddad uteplats som också är helt nygjord!

Bostaden har renoverats med stor omsorg, där varje materialval och detalj valts för att skapa en ljus, harmonisk och genomtänkt helhet. Resultatet är ett hem som känns både elegant och lätt att trivas i.

Social och öppen planlösning
Köket har flyttats och öppnats upp mot vardagsrummet, vilket skapar en modern och social yta med härlig rymd. Den stora köksön blir en naturlig samlingspunkt, perfekt som serveringsyta, arbetsplats eller alternativ matplats. Samtidigt delar den av rummen på ett smakfullt sätt utan att kompromissa med den öppna känslan.

Smart och funktionell planlösning
Tack vare ombyggnationen har planlösningen optimerats med ett separat sovrum som erbjuder både lugn och god förvaring. I rummet finns plats för dubbelsäng och garderober, och de dubbla fönstren ger ett fint ljusinsläpp.

Stilfullt badrum
Badrummet håller hög standard med påkostade materialval och moderna detaljer som ger en känsla av vardagslyx. ( Spegel på plats nu)

Lummig och privat uteplats
Från vardagsrummet når du bostadens stora fördel – en insynsskyddad och grönskande uteplats. Här kan du njuta av solen, bjuda in till grillkvällar eller bara koppla av i en rofylld miljö. Den nyligen uppförda altanen ger gott om plats för både matgrupp och loungemöbler.

Visa mer

ALLMÄNT

BOENDEFORM
Lägenhet
UPPLÅTELSEFORM
Bostadsrätt
Lägenhetsnummer
901
Månadsavgift
3 786 kr
Antal rum
2 rum varav 1 sovrum
Boarea
44.5 m² säljarens information
Våning
-1 av 2
Andel i förening
0,1485 %
Nettoskuldsättning
330 974 kr, Som underlag till beräkningen har föreningens senaste årsredovisning (2023) använts.

Föreningen

Namn
Brf Ljuskärrsberget 1
Allmänt om föreningen
BOSTADSRÄTTSFÖRENINGEN LJUSKÄRRSBERGET 1
Ljuskärrsberget är en populär bostadsrättsförening som ligger naturskönt beläget i Saltsjöbaden. Bostadsområdet har 469 lägenheter och ligger högt beläget på Ljuskärrsberget. Husen är byggda gårdsvis och bostadsområdet består av 13 gårdar. På varje gård finns en gräsmatta med utrymme för lek och utegemenskap samt rabatter som sköts av de boende på gårdarna.

RENOVERINGAR
Under de senaste åren har ett antal renoveringar gjorts, de senaste är;

2016 Renovering av husfasader avslutas. Dräneringsarbete för hela området fortsätter
2013 genomfördes bl.a. spolning av stammar i lägenheter och förskola, OVK besiktning på samtliga lägenheter och förskola.
2010 installerades bergvärme och nya vattenburna radiatorer.

GEMENSAMMA LOKALER
Föreningen disponerar två stycken övernattningslägenheter på Ljuskärrsvägen 90 som medlemmarna kan hyra. Bastu och snickarbod finns också att hyra.

PARKERING
P-plats finns att hyra för 150 kr/mån. Garageplats 250 kr/mån. Till garageplatsen är det separat kö. Gästparkering finns.

TV OCH INTERNET
Fastigheten är ansluten till kabelnät via Com Hem, basutbud ingår i avgiften.
Bredband på 100 Mbit ingår i avgiften.

EL-TILLÄGG
Obligatoriskt gemensamt eltillägg tillkommer, har i snitt senaste året varit 422 kr/månad. Utöver detta tillkommer hushållsel.

ÖVERLÅTELSEAVGIFT OCH PANTSÄTTNINGSAVGIFT
Överlåtelseavgift debiteras köparen med 2,5 % av basbeloppet. Pantsättningsavgift debiteras med 1 % av basbeloppet vid varje pantsättning.

HEMSIDA
För mer information om föreningen samt kontakt se; http://www.brfljuskarrsberget.se

dokument

BYGGNADSFAKTA

BYGGNADSÅR
1972
Hiss
Nej

Ekonomi

Utgångspris
1 745 000 kr
Pantsatt
Ja

DRIFT

Kommentar
Nuvarande ägare har ej bott i bostaden.
Energideklaration
Utförd 2017-12-08
Energiklass
D
PRIMÄRENERGITAL
61 kWh per kvm och år

Parkering

Uteplats kostar 225 kr och garage 300-375 kr beroende på vilket man väljer. Plats för elbil 375 kr + administrationskostnad och elkostnad.
Viss kötid kan förekomma.

Ljuskärrsvägen 86
Ljuskärrsvägen 86
Ljuskärrsvägen 86
Ljuskärrsvägen 86
Ljuskärrsvägen 86
Ljuskärrsvägen 86
Ljuskärrsvägen 86
Ljuskärrsvägen 86
Ljuskärrsvägen 86

VAD ÄR DIN BOSTAD VÄRD?

Lukas Leijon

"Jag hjälper dig gärna med en kostnadsfri värdering."

Lukas Leijon

Reg. fastighetsmäklare

VAD ÄR DIN BOSTAD VÄRD?

Jag hjälper dig gärna med en kostnadsfri värdering.

Bolånekalkyl

Hitta bostaden

Kunderna har sagt sitt
SVENSKA MÄKLARHUSET
ÄR DEN KEDJA SOM HAR
MEST NÖJDA KUNDER.

Enligt SKI - Svenskt Kvalitetsindex, där 1520 kunder i Sverige har tillfrågats om sin senaste bostadsaffär, är SMH - Svenska Mäklarhuset den mäklarkedja som placerar sig allra högst. Vill du också bli nöjd?

Kontakta oss idag oavsett som du ska sälja din bostad eller köpa en ny.

Till kontaktformuläret

Vi tar hjälp av cookies för att tillhandahålla våra tjänster. Genom att använda denna webbplats godkänner du att vi använder cookies.

Välkommen!

Ljuskärrsvägen 86
Ljuskärrsvägen 86
Ljuskärrsvägen 86
Ljuskärrsvägen 86

Bostadsbeskrivning

Ljuskärrsvägen 86
Ljuskärrsvägen 86
Ljuskärrsvägen 86
Ljuskärrsvägen 86

Ljuskärrsberget

Ljuskärrsvägen 86
Ljuskärrsvägen 86
Ljuskärrsvägen 86
Ljuskärrsvägen 86

Planlösning

Ljuskärrsvägen 86