ESLÖV

Föreningstorget 5D

Välplanerad fyrarummare

Kommande

Välplanerad fyrarummare

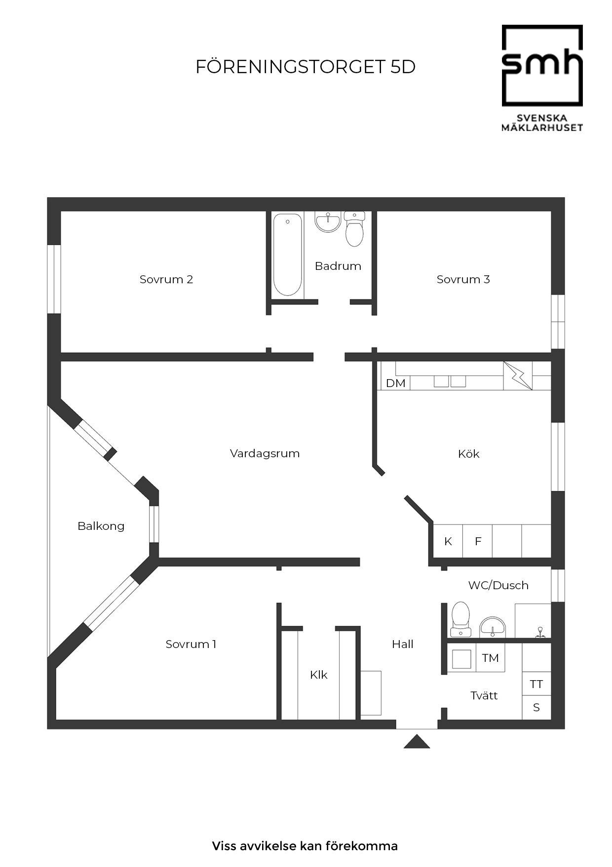
På Föreningstorget 5D finns denna välplanerade och rymliga fyrarummare. Från hallen som går i vinkel nås grovköket där du har tvättmöjligheter, ett badrum samt ett av sovrummen. Vardagsrum med balkong och utsikt mot Föreningstorget. Trivsamt kök med matplats. De andra två sovrummen och ett badrum finns i en separat del av bostaden. Här bor du på ett trevligt läge med kort gångavstånd till butiker, restauranger och tågstationen.

Visa mer
Föreningstorget 5D Föreningstorget 5D [email protected] Svenska Mäklarhuset

SNABBFAKTA

  • utgångspris: 1 350 000 SEK
  • Boarea: 98 kvm Lägenhetsförteckning
  • Antal rum: 4 rum
  • Våning: 2 av 2, ej hiss
  • Avgift: 7 292 kr. Inklusive V/A, sophantering och bostadsrättstillägg
  • Förening: Riksbyggen BRF Renen i Eslöv
  • Byggnadsår: 1990
  • Område: ESLÖV, Eslöv
utgångspris

1 350 000 SEK

Visningar

Intresserad av visning? Vänligen kontakta mäklaren.

Intresseanmälan
Ansvarig mäklare

Jimmy Karlsson

Reg. fastighetsmäklare / Franchisetagare
Assisterande

Lars-Eve Jönsson

Reg. Fastighetsmäklare

Hall

Hallen går i vinkel och här finns hatthylla och en klädkammare. Väggarna målades om 2024. Matta på golvet.

Grovkök

I grovköket finns tvättmaskin (2016), torktumlare (2016) och en vask. Matta på golvet, målade väggar.

Dusch/wc

Här finns en dusch, skåp, handfat samt wc. Matta på golvet, kaklade/målade väggar.

Sovrum 1

Matta på golvet, målade väggar (2023).

Kök

I köket finns det plats för ett matbord. Köket är utrustat med spis (2011), fläkt, kyl (2016), frys (2016) och diskmaskin (2016). Målade väggar, matta på golvet.

Vardagsrum

Vardagsrum med utgång till balkongen där du har utsikt över Föreningstorget. Parkettgolv, tapet på väggarna.

Badrum

Mellan sovrum 2 och sovrum 3 finns ett badrum med badkar, handfat, spegelskåp och wc. Matta på golvet, kaklade/målade väggar.

Sovrum 2

Matta på golvet, målade väggar.

Sovrum 3

Matta på golvet, målade väggar.

Visa mer

Övriga bilder

Föreningstorget 5D
Föreningstorget 5D
Föreningstorget 5D
Föreningstorget 5D
Föreningstorget 5D
Föreningstorget 5D

Planlösning

Föreningstorget 5D

Om bostaden

På Föreningstorget 5D finns denna välplanerade och rymliga fyrarummare. Från hallen som går i vinkel nås grovköket där du har tvättmöjligheter, ett badrum samt ett av sovrummen. Vardagsrum med balkong och utsikt mot Föreningstorget. Trivsamt kök med matplats. De andra två sovrummen och ett badrum finns i en separat del av bostaden. Här bor du på ett trevligt läge med kort gångavstånd till butiker, restauranger och tågstationen.

Visa mer

ALLMÄNT

BOENDEFORM
Lägenhet
UPPLÅTELSEFORM
Bostadsrätt
Lägenhetsnummer
30
Månadsavgift
7 292 kr, Inklusive V/A, sophantering och bostadsrättstillägg
Antal rum
4 rum varav 3 sovrum
Boarea
98 m² Lägenhetsförteckning
Våning
2 av 2
Andel i förening
1,8173 %
Andel av årsavgift
1,81725 %
Nettoskuldsättning
431 153 kr
Övrigt
Förråd tillhörande lägenheten finns i byggnad på innergården.
Överlåtelseavgift och eventuell pantsättningsavgift betalas av köparen.

Föreningen

Namn
Riksbyggen BRF Renen i Eslöv
ORGANISATIONSFORM/TYP
Bostadsrätt
Antal lägenheter
61 lägenheter, 2 lokaler
Äger föreningen marken
Ja
Äkta/Oäkta förening
Äkta
Överlåtelseavgift
1 433 kr
Pantsättningsavgift
573 kr
Allmänt om föreningen
Byggnaderna är uppförda 1990 och den tekniska förvaltningen sköts av Riksbyggen. Föreningen har en gemensamhetslokal som kan nyttjas fritt av föreningens medlemmar. Övernattningslägenhet finns att hyra för 100kr/natt.
Tv och Bredband
Kabel-TV med grundutbud och bredband 100/10 mbit/s ingår i månadsavgiften. Leverantör Tele 2.
Parkering
I föreningen finns 16st parkeringsplatser (250kr/månad) varav 8st är försedda med laddstolpe (350kr/månad). 24st garageplatser finns att tillgå (500kr/månad). Kösystem tillämpas.
FÖRSÄKRING
Fastigheterna är fullvärdeförsäkrade i Folksam. Hemförsäkring bekostas individuellt av bostadsrättsinnehavarna och bostadsrättstillägget ingår i föreningensf fastighetsförsäkring.
Övrigt
Överlåtelseavgift och pantsättningsavgift betalas av köparen.
FÖRENINGENS RENOVERINGAR
2009 - Fläktbyte.
2013 - Spolade stammar.
2014 - Målning av fasader.
2015 - installation av porttelefoner.
2017 - Hissbelysning.
2017 - Fläktybyte i vissa lägenheter.
2018 - Ventilationen justerades.
2019 - Putsning av fasad. Portar och tak renoverades och samtliga tak isolerades.
2019 - Förråden målades om och renoverades efter behov.
2020/2021 - Justering av värmesystem. digitalisering av systemet. Bytt expansionskärl. Ny undercentral till värmesystemet.
2021 - Ny sand i samtiga sandlådor och bänkar har satt upp.

dokument

BYGGNADSFAKTA

Byggnadstyp
Flerbostadshus i två plan
BYGGNADSÅR
1990
Uppvärmning
Fjärrvärme
VENTILATION
Mekanisk till- och frånluft
Hiss
Nej

Ekonomi

utgångspris
1 350 000 kr
Pantsatt
Ja

DRIFT

El
3 600 kr/år
Uppvärmning
12 048 kr/år
Försäkring
2 944 kr/år
Övrigt
2 364 kr/år
DRIFTKOSTNAD TOTAL
20 956 kr/år
DRIFTKOSTNADEN AVSER
3 personer
Kommentar
Uppvärmning 1004kr/månad. Kostnaden under övrigt är för bredband (100/10 mbit/s) och kabel-TV (grundutbud). Individuell mätning av hushållsel. Kostnaderna läggs på månadsavgiften.
Energideklaration
Utförd 2023-06-29
Energiklass
E
PRIMÄRENERGITAL
119 kWh per kvm och år

Allmänt om området

Här bor du i de centrala delarna av Eslöv. I närområdet finns bland annat mataffär, pizzeria, Andys Burgers och ett gym. Kort gångavstånd till Karlsrobadet. Där det bland annat finns äventyrsbad, motionsslinga, bowling och gym. Behagligt gångavstånd till centrum och till tågstationen för pendlaren.

VAD ÄR DIN BOSTAD VÄRD?

Jimmy Karlsson

"Jag hjälper dig gärna med en kostnadsfri värdering."

Jimmy Karlsson

Reg. fastighetsmäklare / Franchisetagare

VAD ÄR DIN BOSTAD VÄRD?

Jag hjälper dig gärna med en kostnadsfri värdering.

Bolånekalkyl

Hitta bostaden

Kunderna har sagt sitt
SVENSKA MÄKLARHUSET
ÄR DEN KEDJA SOM HAR
MEST NÖJDA KUNDER.

Enligt SKI - Svenskt Kvalitetsindex, där 1520 kunder i Sverige har tillfrågats om sin senaste bostadsaffär, är SMH - Svenska Mäklarhuset den mäklarkedja som placerar sig allra högst. Vill du också bli nöjd?

Kontakta oss idag oavsett som du ska sälja din bostad eller köpa en ny.

Till kontaktformuläret

Vi tar hjälp av cookies för att tillhandahålla våra tjänster. Genom att använda denna webbplats godkänner du att vi använder cookies.

Föreningstorget 5D
Föreningstorget 5D
Föreningstorget 5D
Föreningstorget 5D
Föreningstorget 5D
Föreningstorget 5D
Föreningstorget 5D
Föreningstorget 5D
Föreningstorget 5D
Föreningstorget 5D
Föreningstorget 5D
Föreningstorget 5D
Föreningstorget 5D
Föreningstorget 5D
Föreningstorget 5D
Föreningstorget 5D
Föreningstorget 5D