Fyllinge

Kungsörnsvägen 6

Gedigen familjevilla i populära Fyllinge !

Såld

Gedigen familjevilla i populära Fyllinge !

Välkomna till denna gedigna familjevillan på Kungsörnsvägen 6, ett hem som kombinerar komfort, stil och funktionalitet. Denna imponerande villa är fördelad över två generösa plan, vilket ger gott om utrymme för hela familjen att trivas i.

På entréplan möts ni av ett stort och inbjudande vardagsrum som badar i naturligt ljus, perfekt för både avslappning och umgänge. Det moderna köket är en dröm för hemmakocken, utrustat med högkvalitativa vitvaror och gott om arbetsyta. Här finner ni också ett av villans badrum, smakfullt inrett med eleganta materialval. Ett avskilt sovrum på detta plan erbjuder en idealisk plats för gäster eller som ett arbetsrum.

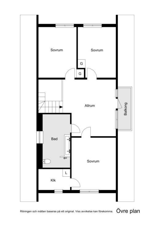
När ni tar trappan upp till övre plan, öppnar sig ett rymligt allrum, perfekt för familjens mysiga kvällar tillsammans. Härifrån har ni tillgång till en solig balkong där ni kan njuta av morgonkaffet eller kvällssolen. Det övre planet rymmer också tre väl tilltagna sovrum som ger hela familjen utrymme att koppla av. Ett andra badrum på detta plan gör morgonrutinerna smidiga och bekväma för alla.

Denna familjevilla har en välgenomtänkt planlösning och en inbjudande atmosfär. Beläget på en lugn gata i ett barnvänligt område med en stor men lättskött trädgård som bjuder in till lek och avkoppling. Här finns gott om plats för barnen att springa fritt. Det barnvänliga området gör detta till en perfekt plats för familjeliv, med närhet till grundskola, förskolor samt grönområden.

Kungsörnsvägen 6 är mer än bara en villa det är en plats där minnen skapas. Missa inte chansen att kalla detta underbara familjehem för ert egna. Kontakta ansvarig mäklare redan idag för att boka er personliga visningstid och upptäck allt som Kungsörnsvägen 6 har att erbjuda!

Visa mer
Slutpris

3 500 000 SEK

Ansvarig mäklare

Emir Aljaaf

Reg. fastighetsmäklare
Assisterande

Anders Wall

Reg. fastighetsmäklare / Franchisetagare

Vi tar hjälp av cookies för att tillhandahålla våra tjänster. Genom att använda denna webbplats godkänner du att vi använder cookies.

Entré

Kungsörnsvägen 6

Badrum - entreplan

Kungsörnsvägen 6

Kök

Kungsörnsvägen 6
Kungsörnsvägen 6
Kungsörnsvägen 6
Kungsörnsvägen 6

Tvättstuga

Kungsörnsvägen 6

Vardagsrum

Kungsörnsvägen 6
Kungsörnsvägen 6
Kungsörnsvägen 6
Kungsörnsvägen 6

Uteplats

Kungsörnsvägen 6
Kungsörnsvägen 6

Sovrum 1

Kungsörnsvägen 6

Allrum övre plan

Kungsörnsvägen 6

Badrum - övre plan

Kungsörnsvägen 6
Kungsörnsvägen 6

Sovrum 2

Kungsörnsvägen 6

Sovrum 3

Kungsörnsvägen 6

Sovrum 4

Kungsörnsvägen 6

Balkong

Kungsörnsvägen 6

Fastigheten

Kungsörnsvägen 6
Kungsörnsvägen 6
Kungsörnsvägen 6
Kungsörnsvägen 6
Kungsörnsvägen 6

Övriga bilder

Kungsörnsvägen 6
Kungsörnsvägen 6

Planlösning

Kungsörnsvägen 6
Kungsörnsvägen 6