Sundsvall

Kungsörnsvägen 34

Fin villa med naturnära läge längst in på gatan!

Såld

Fin villa med naturnära läge längst in på gatan!

Nu finns denna välskötta villa med eftertraktat och naturnära läge tillgänglig.
Här bor ni i barnvänligt område och som sista huset på lugn återvändsgata med naturen runt knuten.

Villan erbjuder utrymme för hela familjen, här finns ett renoverat kök och badrum, fyra sovrum och stora sällskapsytor.
Två härliga uteplatser samt en inglasad balkong, vilket ger möjlighet till sol under större delen av dagen.
Fristående garage med plats för en bil och förvaring.

Ett stenkast från villan finns förutom fin natur en lekplats med skyddat läge från trafik.

Övre Bosvedjan är ett populärt och familjevänligt område med närhet till det mesta.
Natursköna omgivningar och strövområden med skidspår vintertid.
Förskolor, skola, matvarubutik, pizzeria m.m. finns i närområdet, och i Bosvedjans Centrum finns även bowlinghall, frisör, gym och blomsterbutik.
Goda bussförbindelser till både Birsta och stan.

Vi ses på visningen!

Visa mer
Slutpris

2 425 000 SEK

Ansvarig mäklare

Isabelle Asplund

Reg. fastighetsmäklare

Vi tar hjälp av cookies för att tillhandahålla våra tjänster. Genom att använda denna webbplats godkänner du att vi använder cookies.

Välkommen till Kungsörnsvägen 34!

Välkommen till Kungsörnsvägen 34!

Fastighetskarta

Fastighetskarta

Planlösning övre plan

Planlösning övre plan

Kungsörnsvägen 34
Kungsörnsvägen 34
Kungsörnsvägen 34
Kungsörnsvägen 34
Härligt hörnläge på återvändsgata

Härligt hörnläge på återvändsgata

Kungsörnsvägen 34
Kungsörnsvägen 34
Lekplats i skyddat läge

Lekplats i skyddat läge

Sovrum

Sovrum

Vardagsrum

Vardagsrum

Kungsörnsvägen 34
Sovrum 2

Sovrum 2

Kök

Kök

Kungsörnsvägen 34
Kungsörnsvägen 34
Sovrum 3

Sovrum 3

Sovrum 4

Sovrum 4

Allrum

Allrum

Kungsörnsvägen 34
Hall

Hall

Kungsörnsvägen 34
Inglasad balkong

Inglasad balkong

Tvättstuga

Tvättstuga

Duschrum

Duschrum

Kungsörnsvägen 34
Toalettrum

Toalettrum

Kungsörnsvägen 34
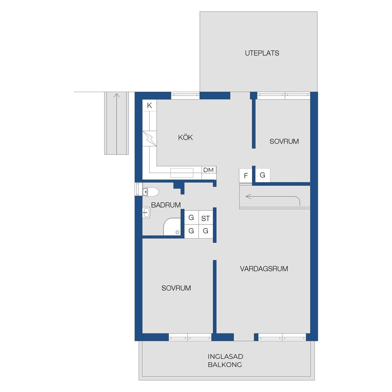
Planlösning entréplan

Planlösning entréplan