Gudö

Flöjtvägen 2

Enplanshus i ljuva, natursköna Gudö

Till salu

Enplanshus i ljuva, natursköna Gudö

Välkommen till Flöjtvägen 2 och detta charmiga enplanshus med lantlig känsla, stor tomt och generös altan i natursköna Gudö!

På en rofylld och solig tomt finner du denna välplanerade bostad som kombinerar klassisk svensk sommaridyll med moderna bekvämligheter. Huset är inbäddat i grönska och erbjuder både avskildhet och närhet till natur, perfekt för dig som söker en harmonisk livsstil året runt.

• Enplanshus med lantlig charm
• Stort trädäck med sol hela dagen
• Rymliga sovrum
• Eget arbetsrum/gym
• Bastu för avkoppling året runt
• Vackert läge nära natur och vatten

Här möts du av en inbjudande entré som leder vidare till ett hemtrevligt vardagsrum med vitmålad träpanel, synliga takbjälkar och en charmig öppen spis – en naturlig samlingsplats för mysiga kvällar.

Det ljusa och funktionella köket är smakfullt renoverat med vita skåpluckor, generösa arbetsytor och goda förvaringsmöjligheter. Här finns plats för matlagning i trivsam miljö med utsikt mot den gröna tomten.

Sovrummen är rymliga och erbjuder gott om förvaring, bland annat genom platsbyggda garderober. Bostaden har även ett arbetsrum/gym med fönster mot tomten – perfekt för hemmakontor eller träning.

En av bostadens pärlor är den egna bastun, helt i trä, där du kan njuta av avkopplande stunder efter en lång dag.

Här finns en fantastisk altan i flera nivåer med gott om plats för loungemöbler, matbord och solstolar. Den generösa ytan gör den perfekt för sociala tillställningar eller stilla stunder med naturen som sällskap. Den stora gräsmattan ger utrymme för lek, odling eller framtida projekt.

Flöjtvägen är belägen i lugna Gudö, ett område känt för sina natursköna omgivningar, närhet till skog och vatten samt goda kommunikationer in till stan. Här kombineras lantlig atmosfär med vardagsbekvämligheter – skolor, förskolor och service finns inom kort avstånd.

Detta är ett hem för dig som värdesätter lugn, trivsel och möjligheten att leva nära naturen utan att ge avkall på bekvämligheten.

Välkommen att kontakta ansvarig mäklare, Isabelle Björkstrand, 070-067 88 19 för mer info.

Visa mer
Flöjtvägen 2 Flöjtvägen 2 [email protected] Svenska Mäklarhuset

SNABBFAKTA

  • Pris: 4 700 000 SEK
  • Antal rum: 5 rum
  • Boarea: 79 kvm + 49 kvm biarea
  • Tomtarea: 3 316 kvm
  • Byggnadsår: 1948 - Om/tillbyggnadsår: 1965
  • Område: Gudö, Haninge
  • Besiktigad: Ja
  • Fastighetsbeteckning: Tutviken 1:43

4 700 000 SEK

Visningar

Intresserad av visning? Vänligen kontakta mäklaren.

Intresseanmälan
Ansvarig mäklare

Isabelle Björkstrand

Reg. fastighetsmäklare / Franchisetagare
Assisterande

Johanna Mikiver

Reg. Fastighetsmäklare

Välkommen till Flöjtvägen 2

Övriga bilder

Flöjtvägen 2
Flöjtvägen 2
Flöjtvägen 2
Flöjtvägen 2
Flöjtvägen 2
Flöjtvägen 2

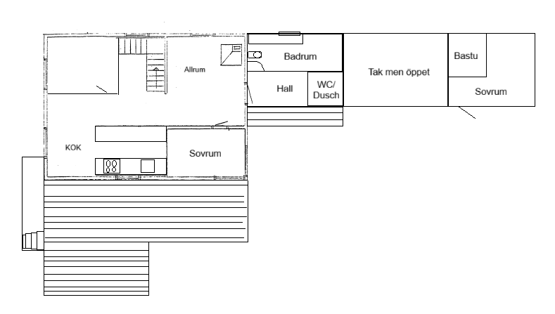
Planlösning

Flöjtvägen 2
Flöjtvägen 2

ALLMÄNT

Fastighetsbeteckning
Tutviken 1:43
UPPLÅTELSEFORM
Friköpt
BOENDEFORM
Friliggande villa
Antal rum
5 rum, varav 3 sovrum
Boarea
79 m² + 49 m² biarea säljarens information
Tomtarea
3 316 kvm
Bilplats
Grusad uppfart plats för flera bilar
BESIKTIGAD
Ja

BYGGNADSFAKTA

Uppvärmning
El (direktverkande) och värmepumpluft/ luft (el)
BYGGNADSÅR
1948, Om/tillbyggnadsår: 1965 
Byggnadstyp
1-plansvilla
Fasad
Trä
Tak
Plåt
Stomme
Trä
Grundläggning
Torpargrund/Platta
Grundmur
Betong
Vatten/avlopp
Kommunalt vatten och avlopp.
VENTILATION
Självdrag
RENOVERINGAR MM.
2023 - Ny altandörr och entrédörr
2014- Fönster delvis utbytta
Övriga byggnader
Friggebod - ca 10 kvm
Övrigt förråd - ca 10 kvm
Bastu med separat ingång - ca 10 kvm
Uterum som med fördel kan glasas in.

Ekonomi

Utgångspris
4 700 000 kr
FASTIGHETSAVGIFT
10 425 kr/år
TAXERINGSVÄRDE
4 020 000 kr (Taxeringsår 2024)
BYGGNADENS TAXERINGSVÄRDE
4 020 000 kr
TAXERINGSKOD
220, Småhusenhet, bebyggd
UTTAGNA PANTBREV
3 590 000 kr

dokument

DRIFTKOSTNADER/ÅR

El
9 000 kr/år
VA
2 050 kr/år
Väg/samfällighetsavgift
4 100 kr/år
Renhållning
2 000 kr/år
DRIFTKOSTNAD TOTAL
17 150 kr/år
DRIFTKOSTNADEN AVSER
2 personer

Energideklaration

Energideklaration
Utförd 2025-11-10
Energiprestanda primärenergital
158 kWh per kvm och år
Energiförbrukning
88 per kvm (Atemp) och år
Energiklass
E

INSKRIVNINGAR / PLANBESTÄMMELSER

Servitut, etc
Gemensamhetsanläggning: Haninge tutviken ga:1 ändamål: Vägar, Elledning och/eller belysning, Grönområden, Bad och/eller båtanläggning
Planbestämmelser
Detaljplan (2003-03-13)

Allmänt om området

Välkommen till Gudö, ett vackert område beläget i Haninge kommun som erbjuder fantastiska möjligheter att uppleva naturen på nära håll. Här kan du njuta av lugnet och stillheten samtidigt som du har närhet till både storstadspuls och havsbris.

Gudö är perfekt för dig som vill bo i en naturskön miljö med närhet till både skog och vatten. Här finns vandringsleder, badplatser och grillplatser som passar för hela familjen. Och för den som söker mer action finns det gott om möjligheter till fiske, kanotpaddling och andra friluftsaktiviteter.

Kommunikation

Gudöbroleden är vältrafikerad av bussar, vilket ger goda resvägar för resenärer. En direktbuss (807), går under dygnet via Trollbäcken och Norra Sköndal till Gullmarsplan på ca 30 min. Dessutom finns en direktbuss (818), som går direkt till Stockholm C på ca 35 min. Buss nummer 840 går till Handenterminalen (Haninge centrum) samt till Tyresö, Trollbäcken och Nacka Forum.

Närservice

Gudö är inte bara ett område för den friluftsintresserade. Här finns även bra kommunikationer till Stockholm, vilket gör det enkelt att ta sig in till city för att shoppa, äta på restaurang eller uppleva kulturella evenemang. Dessutom finns det flera skolor och förskolor i området. Haga/Lyckebyskolan F-9, Gudö förskola 1-5 år, Vendelsö hage F-6, vilket är utmärkt för den som söker en trygg och familjevänlig miljö.

Det finns en matbutik vid Sågenrondellen, och längs Gudöbroleden finns ett brett utbud av affärer och stormarknader via Vendelsö centrum. Dessutom finns Trollbäckens centrum inom ett bekvämt avstånd med bl.a matbutiker, restauranger, bibliotek, närservice, vårdcentral och apotek.

Övrigt

Så varför inte välja Gudö som din nya hemort? Här kan du uppleva det bästa av två världar – närheten till storstadspulsen och möjligheten att njuta av naturen på nära håll. Vi välkomnar dig att bli en del av gemenskapen på Gudö!

VAD ÄR DIN BOSTAD VÄRD?

Isabelle Björkstrand

"Jag hjälper dig gärna med en kostnadsfri värdering."

Isabelle Björkstrand

Reg. fastighetsmäklare / Franchisetagare

VAD ÄR DIN BOSTAD VÄRD?

Jag hjälper dig gärna med en kostnadsfri värdering.

Bolånekalkyl

Hitta bostaden

Kunderna har sagt sitt
SVENSKA MÄKLARHUSET
ÄR DEN KEDJA SOM HAR
MEST NÖJDA KUNDER.

Enligt SKI - Svenskt Kvalitetsindex, där 1520 kunder i Sverige har tillfrågats om sin senaste bostadsaffär, är SMH - Svenska Mäklarhuset den mäklarkedja som placerar sig allra högst. Vill du också bli nöjd?

Kontakta oss idag oavsett som du ska sälja din bostad eller köpa en ny.

Till kontaktformuläret

Vi tar hjälp av cookies för att tillhandahålla våra tjänster. Genom att använda denna webbplats godkänner du att vi använder cookies.

Flöjtvägen 2
Flöjtvägen 2
Flöjtvägen 2
Flöjtvägen 2
Flöjtvägen 2
Flöjtvägen 2
Flöjtvägen 2
Flöjtvägen 2
Flöjtvägen 2
Flöjtvägen 2
Flöjtvägen 2
Flöjtvägen 2
Flöjtvägen 2
Flöjtvägen 2
Flöjtvägen 2
Flöjtvägen 2
Flöjtvägen 2
Flöjtvägen 2
Flöjtvägen 2
Flöjtvägen 2
Flöjtvägen 2
Flöjtvägen 2
Flöjtvägen 2
Flöjtvägen 2
Flöjtvägen 2
Flöjtvägen 2
Flöjtvägen 2
Tomtkarta Flöjtvägen 2

Tomtkarta Flöjtvägen 2

Flöjtvägen 2
Lek-och rastplats vid Gudöån

Lek-och rastplats vid Gudöån

Badplats vid Långsjön Gudö

Badplats vid Långsjön Gudö

Flöjtvägen 2
Flöjtvägen 2