Trollbäcken

Klockvägen 5

Trivsamt boende med magisk tomt i Trollbäcken

Såld

Trivsamt boende med magisk tomt i Trollbäcken

Välkommen till Klockvägen 5, omgivet av en grönskande fastighet med ståtliga Thujor som omfamnar tomten. Huset erbjuder generösa och sociala ytor på två plan som bjuder in till både vardagsliv och festligheter. På övre plan möts du av ett ljust vardagsrum och en tillhörande charmig balkong med utsikt över den grönskande omgivningen. På nedre plan finner du ett rymligt allrum som passar perfekt för större sociala sammanhang. Flexibelt tillträde och visningstider erbjuds enligt överenskommelse. Kontakta ansvarig mäklare för mer information.

- Öppen spis på båda plan
- Lounge och spaavdelning med bastu
- Tillhörande rymligt garage
- Uteplats på två plan
- Stor tomt med lättskött gräsmatta
- Mängder av grönska med lummig miljö
- Närhet till allt du behöver i vardagen
- Bergvärme, v-buren golvvärme och radiatorer

Bostaden präglas av en rad attraktiva detaljer såsom de två öppna spisarna, lounge- och spaavdelningen med bastu samt uteplatserna på båda våningsplan. Den välskötta tomten erbjuder en trivsam och lummig miljö med gott om utrymme för aktiviteter och rekreation. Här bor du nära allt du behöver i vardagen, med uppvärmning i form av bergvärme, vattenburen golvvärme och radiatorer.

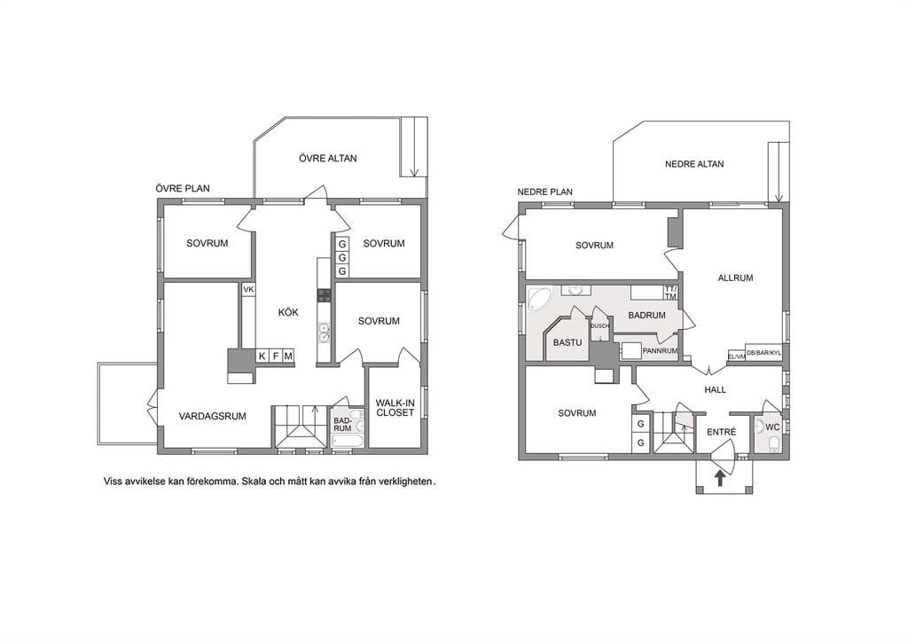
Nedre plan välkomnar dig med en avskild hall som leder vidare till bostadens sociala mittpunkt. Här finns ett allrum som är optimalt för avkoppling och umgänge, med en stilren bar i ena delen och en lounge i den andra. Intill ligger spaavdelningen med helkaklat badrum, tvättmaskin, torktumlare, dusch, tvättställ, stort badkar och bastu – perfekt för njutbara stunder i vardagen. Två generösa sovrum på detta plan ger gott om utrymme för familj eller gäster.

Övre plan nås via en elegant trappa med två stora fönster som släpper in rikligt med dagsljus. Här möts du av ett luftigt vardagsrum med utgång till balkongen i soligt läge. Kökets maskinpark är utrustat med vitvaror såsom stor kyl och frys, vinkyl, diskmaskin och ugn, samt en rymlig matplats som rymmer stora sällskap. Från matplatsen når du den övre uteplatsen, ett trädäck som bjuder på en fantastisk vy över den prunkande tomten. Samtliga sovrum på detta plan är rymliga och erbjuder plats för både förvaring och möblemang.

Den imponerande tomten omfamnas av grönska och bjuder på en rofylld atmosfär. Här kan barnen springa fritt medan du njuter av lugnet på den nedre altanen. En friggebod finns i utkanten av tomten som är perfekt för förvaring av trädgårdsredskap och andra tillhörigheter.

Visa mer
Slutpris

6 500 000 SEK

Ansvarig mäklare

Michell Balok

Reg. fastighetsmäklare

Vi tar hjälp av cookies för att tillhandahålla våra tjänster. Genom att använda denna webbplats godkänner du att vi använder cookies.

Klockvägen 5
Klockvägen 5
Klockvägen 5
Klockvägen 5
Klockvägen 5
Klockvägen 5
Mäklare Michell Balok

Mäklare Michell Balok

Klockvägen 5
Klockvägen 5
Klockvägen 5
Klockvägen 5
Klockvägen 5
Klockvägen 5
Klockvägen 5
Klockvägen 5
Klockvägen 5
Klockvägen 5
Klockvägen 5
Klockvägen 5
Klockvägen 5
Klockvägen 5
Klockvägen 5
Klockvägen 5
Klockvägen 5
Klockvägen 5
Klockvägen 5
Klockvägen 5
Klockvägen 5
Klockvägen 5
Klockvägen 5
Klockvägen 5
Klockvägen 5
Klockvägen 5
Klockvägen 5
Klockvägen 5
Klockvägen 5
Klockvägen 5
Klockvägen 5
Klockvägen 5
Klockvägen 5
Klockvägen 5
Klockvägen 5
Klockvägen 5 planritning

Klockvägen 5 planritning