Tyresö

Basilikagränd 19

Unik femma med radhuskänsla på populära Basilikagränd!

Såld

Unik femma med radhuskänsla på populära Basilikagränd!

Välkomna till detta Old English Townhouse inspirerande radhus på attraktiva Basilikagränd 19! Här erbjuds en bostadsrätt med radhuskänsla som kännetecknas av nordisk design och arkitektur. Boendet har generös takhöjd upp till nock med genomgående vackert ljusinsläpp tack vare stora fönster och genomtänkta kvadratmeter. Helt enkelt ett energibesparande boende i ett rofyllt och naturnära läge, två uteplatser och tillhörande parkering på uppfarten.

- Bostadsrätt med radhuskänsla
- Energieffektivt radhus med högt i tak
- Genomgående ekparkett
- Vattenburen golvvärme
- Två uteplatser (fram och baksida)
- Egen parkering på uppfarten

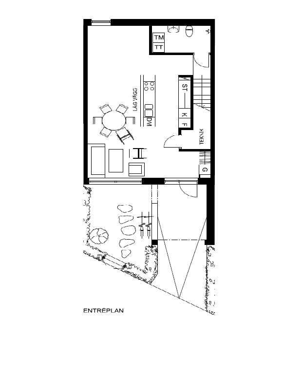
Entréplan
Hallen ges ljusinsläpp via stort fönster vid sidan av ytterdörr samt överliggande fönster ovan dörr. Från hallen fås direkt kontakt och välkomnas av den öppna planlösningen och takhöjden om generösa ca 3,3 meter.
Vardagsrum och kök ligger i öppen planlösning med varandra och skapar en trivsam social yta. Mot gården finns stora fönsterpartier ner till golv som ger kontakt med trädgården utanför och skapar en känsla av rymd och ger ett fint ljusinsläpp. Här finns plats för både middagsbord och loungedel. här lyser solens strålar fram till ca kl. 19.00.

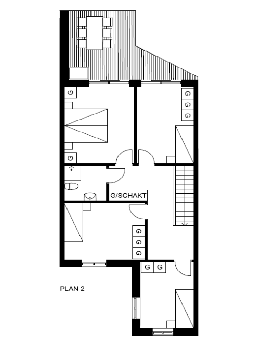
Övervåning
Övervåning med fyra sovrum, ett stilrent badrum samt extra förvaring på vinden.
Två av sovrummen är belägna mot husets framsida och två sovrum mot baksidan. Ena sovrummet mot baksidan har stora glasade fönsterpartier med utgång till altan. Altanen ligger i öster mot ett mindre, mysigt skogsparti med sol fram till ca.kl.16:00.

Här bor ni med ett eftertraktat läge på lugn och familjär återvändsgata med närhet till Barnsjön, busskommunikationer som tar dig till Stockholm C på ca 25-30 min, fridfulla naturområden, idrottsplatser, Tyresö centrum, Trollbäckens centrum samt flertal skolor. Det perfekta boendet för familjen helt enkelt!

Följ länken för digitalt prospekt: https://epaper.webtopsolutions.com/epaper.asp?id=1519616

Varmt välkomna att kontakta ansvarig mäklare för mer info eller boka privatvisning!

Visa mer
Slutpris

4 995 000 SEK

Ansvarig mäklare

Isabelle Björkstrand

Reg. fastighetsmäklare / Franchisetagare

Vi tar hjälp av cookies för att tillhandahålla våra tjänster. Genom att använda denna webbplats godkänner du att vi använder cookies.

Basilikagränd 19
Basilikagränd 19
Basilikagränd 19
Basilikagränd 19
Basilikagränd 19
Basilikagränd 19
Basilikagränd 19
Basilikagränd 19
Basilikagränd 19
Basilikagränd 19
Basilikagränd 19
Basilikagränd 19
Basilikagränd 19
Basilikagränd 19
Basilikagränd 19
Basilikagränd 19
Basilikagränd 19
Basilikagränd 19
Basilikagränd 19
Basilikagränd 19
Basilikagränd 19
Basilikagränd 19
Basilikagränd 19
Basilikagränd 19
Basilikagränd 19
Basilikagränd 19
Basilikagränd 19
Basilikagränd 19
Basilikagränd 19
Basilikagränd 19
Basilikagränd 19
Basilikagränd 19
Basilikagränd 19
Entréplan

Entréplan

Plan 2

Plan 2

Basilikagränd 19
Basilikagränd 19
Basilikagränd 19
Basilikagränd 19
Basilikagränd 19
Basilikagränd 19
Basilikagränd 19
Basilikagränd 19
Basilikagränd 19