Täby Park

Sadelgatan 10

Såld

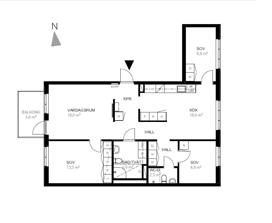
Luftig och välplanerad 4:a näst högst upp i huset med balkong i hög & soligt västerläge med fri utsikt mot grönska. Planlösningen är perfekt planerad med ca 18 kvm vardagsrum- och ca 18 kvm kök, avskilt från varandra men med anslutning. Här erbjuds också 3 st sovrum samt ett badrum med tvättmaskin och torktumlare samt en dusch/wc. Förvaringsmöjligheterna är goda. Bostaden blev färdigställd 2023 och skicket är mycket gott.

Brf Parkliv i Täby är ett hästskoformat kvarter med grön och lekfull innergård och välkomnande atmosfär. Strax intill ligger en stor naturpark med skog som lockar till kojbygge, kurragömma och upptäcktsfärder.

Garage finns i huset med 64 parkeringsplatser. Bostadsrättsföreningen är medlem i Intresseförening för Riksbyggens bostadsrättsföreningar i Stockholm. Bostadsrättsföreningen äger via garantikapitalbevis andelar i Riksbyggens ekonomiska förening. Genom intresseföretaget kan bostadsrättsföreningen utöva inflytande på Riksbyggens verksamhet samt ta del av eventuell utdelning från Riksbyggens resultat. Utöver utdelning på andelar kan föreningen även få återbäring på köpta tjänster från Riksbyggen. Storleken på återbäringen beslutas av Riksbyggens styrelse.

Fastigheterna är energiklassade C vilket innebär att man som boende får ta del av s.k. Grönt bolån (rabatt på bolån), såhär skriver En av storbankerna på sin hemsida:
"Vi vill gärna bidra på de sätt vi kan för att minska energiförbrukningen i hemmen. Det Gröna Bolånet hoppas vi ska motivera fler att välja energieffektiva bostäder. Hur går det till då? Vi erbjuder avdrag på bolåneräntan för dig som bor i villa eller lägenhet i byggnad med energiklass A, B eller C. Pengarna finansieras upp via så kallade gröna obligationer."

Täby Park är ett otroligt spännande område i framfart som kommer att bli en ny central mittpunkt i Täby. Här erbjuds allt från mysigt café, restaurang, paddel-banor, frisör, simhall och mycket mer. Här bor du med absolut närhet till Täby Centrum - ett av Sveriges största shoppingcentrum med brett utbud av affärer, restauranger och nöjen. På torget finns ytterligare utbud av matställen, caféer och aktiviteter. Utmärkta kommunikationsmöjligheter i form av Roslagsbanan som tar dig till Stockholm Östra på 15 minuter. Från den nya bussterminalen utgår flera busslinjer. I närheten byggs även en ny skola och en simhall som färdigställdes tidigare i år. Andra populära platser i närområdet är rönningesjön och Hägernäs strand som erbjuder fantastiska badmöjligheter.

Visa mer
Slutpris

4 775 000 SEK

Ansvarig mäklare

Sebastian Eriksson

Reg. fastighetsmäklare / Franchisetagare

Vi tar hjälp av cookies för att tillhandahålla våra tjänster. Genom att använda denna webbplats godkänner du att vi använder cookies.

Sadelgatan 10
Sadelgatan 10
Sadelgatan 10
Sadelgatan 10
Sadelgatan 10
Sadelgatan 10
Sadelgatan 10
Sadelgatan 10
Sadelgatan 10
Sadelgatan 10
Sadelgatan 10
Sadelgatan 10
Sadelgatan 10
Sadelgatan 10
Sadelgatan 10
Sadelgatan 10
Sadelgatan 10
Sadelgatan 10
Sadelgatan 10
Sadelgatan 10
Sadelgatan 10
Sadelgatan 10
Sadelgatan 10
Sadelgatan 10
Sadelgatan 10