Säve

Nedre Karlslundsvägen 20

Nybyggt hus om 168 kvm med pool

Till salu

Nybyggt hus om 168 kvm med pool

Ett arkitekt ritat hus om 168 kvadratmeter beläget i ett trevligt läge med härlig vidstreck utsikt över ängarna. Huset har en stor balkong och en härlig uteplats med pool.

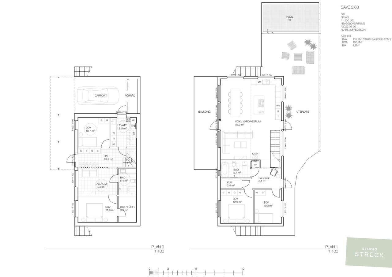
Interiör övre plan

Stort och ljust vardagsrum med en social öppen planlösning mot det moderna och fullutrustade köket som går i ljusa färger. Trevligt med köksö. Bra med arbetsytor och rikligt med skåp för förvaring. Vitvaror från Siemens. Tidstypiska fönsterpartier av modell större som ger ljus värme och karaktär åt rummet. Vitmålade väggar och under fötterna ligger ett snyggt vitlaserad ekgolv som är genomgående i huset. Från vardagsrummet når man huset stora balkong med gott om plats och med en härlig utsikt över ängarna, Från motsatt sitta av vardagsrummet når man en stor altan med pool. Vardagsrum och kök är ihop hela 56 kvadratmeter och är ett perfekt rum för trevliga stunder i goda vänners lag eller mysiga hemmakvällar.

Två bra sovrum med plats för säng och arbetsdel. Det större av sovrummen angränsar till en klädkammare med plats för det mesta.
Modernt och stilrent badrum. Helkaklade väggar i vitt och grå klinker på golvet.

Nedre plan

Här finns ett trevligt allrum med plats för soffa och tv. Två bra sovrum varav det större har en walking-closet/klädkammare med gott om utrymme.
Fräscht badrum med dusch. På väggarna vitt kakel och på golvet grå klinker. På nedre plan hittar vi huset tvättstuga som är fullutrustad med tvättmaskin och torktumlare.

Ett fantastiskt hus med modern känsla och av hög kvalitet i ett av de absolut bästa läge i expansiva Säve .

Visa mer
Nedre Karlslundsvägen 20 Nedre Karlslundsvägen 20 [email protected] Svenska Mäklarhuset

SNABBFAKTA

  • Pris: 6 995 000 SEK
  • Antal rum: 6 rum
  • Boarea: 168 kvm + 4 kvm biarea
  • Tomtarea: 1 400 kvm
  • Byggnadsår: 2023
  • Område: Säve , Göteborg
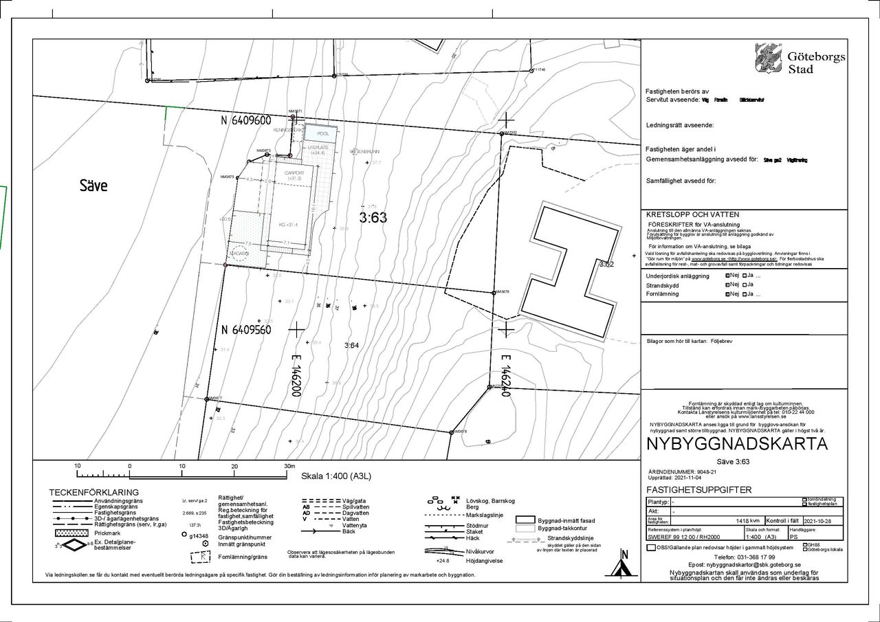
  • Fastighetsbeteckning: Säve 3:63

6 995 000 SEK

Visningar

Intresserad av visning? Vänligen kontakta mäklaren.

Intresseanmälan
Ansvarig mäklare

Stefan Hansson

Reg. fastighetsmäklare

Välkommen till Nedre Karlslundsvägen 20

Övriga bilder

Nedre Karlslundsvägen 20
Nedre Karlslundsvägen 20
Nedre Karlslundsvägen 20
Nedre Karlslundsvägen 20
Nedre Karlslundsvägen 20
Karlslundsvägen

ALLMÄNT

Fastighetsbeteckning
Säve 3:63
UPPLÅTELSEFORM
Friköpt
BOENDEFORM
Friliggande villa
Antal rum
6 rum, varav 4 sovrum
Boarea
168 m² + 4 m² biarea
Tomtarea
1 400 kvm
Uteplats
Balkong på framsidan av huset och stor altan med pool på baksidan av huset.
Bilplats
Carport

BYGGNADSFAKTA

Uppvärmning
Frånluftsvärmepump
BYGGNADSÅR
2023 
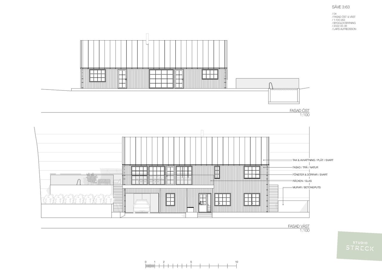
Fasad
Järnvitrol, gran
Fönster
3-glas
Tak
Svart bandtäckt plåt
Stomme
Trä
Bjälklag
Trä
Grundläggning
Betongplatta
Grundmur
Betong

Ekonomi

Utgångspris
6 995 000 kr

dokument

INSKRIVNINGAR / PLANBESTÄMMELSER

Servitut, etc
Gemensamhetsanläggning: Göteborg Säve GA:2 ändamål: Vägar
Förmån: Officialservitut Väg, 1480K-2020F291.1

VAD ÄR DIN BOSTAD VÄRD?

Stefan Hansson

"Jag hjälper dig gärna med en kostnadsfri värdering."

Stefan Hansson

Reg. fastighetsmäklare

VAD ÄR DIN BOSTAD VÄRD?

Jag hjälper dig gärna med en kostnadsfri värdering.

Bolånekalkyl

Hitta bostaden

Kunderna har sagt sitt
SVENSKA MÄKLARHUSET
ÄR DEN KEDJA SOM HAR
MEST NÖJDA KUNDER.

Enligt SKI - Svenskt Kvalitetsindex, där 1520 kunder i Sverige har tillfrågats om sin senaste bostadsaffär, är SMH - Svenska Mäklarhuset den mäklarkedja som placerar sig allra högst. Vill du också bli nöjd?

Kontakta oss idag oavsett som du ska sälja din bostad eller köpa en ny.

Till kontaktformuläret

Vi tar hjälp av cookies för att tillhandahålla våra tjänster. Genom att använda denna webbplats godkänner du att vi använder cookies.

Nedre Karlslundsvägen 20
Nedre Karlslundsvägen 20
Nedre Karlslundsvägen 20
Nedre Karlslundsvägen 20
Nedre Karlslundsvägen 20
Karlslundsvägen

Karlslundsvägen

Nedre Karlslundsvägen 20
Nedre Karlslundsvägen 20
Nedre Karlslundsvägen 20
Nedre Karlslundsvägen 20
Fastighetskarta

Fastighetskarta

Nedre Karlslundsvägen 20