Edsberg

Ribbings Väg 12B

Ljus och välplanerad 3:a med en solig balkong!

Till salu

Ljus och välplanerad 3:a med en solig balkong!

Ljus och välplanerad 3:a med en solig balkong med öppen utsikt. Lugnt område med närhet till natur, Rösjön, Edsviken, Edsbergs centrum, skolor och kommunikationer.

Visa mer
Ribbings Väg 12B Ribbings Väg 12B [email protected] Svenska Mäklarhuset

SNABBFAKTA

  • Utgångspris: 2 195 000 SEK
  • Boarea: 70 kvm föreningens information
  • Antal rum: 3 rum
  • Våning: 1 av 3, ej hiss
  • Avgift: 5 116 kr. Inkl värme, VA, kabel TV
  • Förening: Brf Solhjulet
  • Byggnadsår: 1963
  • Område: Edsberg , Sollentuna
Utgångspris

2 195 000 SEK

Visningar

Intresserad av visning? Vänligen kontakta mäklaren.

Intresseanmälan
Ansvarig mäklare

Cherry Lindström

Reg. fastighetsmäklare / Franchisetagare

Välkommen till Ribbings Väg 12B

Ljus och välplanerad 3:a med en solig och möblerbar balkong med öppen utsikt. Möblerbar hall. Renoverat (2012) och helkaklat badrum. Ljust kök med separat matplats för 4-6 personer. Rymligt och insynsskyddat vardagsrum med utgång till balkong. Två ljusa sovrum. Nyrenoverade ytskikt (2022). Omtyckt förening med stabil ekonomi. Lugnt område med närhet till natur, Rösjön, Edsviken, Edsbergs centrum, skolor och kommunikationer.

Varmt välkommen!

  • Helkaklat badrum
  • Nyrenoverade ytskikt (2022)
  • Solig balkong med markis och öppen utsikt

Balkong

Solig och möblerbar balkong med öppen utsikt.

Ribbings Väg 12B
Ribbings Väg 12B

Badrum

Renoverat (2012) och helkaklat badrum med badkar, handfat med kommod och spegelskåp, toalett och handdukstork. Sänkt tak med spotlights. Vitkaklade väggar och grått klinkergolv med golvvärme.

Ribbings Väg 12B

Vardagsrum

Rymligt och insynsskyddat vardagsrum med utgång till balkong. Vitmålade väggar och parkettgolv.

Ribbings Väg 12B
Ribbings Väg 12B
Ribbings Väg 12B

Kök

Ljust kök med separat matplats för 4-6 personer. Utrustat med spis, fläkt, 2 st kyl/frys och diskmaskin. Vita köksluckor och vitt kakel ovanför arbetsbänk. Vitmålade väggar och parkettgolv.

Ribbings Väg 12B
Ribbings Väg 12B
Ribbings Väg 12B

Sovrum 1

Stort, ljust och insynsskyddat sovrum med vitmålade väggar och parkettgolv.

Ribbings Väg 12B
Ribbings Väg 12B

Sovrum 2

Ljust sovrum med vitmålade väggar och parkettgolv.

Ribbings Väg 12B

Hall

Möblerbar hall med vitmålade väggar och parkettgolv.

Ribbings Väg 12B
Ribbings Väg 12B

Exteriör

Välkommen!

Ribbings Väg 12B

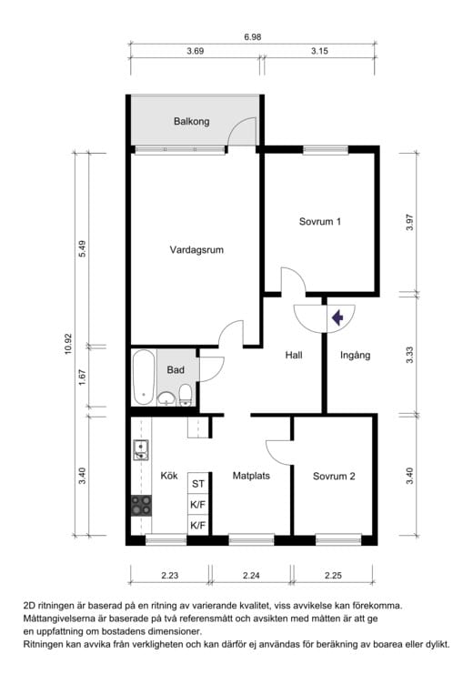
Planlösning

Ribbings Väg 12B

Om bostaden

Ljus och välplanerad 3:a med en solig balkong med öppen utsikt. Lugnt område med närhet till natur, Rösjön, Edsviken, Edsbergs centrum, skolor och kommunikationer.

Visa mer

ALLMÄNT

BOENDEFORM
Lägenhet
UPPLÅTELSEFORM
Bostadsrätt
Lägenhetsnummer
S0089
Månadsavgift
5 116 kr, inkl värme, VA, kabel TV
Antal rum
3 rum varav 2 sovrum + Kök
Boarea
70 m² föreningens information
Våning
1 av 3
Andel i förening
0,137 %
Andel av årsavgift
0,14 %
Nettoskuldsättning
355 667 kr
Reparationsfond
927 kr

Föreningen

Namn
Brf Solhjulet
ORGANISATIONSFORM/TYP
Bostadsrätt
Tillåter föreningen juridisk person
Nej
Äkta/Oäkta förening
Äkta
Allmänt om föreningen
Bostadsrättsföreningen Solhjulet är en mycket välskött och stabil förening som består av närmare 700 bostadsrätter samt ett fåtal hyresrätter och kommersiella lokaler (däribland en välbesökt restaurang). Föreningen är den största privata fastighetsägaren i kommunen och har av branschorganisationen Fastighetsägarna tilldelats utmärkelsen Årets bostadsrättsförening 2008.

Husen är byggda i början på 60-talet efter ritningar av den kända arkitekten Ernst Grönwall (biografen Draken). Trädgårdsanläggningen omkring husen utformades samtidigt av trädgårdsarkitekten Eric Anjou. Föreningen har tilldelats Sollentuna Kommuns byggnadsvårdsdiplom för föredömlig förvaltning.

På Kruthornsvägen 18 finns det en trappa som leder ner till föreningens fyra nybyggda gästlägenheter. På gaveln av höghuset, ungefär vid Kruthornsvägen 48 så öppnade under hösten 2015 den nyrenoverade och utbyggda snickarboden. I föreningen finns 5 st tvättstugor och en gemensam grovtvättstuga (dessa ligger på Ribbings väg 10, Kruthornsvägen 11, Kruthornsvägen 32, Kruthornsvägen 54 och Kruthornsvägen 60). Ett hobbyrum med snickeriutrustning (på Kruthornsvägen 48).

Bostadsrättsföreningen Solhjulet ligger med det blivande naturreservatet Rösjön som närmaste granne åt öster. Där finns bad, elljusspår, skidspår och naturupplevelser. Närmast åt väster ligger Edsbergs Centrum med butiker av olika slag. Rakt i söder, någon knapp kilometer bort, ligger Edsviken och Edsbergs Slott.

Bussar går dygnet runt (även nattbuss) både till Mörby/Danderyd och till Sollentuna Centrum. På gångavstånd når man även Väsjöbacken, som vintertid lockar många skidåkare.

Föreningen har en egen hemsida, www.solhjulet.com

Juridisk person accepteras ej.
Tv och Bredband
I stort alla* lägenheter i bostadsrättsföreningen Solhjulet är anslutna till Sollentuna stadsnät med så kallad fiberanslutning. Det går även att få bredband via Comhem. Kabel-tv via Comhem.
Parkering
Här i föreningen finns totalt 676 bilparkeringsplatser samt 6 stycken speciella parkeringsplatser för motorcyklar.

Föreningen har 5 olika typer av parkeringsplatser, dessa är:
Vanliga parkeringsplatser utan el.
Vanliga parkeringsplatser med el.
Parkeringsplatser i gemensamt garage.
Parkeringsplatser i eget garage.
MC-plats i gemensamt garage.

Det är kö. För mer information, se föreningens hemsida.
FÖRENINGENS RENOVERINGAR
GJORDA RENOVERINGAR
Stor fasad och balkongrenovering av samtliga fastigheter har pågått under en längre tid. Höghuset är sista fastigheten där renovering var klart under våren 2019.

KOMMANDE RENOVERINGAR
Centrala färskvattenledningar kommer successivt att bytas ut.
Huset är 60 år, vilket innebär att det är kontinuerliga renoveringar.

dokument

BYGGNADSFAKTA

Byggnadstyp
Flerfamiljshus
BYGGNADSÅR
1963
Hiss
Nej
Övriga byggnader/utrymmen
Det finns förråd.

Ekonomi

Utgångspris
2 195 000 kr
Pantsatt
Ja

DRIFT

El
4 800 kr/år
Försäkring
2 400 kr/år
DRIFTKOSTNAD TOTAL
7 200 kr/år
DRIFTKOSTNADEN AVSER
2 personer
Energideklaration
Utförd 2020-04-21
Energiklass
F

VAD ÄR DIN BOSTAD VÄRD?

Cherry Lindström

"Jag hjälper dig gärna med en kostnadsfri värdering."

Cherry Lindström

Reg. fastighetsmäklare / Franchisetagare

VAD ÄR DIN BOSTAD VÄRD?

Jag hjälper dig gärna med en kostnadsfri värdering.

Bolånekalkyl

Hitta bostaden

Kunderna har sagt sitt
SVENSKA MÄKLARHUSET
ÄR DEN KEDJA SOM HAR
MEST NÖJDA KUNDER.

Enligt SKI - Svenskt Kvalitetsindex, där 1520 kunder i Sverige har tillfrågats om sin senaste bostadsaffär, är SMH - Svenska Mäklarhuset den mäklarkedja som placerar sig allra högst. Vill du också bli nöjd?

Kontakta oss idag oavsett som du ska sälja din bostad eller köpa en ny.

Till kontaktformuläret

Vi tar hjälp av cookies för att tillhandahålla våra tjänster. Genom att använda denna webbplats godkänner du att vi använder cookies.

Balkong

Ribbings Väg 12B
Ribbings Väg 12B

Badrum

Ribbings Väg 12B

Vardagsrum

Ribbings Väg 12B
Ribbings Väg 12B
Ribbings Väg 12B

Kök

Ribbings Väg 12B
Ribbings Väg 12B
Ribbings Väg 12B

Sovrum 1

Ribbings Väg 12B
Ribbings Väg 12B

Sovrum 2

Ribbings Väg 12B

Hall

Ribbings Väg 12B
Ribbings Väg 12B

Exteriör

Ribbings Väg 12B

Planlösning

Planritning

Planritning