Kärrdal

Lomvägen 58

Rymlig och välplanerad 2:a med två möblerbara uteplatser!

Såld

Rymlig och välplanerad 2:a med två möblerbara uteplatser!

Rymlig och välplanerad 2:a med en möblerbar uteplats på framsidan och en stor, solig och insynsskyddad uteplats på baksidan.

Visa mer
Slutpris

2 160 000 SEK

Ansvarig mäklare

Cherry Lindström

Reg. fastighetsmäklare / Franchisetagare

Vi tar hjälp av cookies för att tillhandahålla våra tjänster. Genom att använda denna webbplats godkänner du att vi använder cookies.

Uteplats

Lomvägen 58
Lomvägen 58
Lomvägen 58
Lomvägen 58
Lomvägen 58

Badrum

Lomvägen 58

Kök

Lomvägen 58
Lomvägen 58
Lomvägen 58

Vardagsrum

Lomvägen 58
Lomvägen 58

Sovrum

Lomvägen 58

Hall

Lomvägen 58

Exteriör

Lomvägen 58
Lomvägen 58

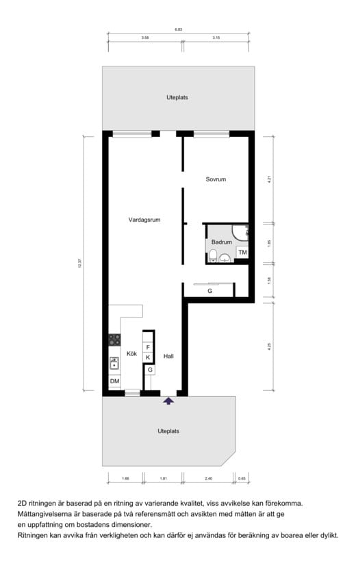
Planlösning

Planritning

Planritning