Roslags-Bro

Bredsjön Sjövägen

Till salu

Välkommen till en unik möjlighet att förverkliga din husdröm i idylliska Velända – en plats där lugnet möter naturens skönhet. Här erbjuds en plan och lättbyggd tomt med vacker skog och öppen åkermarker, perfekt för dig som söker både avskildhet och närhet till vatten.

Endast ca 5 minuters promenad från tomten finner du en stillsam insjö med strand, badbrygga och grillplats – ett paradis för sommarens lata dagar. Här finns även en plats för att lägga i en eka – perfekt för fiske, bad eller rofyllda turer på vattnet.

Tomten har bilväg ända fram, vilket gör byggstart smidig och tillgänglig året om. Servitut finns för vatten från grannfastigheten, och du väljer själv lösning för avlopp.

Denna tomt passar både dig som vill bygga fritidshus eller permanentboende.

Visa mer
Bredsjön Sjövägen Bredsjön Sjövägen [email protected] Svenska Mäklarhuset

SNABBFAKTA

  • Fastighetsbeteckning: Velända 1:53
  • Pris: 750 000 SEK
  • Tomtarea: 5 559 kvm
  • Område: Roslags-Bro , Norrtälje

750 000 SEK

Visningar

Intresserad av visning? Vänligen kontakta mäklaren.

Intresseanmälan
Ansvarig mäklare

Sophie Broström

Reg. fastighetsmäklare & Franchisetagare

Välkommen till Bredsjön Sjövägen

  • Stor tomt
  • Sjönära
  • Utanför detaljplanelagt område
  • Vattenbrunn finns
  • Plan och lättbyggd tomt

Övriga bilder

Delvis åkermark
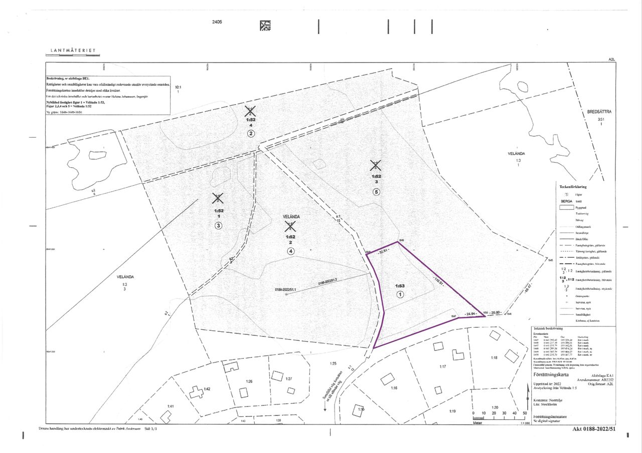
Fastighetskarta
Sandstrand och brygga
Väg fram till tomten
Uppställningsplats för båtar
Skogsväg för infart till tomt

ALLMÄNT

Fastighetsbeteckning
Velända 1:53
Tomtarea
5 559 kvm
Vatten/avlopp
Servitut på vattentäkt från grannfastighet. Avlopp saknas
Övrigt om tomt
Plan och lättplanerad tomt i närheten av sjön Bredsjön. Väg fram till tomten och servitut på vattentäkt.

INSKRIVNINGAR / PLANBESTÄMMELSER

Servitut, etc
Samfällighet: Norrtälje velända s:1
Förmån: Officialservitut Vattenledning, 0188-2022/51.2
Förmån: Officialservitut Vattentäkt, 0188-2022/51.1
Planbestämmelser
Ej detaljplanelagt område

Ekonomi

Utgångspris
750 000 kr
FASTIGHETSAVGIFT
6 610 kr/år
TAXERINGSVÄRDE
661 000 kr (Taxeringsår 2024)
TAXERINGSKOD
210, Småhusenhet, tomtmark

dokument

Allmänt om området

Fastigheten är beläget i ett mycket vackert område av Roslagen, med flera småsjöar och närhet till havet.

VAD ÄR DIN BOSTAD VÄRD?

Sophie Broström

"Jag hjälper dig gärna med en kostnadsfri värdering."

Sophie Broström

Reg. fastighetsmäklare & Franchisetagare

VAD ÄR DIN BOSTAD VÄRD?

Jag hjälper dig gärna med en kostnadsfri värdering.

Bolånekalkyl

Hitta bostaden

Kunderna har sagt sitt
SVENSKA MÄKLARHUSET
ÄR DEN KEDJA SOM HAR
MEST NÖJDA KUNDER.

Enligt SKI - Svenskt Kvalitetsindex, där 1520 kunder i Sverige har tillfrågats om sin senaste bostadsaffär, är SMH - Svenska Mäklarhuset den mäklarkedja som placerar sig allra högst. Vill du också bli nöjd?

Kontakta oss idag oavsett som du ska sälja din bostad eller köpa en ny.

Till kontaktformuläret

Vi tar hjälp av cookies för att tillhandahålla våra tjänster. Genom att använda denna webbplats godkänner du att vi använder cookies.

Delvis åkermark

Delvis åkermark

Fastighetskarta

Fastighetskarta

Sandstrand och brygga

Sandstrand och brygga

Väg fram till tomten

Väg fram till tomten

Uppställningsplats för båtar

Uppställningsplats för båtar

Skogsväg för infart till tomt

Skogsväg för infart till tomt

Bredsjön

Bredsjön

Badplats och brygga

Badplats och brygga

Grillplats vid bad

Grillplats vid bad

Tomtkarta

Tomtkarta