Centralt

Edsgatan 27

En av Vänersborgs mest historiska och anrika våning är nu till salu!

Till salu

En av Vänersborgs mest historiska och anrika våning är nu till salu!

Är du på jakt efter en lägenhet med det lilla extra! Då ska du spana in denna pampiga våning med adress Edsgatan 27. En våning med 5 rok om 155 kvm som präglas av ljus och volym samt moderna bekvämligheter som lyxigt kök och badrum. Detta är ett hem där stilen från det tidiga 1900-talet blandas med modern stilren inredning. I bostaden har vi enhetliga ytskikt i ljusa toner, generös takhöjd och stora, fina sociala ytor där större sällskap utan problem kan umgås. Det som verkligen utmärker dessa lägenheter är de stora fönsterpartierna som släpper in rikligt med ljus.

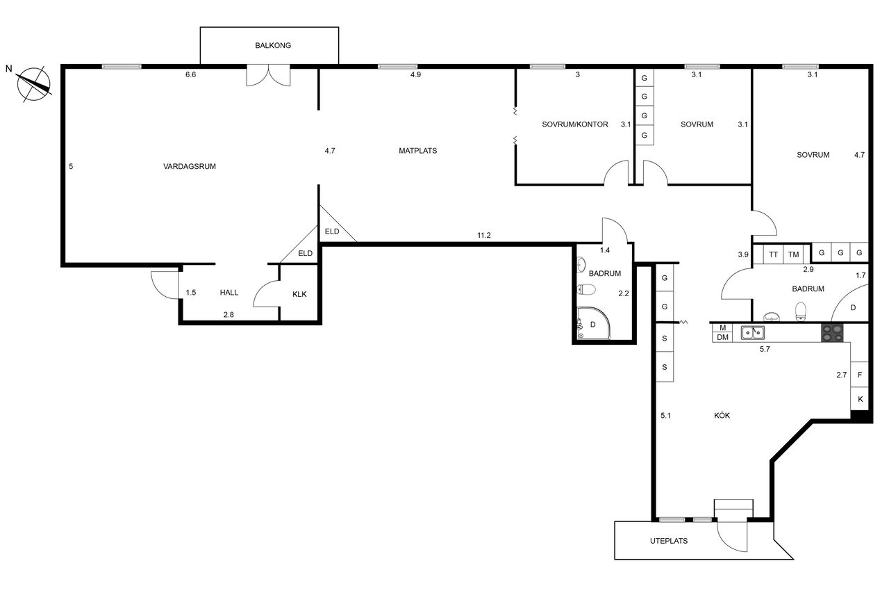
Bostaden inrymmer ett vardagsrum och matsal i fil med två kakelugnar och balkong med utsikt över centrala Vänersborg, tre sovrum i bra storlekar, två badrum och ett inbjudande kök med utgång till uteplats.

Som bostadsrättsinnehavare har du möjlighet att nyttja den gemensamma takterrassen.

Här har du nu chansen att bo i ett modernt hem i ett historiskt landmärke, mitt i centrala Vänersborg. Välkommen att boka in dig på visning!

Visa mer
Edsgatan 27 Edsgatan 27 [email protected] Svenska Mäklarhuset

SNABBFAKTA

  • utgångspris: 2 950 000 SEK
  • Boarea: 155 kvm föreningens information
  • Antal rum: 5 rum
  • Våning: 2 av 4, hiss finns
  • Avgift: 10 947 kr. Inklusive värme, VA, TV/bredband (fiber)
  • Förening: Brf Edsgatan Park
  • Byggnadsår: 1917
  • Område: Centralt , Vänersborg
utgångspris

2 950 000 SEK

Visningar

Intresserad av visning? Vänligen kontakta mäklaren.

Intresseanmälan
Ansvarig mäklare

Daniel Johansson

Reg. fastighetsmäklare / Franchisetagare
Assisterande

Frida Dahlqvist

Mäklarkoordinator/ fastighetsmäklare

Välkommen till Edsgatan 27

VÄLKOMMEN

Välkommen till Edsgatan 27!

Edsgatan 27

HALL

Hall med klinkergolv och vitmålade väggar. I den inre hallen finns en klädkammare.

Edsgatan 27
Edsgatan 27

KÖK

Kök med kvalitativa vitvaror och är utrustat med kyl, frys, spishäll, diskmaskin och spisfläkt. Från köket når du uteplatsen som är belägen i härligt solläge.

Edsgatan 27
Edsgatan 27
Edsgatan 27
Edsgatan 27
Edsgatan 27
Edsgatan 27
Edsgatan 27
Edsgatan 27

VARDAGSRUM

Från hallen kommer du in i det storslagna sällskapsrummet. Här finns gott om plats för möblemang. Härifrån når du balkongen med utsikt över plantaget i Vänersborg. Här finns även en kakelugn.

Edsgatan 27
Edsgatan 27
Edsgatan 27
Edsgatan 27
Edsgatan 27
Edsgatan 27

VY

Trevlig utsikt från balkongen mot det centrala Vänersborg.

Edsgatan 27
Edsgatan 27

MATSAL

I anslutning till vardagsrummet ligger matsalsdelen som även detta rum har vacker kakelugn.

Edsgatan 27
Edsgatan 27
Edsgatan 27
Edsgatan 27

SOVRUM

Bostaden inrymmer tre sovrum i bra storlekar. Ljusa ytskikt i samtliga rum och gott om garderober.

Edsgatan 27
Edsgatan 27
Edsgatan 27
Edsgatan 27

BADRUM & TVÄTTSTUGA

Bostaden har två fräscha och helkaklade badrum. I den ena badrummet finns även tvättmaskin och torktumlare.

Edsgatan 27
Edsgatan 27
Edsgatan 27

DRÖNARBILDER OMRÅDET

Denna anrika fastighet är ett historiskt landmärke, mitt i hjärtat av Vänersborg.

Edsgatan 27
Edsgatan 27
Edsgatan 27

Planlösning

Edsgatan 27

ALLMÄNT

BOENDEFORM
Lägenhet
UPPLÅTELSEFORM
Bostadsrätt
Lägenhetsnummer
4
Månadsavgift
10 947 kr, Inklusive värme, VA, TV/bredband (fiber)
Antal rum
5 rum varav 3 sovrum
Boarea
155 m² föreningens information
Våning
2 av 4, hiss finns
Andel i förening
10,7266 %
Andel av årsavgift
10,7266 %
Nettoskuldsättning
1 799 047 kr, Som underlag till beräkningen har föreningens årsredovisning (2023) använts. Den indirekta nettoskuldsättningen har beräknats på följande sätt: föreningens räntebärande skulder minus räntebärande tillgångar minus likvidamedel multiplicerat med andelstalet för årsavgift (i decimalform).

Föreningen

Namn
Brf Edsgatan Park
ORGANISATIONSFORM/TYP
Bostadsrätt
Antal lägenheter
14 lägenheter, 3 lokaler
Tillåter föreningen juridisk person
Nej
Äger föreningen marken
Ja
Äkta/Oäkta förening
Äkta
Överlåtelseavgift
1 470 kr
Pantsättningsavgift
588 kr
Allmänt om föreningen
Föreningen är ett privatbostadsbolag (äkta bostadsrättsförening) enligt inkomstskattelagen (1999:1229). Föreningen registrerades 2015.

Föreningen förvärvade fastigheten Näckrosen 1 den 11 mars 2015 och efter påbyggnation i den befintliga byggnaden färdigställdes 14 bostadsrättslägenheter under år 2016. Inflyttning i dessa påbörjades 1 juni 2016.
FÖRENINGENS EKONOMI
Föreningen höjde månadsavgiften 2025-01-01 med +13%. Tidigare avgiftshöjning skedde 2024-01-01 med +15%.
Tv och Bredband
Fiber
Gemensamma utrymmen
Gemensam takterrass finns att tillgå för de boende i föreningen.
Här finns även cykelförråd, soprum och källarförråd.
Parkering
Parkeringsmöjligheter erbjuds på Skansgatan 2 (både garage och parkeringsplats, sep. kö), alternativt på det närliggande torget genom ansökan av boendeparkeringskort.
FÖRSÄKRING
Fastigheten är fullvärdesförsäkrad i Länsförsäkringar. Hemförsäkring tecknas och bekostas individuellt av bostadsrättsinnehavarna medans kollektivt bostadsrättstillägg ingår i föreningens fastighetsförsäkring.

dokument

BYGGNADSFAKTA

Byggnadstyp
Flerfamiljshus
BYGGNADSÅR
1917
Uppvärmning
Fjärrvärme
Fönster
3-glas
VENTILATION
FTX
Hiss
Ja
Övriga byggnader/utrymmen
Gemensam takterrass finns att tillgå för de boende i föreningen.
Här finns även cykelförråd, soprum och källarförråd.

Ekonomi

utgångspris
2 950 000 kr
Pantsatt
Nej

DRIFT

El
4 800 kr/år
Försäkring
2 400 kr/år
DRIFTKOSTNAD TOTAL
7 200 kr/år
DRIFTKOSTNADEN AVSER
1 person
Kommentar
Detta är säljarens individuella driftkostnad och ska endast ses som en uppskattning.
Energideklaration
Utförd 2021-03-23
Energiklass
D
PRIMÄRENERGITAL
78 kWh per kvm och år

VAD ÄR DIN BOSTAD VÄRD?

Daniel Johansson

"Jag hjälper dig gärna med en kostnadsfri värdering."

Daniel Johansson

Reg. fastighetsmäklare / Franchisetagare

VAD ÄR DIN BOSTAD VÄRD?

Jag hjälper dig gärna med en kostnadsfri värdering.

Bolånekalkyl

Hitta bostaden

Kunderna har sagt sitt
SVENSKA MÄKLARHUSET
ÄR DEN KEDJA SOM HAR
MEST NÖJDA KUNDER.

Enligt SKI - Svenskt Kvalitetsindex, där 1520 kunder i Sverige har tillfrågats om sin senaste bostadsaffär, är SMH - Svenska Mäklarhuset den mäklarkedja som placerar sig allra högst. Vill du också bli nöjd?

Kontakta oss idag oavsett som du ska sälja din bostad eller köpa en ny.

Till kontaktformuläret

Vi tar hjälp av cookies för att tillhandahålla våra tjänster. Genom att använda denna webbplats godkänner du att vi använder cookies.

VÄLKOMMEN

Edsgatan 27

HALL

Edsgatan 27
Edsgatan 27

KÖK

Edsgatan 27
Edsgatan 27
Edsgatan 27
Edsgatan 27
Edsgatan 27
Edsgatan 27
Edsgatan 27
Edsgatan 27

VARDAGSRUM

Edsgatan 27
Edsgatan 27
Edsgatan 27
Edsgatan 27
Edsgatan 27
Edsgatan 27

VY

Edsgatan 27
Edsgatan 27

MATSAL

Edsgatan 27
Edsgatan 27
Edsgatan 27
Edsgatan 27

SOVRUM

Edsgatan 27
Edsgatan 27
Edsgatan 27
Edsgatan 27

BADRUM & TVÄTTSTUGA

Edsgatan 27
Edsgatan 27
Edsgatan 27

DRÖNARBILDER OMRÅDET

Edsgatan 27
Edsgatan 27
Edsgatan 27

Planlösning

Edsgatan 27