Torpa

Flanaden 100

3:a med balkong på övre plan!

Till salu

3:a med balkong på övre plan!

Välkommen till denna ljusa och välplanerade trerumslägenhet på översta våningen, där du får både komfort och en fantastisk utsikt! Lägenheten erbjuder två rymliga sovrum, ett stort vardagsrum med härlig rymd och utgång till en solig balkong – perfekt för både avkoppling och sociala stunder.

Köket är ljust och rymligt, med gott om plats för både matlagning och umgänge. Här flödar dagsljuset in och skapar en härlig atmosfär. Lägenheten har dessutom en tvättmaskin och torktumlare för praktisk bekvämlighet i vardagen.

Badrummet kommer att renoveras under våren, då bostadsrättsföreningen stamrenoverar alla lägenheter i föreningen. Här bor du bekvämt och centralt med alla fördelar av en modern bostad.

Boka in Dig på visning redan idag!

Visa mer
Flanaden 100 Flanaden 100 [email protected] Svenska Mäklarhuset

SNABBFAKTA

  • Pris: 320 000 SEK
  • Boarea: 76 kvm föreningens information
  • Antal rum: 3 rum
  • Våning: 3 av 3, ej hiss
  • Avgift: 6 278 kr
  • Förening: Riksbyggen Ängsvallen
  • Byggnadsår: 1974
  • Område: Torpa , Vänersborg

320 000 SEK

Visningar

Intresserad av visning? Vänligen kontakta mäklaren.

Intresseanmälan
Ansvarig mäklare

Sophia Hedberg

Reg. fastighetsmäklare
Assisterande

Lotta Nilsson

Mäklarkoordinator

Välkommen till Flanaden 100

KÖK

Här finns gott om förvaringsskåp och arbetsyta. Ny kyl/frys från 2024. Plastmatta och tapet.

Flanaden 100
Flanaden 100
Flanaden 100
Flanaden 100
Flanaden 100

VARDAGSRUM

Ljust sällskapsrum med utgång till balkongen. Parkettgolv och tapet.

Flanaden 100
Flanaden 100

SOVRUM 1

Rymligt sovrum med en garderob. Laminatgolv och tapet.

Flanaden 100

SOVRUM 2

Rymligt sovrum med god plats för möblering. Garderober finns. Laminatgolv och tapet.

Flanaden 100

BADRUM

Badrummet kommer att renoveras under våren, då stamrenovering pågår. Badkar, tvättställ, spegelskåp och WC, samt tvättmaskin och torktumlare.

Flanaden 100

BALKONG

Trevlig balkong i västerläge.

Flanaden 100

ENTRÈHALL

Välkommen in i en möblerbar hall med laminatgolv och tapet.

Visa mer

Övriga bilder

Flanaden 100
Flanaden 100
Flanaden 100
Flanaden 100
Flanaden 100

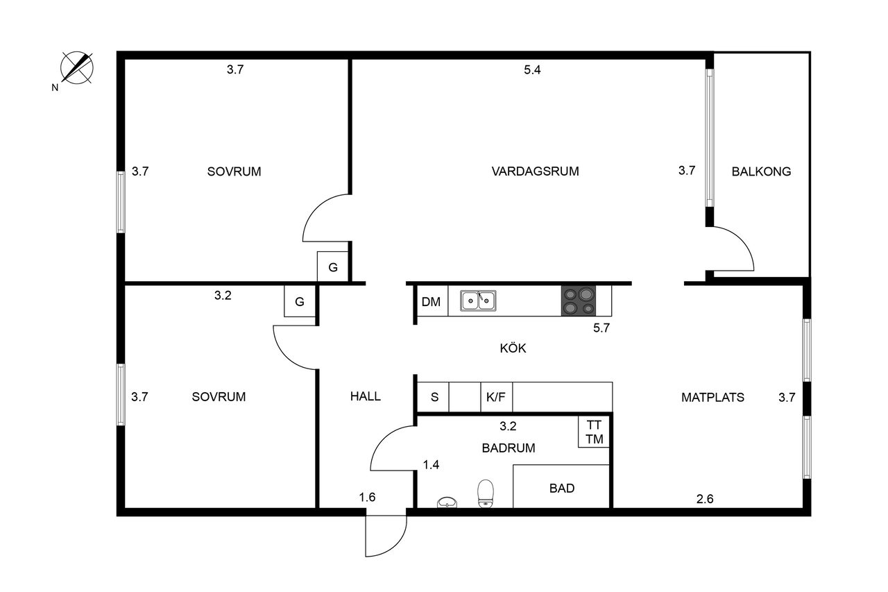
Planlösning

Flanaden 100

ALLMÄNT

BOENDEFORM
Lägenhet
UPPLÅTELSEFORM
Bostadsrätt
Lägenhetsnummer
213041005-0222
Månadsavgift
6 278 kr
Antal rum
3 rum
Boarea
76 m² föreningens information
Våning
3 av 3
Andel i förening
0,32191 %
Nettoskuldsättning
147 830 kr
Reparationsfond
27 kr
Bilplats
Garageplats och parkeringsplats finns att hyra, separat kö.

Föreningen

Namn
Riksbyggen Ängsvallen
ORGANISATIONSFORM/TYP
Bostadsrätt
Tillåter föreningen juridisk person
Nej
Äkta/Oäkta förening
Oäkta
Överlåtelseavgift
1 433 kr
Pantsättningsavgift
573 kr

dokument

BYGGNADSFAKTA

BYGGNADSÅR
1974
Uppvärmning
Fjärrvärme
Fönster
3-glas
VENTILATION
Mekanisk (endast frånluft)
Hiss
Nej
Övrigt om byggnaden
Utförda renoveringar: Barnvagnsrum
Rensat ventilationskanalerna, elarbete
Huskropp utvändigt
Markytor
Gemensamma utrymmen
Garage och parkeringsplatser
Byte av balkongfronter 2018
Fönsterbyte 2017-2018
Byte lägenhetsdörrar 2017
Dränering 2013-2016
Yttertak 2014
Nya entrédörrar 2009
Kommande renoveringar: Stamrenovering
Byte av franska balkonger
Övriga byggnader/utrymmen
Tvättstuga, Gym, Solarium, Parkeringshus

Ekonomi

Utgångspris
320 000 kr
Pantsatt
Nej

DRIFT

El
2 688 kr/år
Försäkring
1 560 kr/år
Övrigt
1 908 kr/år
DRIFTKOSTNAD TOTAL
6 156 kr/år
DRIFTKOSTNADEN AVSER
2 personer
Kommentar
Kostnaden under övrigt gäller Bredband och kabel-TV, som läggs på avgiftsavin.
Elförbrukning
1 788 kWh/år
Energideklaration
Utförd
Energiklass
E
PRIMÄRENERGITAL
136 kWh per kvm och år

Allmänt om området

Torpa är ett naturskönt och trivsamt bostadsområde beläget i Vänersborg, en stad vid Västra Götalands vackra västkust. Området har en lugn och hemtrevlig känsla, med en blandning av äldre och nyare bostäder, vilket ger det en charmig och varierad karaktär. Här hittar man både fristående villor, radhus och lägenheter, vilket gör Torpa till ett attraktivt område för många olika typer av boende.

Torpa präglas av sin närhet till naturen, med flera grönområden och rekreationsmöjligheter i omgivningen. Ett flertal gång- och cykelvägar gör det enkelt att ta sig runt, och området ligger nära både Vänersborgs centrum och sjöarna Vänern och Nygårdsjön, vilket ger invånarna möjlighet till både stadsliv och naturnära upplevelser.

En av Torpas styrkor är dess familjevänliga atmosfär, med bra skolor, förskolor och fritidsaktiviteter för barn och ungdomar. Det finns även närbutiker och andra bekvämligheter som gör vardagen praktisk och bekväm. Samtidigt ligger Vänersborgs centrum på ett bekvämt avstånd, där man kan hitta ett större utbud av affärer, restauranger och kulturella aktiviteter.

Trots sin närhet till staden erbjuder Torpa en avkopplande och rofylld miljö, vilket gör det till ett populärt val för både unga familjer och äldre. Torpa är ett område där många trivs, både för sin närhet till naturen och sin goda tillgång till stadens service och möjligheter.

Närservice

Matbutiker, apotek, vårdcentral, skolor

VAD ÄR DIN BOSTAD VÄRD?

Sophia Hedberg

"Jag hjälper dig gärna med en kostnadsfri värdering."

Sophia Hedberg

Reg. fastighetsmäklare

VAD ÄR DIN BOSTAD VÄRD?

Jag hjälper dig gärna med en kostnadsfri värdering.

Bolånekalkyl

Hitta bostaden

Kunderna har sagt sitt
SVENSKA MÄKLARHUSET
ÄR DEN KEDJA SOM HAR
MEST NÖJDA KUNDER.

Enligt SKI - Svenskt Kvalitetsindex, där 1520 kunder i Sverige har tillfrågats om sin senaste bostadsaffär, är SMH - Svenska Mäklarhuset den mäklarkedja som placerar sig allra högst. Vill du också bli nöjd?

Kontakta oss idag oavsett som du ska sälja din bostad eller köpa en ny.

Till kontaktformuläret

Vi tar hjälp av cookies för att tillhandahålla våra tjänster. Genom att använda denna webbplats godkänner du att vi använder cookies.

KÖK

Flanaden 100
Flanaden 100
Flanaden 100
Flanaden 100
Flanaden 100

VARDAGSRUM

Flanaden 100
Flanaden 100

SOVRUM 1

Flanaden 100

SOVRUM 2

Flanaden 100

BADRUM

Flanaden 100

BALKONG

Flanaden 100

Övriga bilder

Flanaden 100
Flanaden 100
Flanaden 100
Flanaden 100
Flanaden 100

Planlösning

Planritning Flanaden 100, Vänersborg

Planritning Flanaden 100, Vänersborg