Brålanda

Rostocksvägen 8

Mycket välskött och fin villa i Centrala Brålanda !

Såld

Mycket välskött och fin villa i Centrala Brålanda !

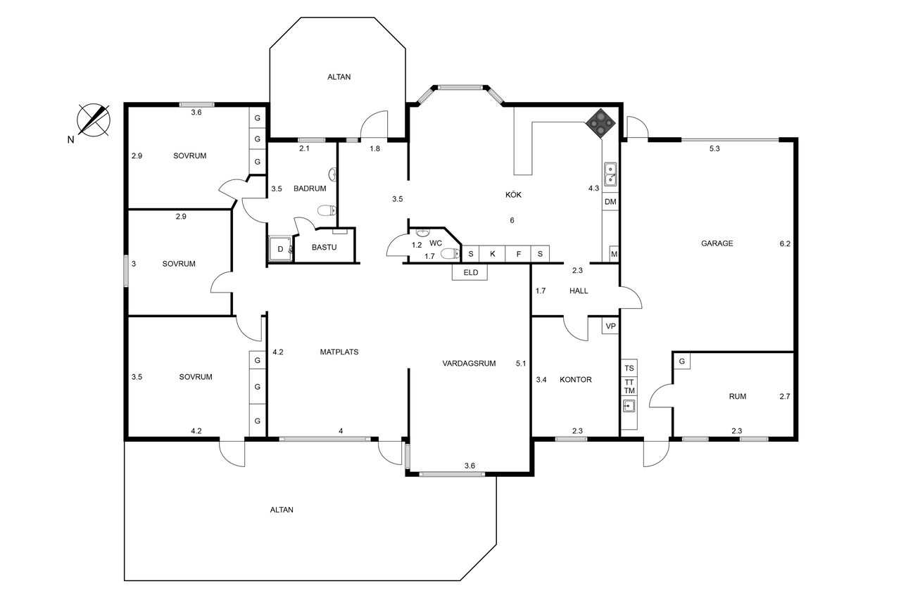
Snart välkomnas ni till denna fina och välskötta villa, belägen i ett lugnt och trivsamt område. Här erbjuds en mycket smakfullt renoverad och inbjudande bostad som har allt för att skapa ett bekvämt och harmoniskt hem.

Köket, renoverat 2017 med högkvalitativa material från Ballingslöv, är både funktionellt och stilrent. Här kan du njuta av matlagning i en modern miljö med gott om arbetsytor, hel kyl och frys, samt smarta förvaringslösningar.

Det rymliga vardagsrummet, med en vacker Kronspis braskamin med ny kassett 2017, skapar en varm och inbjudande atmosfär för både avkoppling och sociala stunder. Från vardagsrummet har du också utgång till altanen och den välplanerade trädgården, med ett äppleträd, pergola och en inhägnad uteplats på framsidan där du kan njuta av morgonsolen i lugn och ro med ditt husdjur eller småbarn.

Huset har tre mysiga sovrum, ett arbetsrum samt ett badrum och gästtoalett som renoverades 2017. Det rymliga badrummet är en verklig höjdpunkt, med bastu för avkoppling och återhämtning.

Utomhus finns dessutom ett spabad, där du kan koppla av året runt, samt ett garage med elport för extra komfort . Elporten, alla fönster och alla ytterdörrar, samt innerdörrar byttes ut 2019.

Denna villa erbjuder en perfekt balans mellan modern bekvämlighet och en lantlig känsla med fina utemiljöer, och passar både för familjeliv och avkopplande stunder. Här kan du verkligen känna dig hemma!

Visa mer
Slutpris

1 400 000 SEK

Ansvarig mäklare

Sophia Hedberg

Reg. fastighetsmäklare

Vi tar hjälp av cookies för att tillhandahålla våra tjänster. Genom att använda denna webbplats godkänner du att vi använder cookies.

Entréhall

Rostocksvägen 8
Rostocksvägen 8

Kök

Rostocksvägen 8
Rostocksvägen 8
Rostocksvägen 8
Rostocksvägen 8
Rostocksvägen 8
Rostocksvägen 8
Rostocksvägen 8
Rostocksvägen 8
Rostocksvägen 8

Vardagsrum

Rostocksvägen 8
Rostocksvägen 8
Rostocksvägen 8
Rostocksvägen 8
Rostocksvägen 8

Matplats

Rostocksvägen 8
Rostocksvägen 8
Rostocksvägen 8

Sovrum

Rostocksvägen 8
Rostocksvägen 8

Badrum

Rostocksvägen 8
Rostocksvägen 8
Rostocksvägen 8

Gästtoalett

Rostocksvägen 8

Arbetsrum

Rostocksvägen 8

Garage/uppfart

Rostocksvägen 8
Rostocksvägen 8

Exteriör

Rostocksvägen 8
Rostocksvägen 8
Rostocksvägen 8
Rostocksvägen 8
Rostocksvägen 8
Rostocksvägen 8
Rostocksvägen 8
Rostocksvägen 8
Rostocksvägen 8
Rostocksvägen 8
Rostocksvägen 8
Rostocksvägen 8
Rostocksvägen 8
Rostocksvägen 8
Rostocksvägen 8
Rostocksvägen 8
Rostocksvägen 8
Rostocksvägen 8
Rostocksvägen 8
Rostocksvägen 8

Jacuzzi

Rostocksvägen 8
Rostocksvägen 8

Övriga bilder

Rostocksvägen 8
Rostocksvägen 8
Rostocksvägen 8
Rostocksvägen 8
Rostocksvägen 8

Planlösning

Planritning Rostocksvägen 8, Brålanda

Planritning Rostocksvägen 8, Brålanda