Brålanda

Hopperud 136

Åretruntbostad i närheten av Sikhalls fina strand!

Såld

Åretruntbostad i närheten av Sikhalls fina strand!

Är du på jakt efter ett mindre hus i lantligt läge? Då ska du kolla in detta hus med adress Hopperud 136 med bara 1,5 km till den fina långgrunda stranden vid Sikhalls camping. Sedan förvärvet 2015 har nuvarande ägare utfört flertalet fina renoveringar som bland annat kök, badrum, luftvärmepump, altan och uppdaterat stort sett samtliga ytskikt.

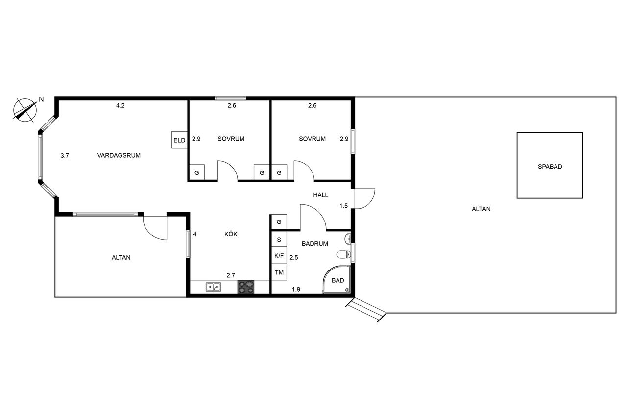
Huset på 59 kvm är byggt 1990 och inrymmer vardagsrum med braskamin, kök, två sovrum och badrum med tvättmaskin. Rymlig härlig altan med spabad där du kan njuta av solen under stor del av dagen. Detta är ett hus för er som letar efter fritidshus men även för er som vill bo permanent i ett fint lantligt läge. Tomten är på 1288 kvm och är delvis kuperad.

Här bor du med cykelavstånd till vackra sandstränder och ca 20 km in till Vänersborg. Frändefors når du på 15 min med bil. Ta nu chansen och upplev detta hus på plats! Välkommen att boka in dig på visningen.

Visa mer
Slutpris

1 550 000 SEK

Ansvarig mäklare

Daniel Johansson

Reg. fastighetsmäklare / Franchisetagare
Assisterande

Frida Dahlqvist

Mäklarkoordinator/ fastighetsmäklare

Vi tar hjälp av cookies för att tillhandahålla våra tjänster. Genom att använda denna webbplats godkänner du att vi använder cookies.

VÄLKOMMEN!

Hopperud 136
Hopperud 136
Hopperud 136
Hopperud 136

HALL

Hopperud 136
Hopperud 136

VARDAGSRUM

Hopperud 136
Hopperud 136
Hopperud 136

KÖK

Hopperud 136
Hopperud 136
Hopperud 136

SOVRUM

Hopperud 136
Hopperud 136

BADRUM

Hopperud 136
Hopperud 136

ALTAN

Hopperud 136
Hopperud 136

TOMT

Hopperud 136
Hopperud 136
Hopperud 136
Hopperud 136

OMGIVNING

Hopperud 136
Hopperud 136
Hopperud 136

SÄLJARENS BILDER

Hopperud 136
Hopperud 136

Planlösning

Hopperud 136