Åmål

Ljungsbergsgatan 29

Rymlig familjevilla i Åmål alldeles intill Vänern!

Till salu

Rymlig familjevilla i Åmål alldeles intill Vänern!

Välkommen till denna rymliga familjevilla som är belägen alldeles intill Vänern, bara några steg från Vänerns strand. Huset har minst 4-5 sovrum och flertalet fina sociala ytor.
Entréplan består av ett sovrum, badrum, wc och ett allrum med öppen spis. Ytterligare 3 rum kan användas som extra sovrum. Helkaklad tvättstuga finns.
Övre plan består av ett fantastiskt luftigt vardagsrum, kök, tre sovrum och badrum. Från vardagsrummet når du den stora altanen på hela 100 kvm. Här finns både bastu och spabad som kan nyttjas under hela året. Härifrån har du fin utsikt över Vänern.

Huset har renoverats under de senaste åren med mycket omsorg och det har bland annat bytts fönster med plastramar, el & VVS, tak i de flesta rum. Det har installerats en jordvärmepump och två nya badrum och gästtoalett, nästan hela husets väggar har spacklats, slipats och målats, nya golv har lagts i hela entréplanen inklusive källarutrymmen (delvis golvvärme), badrummen och i vardagsrummet/kök m.m.

Här på Ljungsbergsgatan bor du i en avkopplande miljö, samtidigt som du kan promenera in till centrum, en charmig småstad med utmärkt infrastruktur och Dalslands hisnande natur. Du har även närhet till golfbana, skidområde och fina promenadstråk - perfekt för naturälskare och sportentusiaster. Här finns även förskolor och skolor i närheten. Den makalösa utsikten över den idylliska viken ”Norra Viken” skapar en atmosfär av lugn och ro.

Välkommen att boka in dig på visningen!

Visa mer
Ljungsbergsgatan 29 Ljungsbergsgatan 29 [email protected] Svenska Mäklarhuset

SNABBFAKTA

  • Antal rum: 6 rum
  • Boarea: 161 kvm + 86 kvm biarea
  • Tomtarea: 787 kvm
  • Byggnadsår: 1971
  • Område: Åmål, Åmål
  • Fastighetsbeteckning: Violen 5

Visningar

Intresserad av visning? Vänligen kontakta mäklaren.

Intresseanmälan
Ansvarig mäklare

Daniel Johansson

Reg. fastighetsmäklare / Franchisetagare

Välkommen till Ljungsbergsgatan 29

VÄLKOMMEN!

Välkommen till jungsbergsgatan 29 och detta unika hus alldeles intill Vänern!

Ljungsbergsgatan 29
Ljungsbergsgatan 29
Ljungsbergsgatan 29
Ljungsbergsgatan 29
Ljungsbergsgatan 29

HALL

Rymlig hall med klinkergolv och golvvärme. Direkt till höger når vi gästtoaletten.

Ljungsbergsgatan 29
Ljungsbergsgatan 29
Ljungsbergsgatan 29

ALLRUM

Allrum på entréplan med parkettgolv och kamin.

Ljungsbergsgatan 29
Ljungsbergsgatan 29
Ljungsbergsgatan 29

WC

På entréplan finns en gästtoalett.

Ljungsbergsgatan 29

VARDAGSRUM

Fantastiskt sällskapsrum där den stora familjen får plats att umgås! Öppen trivsam planlösning mot köket. Härifrån når du den pampiga altanen med slående utsikt över Vänern.

Ljungsbergsgatan 29
Ljungsbergsgatan 29
Ljungsbergsgatan 29

KÖK

Köket är utrustat med kyl/frys, spis, diskmaskin och spisfläkt. Laminatgolv, kakel ovanför diskbänken och målade väggar.

Ljungsbergsgatan 29
Ljungsbergsgatan 29
Ljungsbergsgatan 29

SOVRUM

Entréplanet består av 2-3 sovrum och på övre plan finner vi 3 sovrum. Från det största rummet finns utgång till den härliga altanen. Från ett av sovrummen på övre plan når du den mysiga balkongen.

Ljungsbergsgatan 29
Ljungsbergsgatan 29
Ljungsbergsgatan 29
Ljungsbergsgatan 29
Ljungsbergsgatan 29
Ljungsbergsgatan 29

BADRUM

Helkaklat badrum på entréplan med wc, handfat med kommod och dusch. Badrummet på övre plan har våtrumsmatta och kaklade väggar och är utrustat med wc, handfat med kommod och dusch.

Ljungsbergsgatan 29
Ljungsbergsgatan 29
Ljungsbergsgatan 29
Ljungsbergsgatan 29
Ljungsbergsgatan 29

ALTAN

En magisk altan om hela 100 kvm där du kan sitta och njuta av solnedgången. Både spabad och bastu finns.

Ljungsbergsgatan 29
Ljungsbergsgatan 29
Ljungsbergsgatan 29
Ljungsbergsgatan 29
Ljungsbergsgatan 29
Ljungsbergsgatan 29

OMGIVNING

Vacker omgivning runt om fastigheten.

Ljungsbergsgatan 29
Ljungsbergsgatan 29
Ljungsbergsgatan 29

TOMT

Fin tomt på 787 kvm.

Ljungsbergsgatan 29

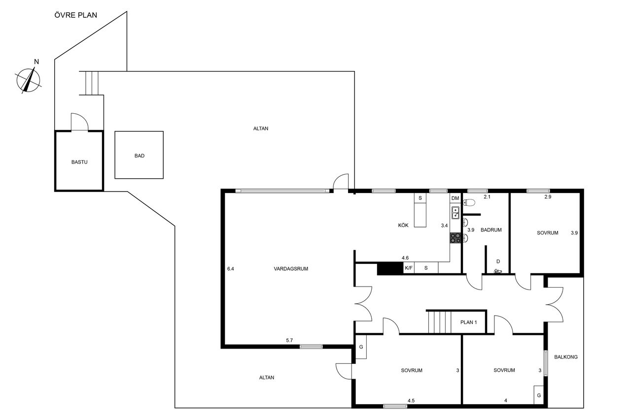
Planlösning

Ljungsbergsgatan 29
Ljungsbergsgatan 29

ALLMÄNT

Fastighetsbeteckning
Violen 5
UPPLÅTELSEFORM
Friköpt
BOENDEFORM
Friliggande villa
Antal rum
6 rum, varav 4 - 5 sovrum
Boarea
161 m² + 86 m² biarea taxeringsinformation
Kommentar till areakälla
Enligt säljarens mätning har huset en boarea på 210 kvm och en biarea på 37 kvm.
Tomtarea
787 kvm
Uteplats
Rymlig träterrass (100 m²) med inbyggt spa-bad för 8 personer (inkl. belysning och massagestrålar) och fatbastu 2023
Bilplats
Rymlig parkeringsplats framför garaget. Bredvid bilplatsen finns parkering för en bil till eller till en båt som måste stå på mark på vintern.
Tomt
Tomten är kuperad trädgårdstomt med stort altandäck med spabad och bastu med utsikt mot Vänern med mycket sol.

BYGGNADSFAKTA

Uppvärmning
Bergvärme, kamin
BYGGNADSÅR
1971 
Byggnadstyp
2-plansvilla
Fasad
Tegel
Fönster
3-glas fönster
Tak
Papp
Stomme
Trä
Bjälklag
Trä
Vatten/avlopp
Kommunalt vatten året om. Kommunalt avlopp, extra anslutning till sjövatten för bevattning av trädgården (mars-oktober).
VENTILATION
Självdrag
RENOVERINGAR MM.
2004: Tak
2010-2012: Fönster
2013: Bergvärmepump
2023: Flertalet stora träd har tagits bort
2024: El och VVS, golv i stora delar av huset, ytskiktsrenovering väggar och tak, badrum/gästtoalett, klinkergolv källarplan, belysning inomhus och utomhus med rörelsedetektorer, elektrisk garageport.
Bredband
Fiber
Övriga byggnader
Friggebod och bastu med spabad

Ekonomi

FASTIGHETSAVGIFT
10 425 kr/år
TAXERINGSVÄRDE
1 912 000 kr (Taxeringsår 2024)
BYGGNADENS TAXERINGSVÄRDE
1 428 000 kr
TAXERINGSKOD
220, Småhusenhet, bebyggd
UTTAGNA PANTBREV
331 800 kr

dokument

DRIFTKOSTNADER/ÅR

Uppvärmning
30 606 kr/år
VA
5 110 kr/år
Renhållning
3 744 kr/år
Försäkring
4 836 kr/år
Sotning
600 kr/år
Kommentar
Säljaren har en årsförbrukning på 12 503 kWh/år. I posten uppvärmning inkluderas även hushållsel. Detta är säljarens individuella driftkostnad och ska endast ses som en uppskattning.
DRIFTKOSTNAD TOTAL
44 896 kr/år
DRIFTKOSTNADEN AVSER
1 person

Energideklaration

Energideklaration
Beställd

INSKRIVNINGAR / PLANBESTÄMMELSER

Planbestämmelser
Stadsplan (1958-04-11)

VAD ÄR DIN BOSTAD VÄRD?

Daniel Johansson

"Jag hjälper dig gärna med en kostnadsfri värdering."

Daniel Johansson

Reg. fastighetsmäklare / Franchisetagare

VAD ÄR DIN BOSTAD VÄRD?

Jag hjälper dig gärna med en kostnadsfri värdering.

Hitta bostaden

Kunderna har sagt sitt
SVENSKA MÄKLARHUSET
ÄR DEN KEDJA SOM HAR
MEST NÖJDA KUNDER.

Enligt SKI - Svenskt Kvalitetsindex, där 1520 kunder i Sverige har tillfrågats om sin senaste bostadsaffär, är SMH - Svenska Mäklarhuset den mäklarkedja som placerar sig allra högst. Vill du också bli nöjd?

Kontakta oss idag oavsett som du ska sälja din bostad eller köpa en ny.

Till kontaktformuläret

Vi tar hjälp av cookies för att tillhandahålla våra tjänster. Genom att använda denna webbplats godkänner du att vi använder cookies.

VÄLKOMMEN!

Ljungsbergsgatan 29
Ljungsbergsgatan 29
Ljungsbergsgatan 29
Ljungsbergsgatan 29
Ljungsbergsgatan 29

HALL

Ljungsbergsgatan 29
Ljungsbergsgatan 29
Ljungsbergsgatan 29

ALLRUM

Ljungsbergsgatan 29
Ljungsbergsgatan 29
Ljungsbergsgatan 29

WC

Ljungsbergsgatan 29

VARDAGSRUM

Ljungsbergsgatan 29
Ljungsbergsgatan 29
Ljungsbergsgatan 29

KÖK

Ljungsbergsgatan 29
Ljungsbergsgatan 29
Ljungsbergsgatan 29

SOVRUM

Ljungsbergsgatan 29
Ljungsbergsgatan 29
Ljungsbergsgatan 29
Ljungsbergsgatan 29
Ljungsbergsgatan 29
Ljungsbergsgatan 29

BADRUM

Ljungsbergsgatan 29
Ljungsbergsgatan 29
Ljungsbergsgatan 29
Ljungsbergsgatan 29
Ljungsbergsgatan 29

ALTAN

Ljungsbergsgatan 29
Ljungsbergsgatan 29
Ljungsbergsgatan 29
Ljungsbergsgatan 29
Ljungsbergsgatan 29
Ljungsbergsgatan 29

OMGIVNING

Ljungsbergsgatan 29
Ljungsbergsgatan 29
Ljungsbergsgatan 29

TOMT

Ljungsbergsgatan 29

Planlösning

Ljungsbergsgatan 29
Ljungsbergsgatan 29