LJUSTERÖ

Västansjövägen 71

1,5 plans bostadrättsparhus i Ljusterö Skärgårdsby

Till salu

1,5 plans bostadrättsparhus i Ljusterö Skärgårdsby

"Se priset" Välkommen till detta bostadsrättsparhus i 1,5 plan belägen i Ljusterö Skärgårdsby precis bredvid centrala Ljusterö. I närheten finns stora skogsområden för rekreation och du har bussen i närheten.

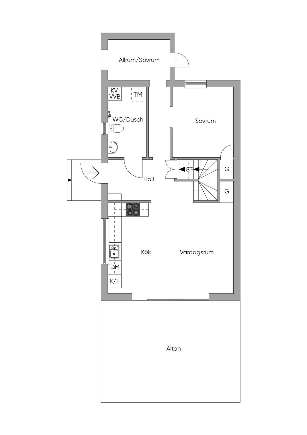
Huset är välplanerat och rymmer allt du behöver för en trivsam vardag. På de 2 planen finner vi tre rymliga sovrum, ett modernt badrum, ett ljust och luftigt vardagsrum samt ett fullt utrustat kök är detta hemmet för både avkoppling och sociala stunder. Möjligheterna är många i huset och det passar till alla typer av köpare. Här finns också möjlighet att njuta av egen tomt, vilket skapar en härlig känsla av frihet och rymd.

Utomhus bjuds du på en generös altan i ett soligt läge. Tomten ger dessutom gott om plats för lek, odling och mycket bra plats för parkeringsplatser på framsidan.

Ljusterö Skärgårdsby kombinerar det bästa av två världar: lugnet från skärgården och närheten till service och bekvämligheter. Med närhet till natur, hav och skärgårdsliv är detta en plats som verkligen andas livskvalitet. Dessutom att bo i hus med tryggheten med vad det innebär att bo i bostadsrätt.

Välkommen att kontakta någon av mäklarna för privat visning. Ring 070-7105252 eller 070-7184435för bokning

Visa mer
Västansjövägen 71 Västansjövägen 71 [email protected] Svenska Mäklarhuset

SNABBFAKTA

  • Acceptpris: 1 395 000 SEK
  • Boarea: 88 kvm föreningens information
  • Antal rum: 5 rum
  • Våning: 1 av 1, ej hiss
  • Avgift: 6 201 kr
  • Förening: Brf Ljusterö Skärgårdsby 2
  • Byggnadsår: 2019
  • Område: LJUSTERÖ, Österåker
Acceptpris

1 395 000 SEK

Visningar

Intresserad av visning? Vänligen kontakta mäklaren.

Intresseanmälan
Ansvarig mäklare

Wiveca Frisell

Reg. fastighetsmäklare / Franchisetagare

Allmänt om bostaden

Västansjövägen 71
Västansjövägen 71
Västansjövägen 71

Vardagsrum

Vardagsrummet har man idag valt att ha på övervåningen, ett rymligt rum med plats för stor soffgrupp med tillhörande möblemang, fönster för ljusinsläpp. Vita väggar och ekparkett. Fin trapp som leder ner till entréplanet.

Västansjövägen 71
Västansjövägen 71

Kök

Modernt och rymligt kök med bra arbetsytor och god förvaring. Fint fönster ovanför bänken och stora fönsterpartier längs med hela rummet, ut mot altanen. Rummet är anpassat för att dels ha som stort matrum alternativt mindre matbord och soffgrupp. Idag används det som matplats.

Den maskinella utrustningen består av full kyl och full frys, induktionshäll, fläkt, varmluftsugn och diskmaskin.

Västansjövägen 71
Västansjövägen 71
Västansjövägen 71

Altan

I soligt läge ligger altanen som nås från köket via stora skjutdörrar.

Västansjövägen 71

Badrum

Modernt badrum med kakel och klinker på golv, separat dusch, tvättmaskin, wc och handfat med komod. Fint fönster för ljusinsläpp. Moderna färgval.

Västansjövägen 71

Sovrum

Huset har idag 3 sovrum, 2 på nedre plan och 1 på övre plan. Ett av rummen på nedre plan har dubbeldörr så man kan nyttja rummet som tv-rum eller vardagsrum. I ett av rummen finns inbyggd garderob.

Västansjövägen 71
Västansjövägen 71
Västansjövägen 71

Hall

Välkomnande hall med klinker på golv och vita väggar. Hatthylla för avhängning och dörrar till förrådsutrymme under trappen som leder upp till övervårningen.

Västansjövägen 71

Tomten

Plan tomt med plats för lek och stoj eller varför inte planteringar.

Visa mer

Övriga bilder

Bild 13
Bild 12

Om bostaden

"Se priset" Välkommen till detta bostadsrättsparhus i 1,5 plan belägen i Ljusterö Skärgårdsby precis bredvid centrala Ljusterö. I närheten finns stora skogsområden för rekreation och du har bussen i närheten.

Huset är välplanerat och rymmer allt du behöver för en trivsam vardag. På de 2 planen finner vi tre rymliga sovrum, ett modernt badrum, ett ljust och luftigt vardagsrum samt ett fullt utrustat kök är detta hemmet för både avkoppling och sociala stunder. Möjligheterna är många i huset och det passar till alla typer av köpare. Här finns också möjlighet att njuta av egen tomt, vilket skapar en härlig känsla av frihet och rymd.

Utomhus bjuds du på en generös altan i ett soligt läge. Tomten ger dessutom gott om plats för lek, odling och mycket bra plats för parkeringsplatser på framsidan.

Ljusterö Skärgårdsby kombinerar det bästa av två världar: lugnet från skärgården och närheten till service och bekvämligheter. Med närhet till natur, hav och skärgårdsliv är detta en plats som verkligen andas livskvalitet. Dessutom att bo i hus med tryggheten med vad det innebär att bo i bostadsrätt.

Välkommen att kontakta någon av mäklarna för privat visning. Ring 070-7105252 eller 070-7184435för bokning

Visa mer

ALLMÄNT

BOENDEFORM
Lägenhet
UPPLÅTELSEFORM
Bostadsrätt
Lägenhetsnummer
10
Månadsavgift
6 201 kr
Antal rum
5 rum varav 3 sovrum + Kök
Boarea
88 m² föreningens information
Våning
1 av 1
Andel i förening
4,8523 %
Andel av årsavgift
4,85 %
Nettoskuldsättning
1 043 095 kr

Föreningen

Namn
Brf Ljusterö Skärgårdsby 2
ORGANISATIONSFORM/TYP
Bostadsrätt
Antal lägenheter
31 lägenheter
Äkta/Oäkta förening
Äkta
Överlåtelseavgift
1 470 kr
Pantsättningsavgift
588 kr
Allmänt om föreningen
Ettapp 2 i Ljusterö Skärgårdsby som slutfördes 2019 och är en populär förening.

Varje bostadsrättsinnehavare svarar enskilt för avgifter och kostnader för uppvärmning, vatten och avlopp samt tomtskötsel respektive kostnad för hemförsäkring, hushållsel, telefon, tv och internet.
Information om månadsavgiften
Månadsavgiften höjdes igen med 10% from 1 januari år 2024. Månadsavgiften höjdes igen from 1 januari år 2025 till 6004 kr från 5880 kr.
Tv och Bredband
Fiber indraget i varje hus.
Parkering
Varje enhet har egen parkering utanför sitt hus.

dokument

BYGGNADSFAKTA

Byggnadstyp
1½-plans parhus
BYGGNADSÅR
2019
Uppvärmning
Frånluftsvärmepump, vattenburen golvvärme på entréplan och elelement på övre pl
Hiss
Nej

Ekonomi

Acceptpris
1 395 000 kr
Pantsatt
Nej

DRIFT

DRIFTKOSTNADEN AVSER
4 personer

VAD ÄR DIN BOSTAD VÄRD?

Wiveca Frisell

"Jag hjälper dig gärna med en kostnadsfri värdering."

Wiveca Frisell

Reg. fastighetsmäklare / Franchisetagare

VAD ÄR DIN BOSTAD VÄRD?

Jag hjälper dig gärna med en kostnadsfri värdering.

Bolånekalkyl

Hitta bostaden

Kunderna har sagt sitt
SVENSKA MÄKLARHUSET
ÄR DEN KEDJA SOM HAR
MEST NÖJDA KUNDER.

Enligt SKI - Svenskt Kvalitetsindex, där 1520 kunder i Sverige har tillfrågats om sin senaste bostadsaffär, är SMH - Svenska Mäklarhuset den mäklarkedja som placerar sig allra högst. Vill du också bli nöjd?

Kontakta oss idag oavsett som du ska sälja din bostad eller köpa en ny.

Till kontaktformuläret

Vi tar hjälp av cookies för att tillhandahålla våra tjänster. Genom att använda denna webbplats godkänner du att vi använder cookies.

Allmänt om bostaden

Västansjövägen 71
Västansjövägen 71
Västansjövägen 71

Vardagsrum

Västansjövägen 71
Västansjövägen 71

Kök

Västansjövägen 71
Västansjövägen 71
Västansjövägen 71

Altan

Västansjövägen 71

Badrum

Västansjövägen 71

Sovrum

Västansjövägen 71
Västansjövägen 71
Västansjövägen 71

Hall

Västansjövägen 71

Övriga bilder

Bild 13

Bild 13

Bild 12

Bild 12