Gärdhem

Gärdhems-Artorp 4:4 - Tomt C

Stor hörntomt i Gärdhem , bara några minuter från centrum!

Till salu

Stor hörntomt i Gärdhem , bara några minuter från centrum!

Tomten om ca 1879 kvm är belägen i uppskattade och grönskande Gärdhem - En stor hörntomt med vida utsikt över åkrar och längst in på återvändsgatan!

I ett mycket barnvänligt läge med utsikt över åker och grönska finns ni denna rymliga tomt. Här kan ni bygga ert drömhus med valfri husleverantör bara med några minuter till trollhättans centrum med alla dess bekvämligheten! Kommunalt vatten via Gärdhems vattenförening och enskilt avlopp.

Positivt förhandsbesked har beviljats 2025 för uppförande av enbostadshus med komplementbyggnad. Fastighetsavstyckningen vinner laga kraft den 17 november 2025.

För pendlaren ligger området strategisk då både resecentrum, E45 & E44 nås bara några minuter bort. Göteborg nås på 35min med tåg(1 h med bil) & Uddevalla på 35 min.

Ett sällsynt läge och möjlighet!
Varmt välkomna att höra av er för mer information.

Visa mer
Gärdhems-Artorp 4:4  - Tomt C Gärdhems-Artorp 4:4 - Tomt C [email protected] Svenska Mäklarhuset

SNABBFAKTA

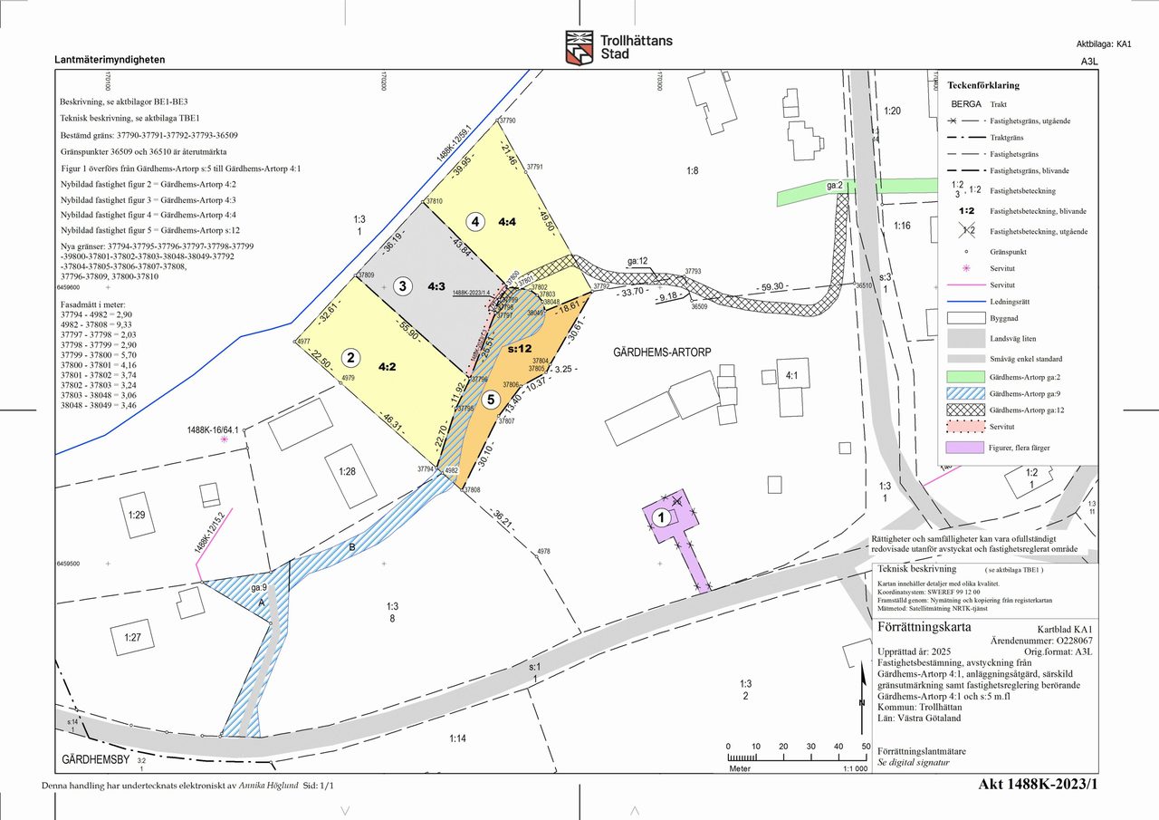
  • Fastighetsbeteckning: Gärdhems-Artorp 4:4 (Del av Gärdhems-Artorp 4:1)
  • Tomtarea: 1 879 kvm
  • Område: Gärdhem , Trollhättan

Visningar

Intresserad av visning? Vänligen kontakta mäklaren.

Intresseanmälan
Ansvarig mäklare

Helena Nyman Hjern

Reg. fastighetsmäklare
Assisterande

Sofia Arvidsson

Reg. fastighetsmäklare / Franchisetagare

Välkommen till Gärdhems-Artorp 4:4 - Tomt C

Övriga bilder

Välkomna till unik hörntomt i Gärdhem.
Tre tomter planeras, denna belägen till vänster i hörnet av dungen.
Utsikt över åkrar omkring.
Gärdhems-Artorp 4:4  - Tomt C
Anlagd återvändsgata in till de tre tomterna.
Gärdhems-Artorp 4:4  - Tomt C

ALLMÄNT

Fastighetsbeteckning
Gärdhems-Artorp 4:4 (Del av Gärdhems-Artorp 4:1)
Tomtarea
1 879 kvm
Vatten/avlopp
Kommunalt vatten, via Gärdhems vattenförening, anslutningsavgift bekostas av köparen. Idag finns anslutningspunkt klar och nedgrävd vid tomt.
Ungefärliga kostnader för anslutning: Grävningskostnad: ca 50 000 kr. Del i Gärdhems vattenförening: ca 5 000 kr. Anslutningsavgift till Trollhättans energi i tre delar, vilket är förbindelsepunktsavgift 12 600 kr (kostnad uppstår vid avstyckning), bostadsenhetsavgift 17 456 kr (uppstår vid bygglov) samt tomtyteavgift ca 31 000kr.
Tillkommande kostnad för nya vattenpumpar till vattenföreningen: ca 14 000kr.
Uppgifter inhämtade mars 2025 och är preliminära. För mer information se avstyckningsakten och ta kontakt med Gärdhems vattenföreningen/Trollhättan Energi AB. 

Avlopp
Tomten försäljs utan avlopp. Köparen ombesörjer inkoppling till enskilt avlopp.
Övrigt om tomt
Positivt förhandsbesked har beviljats 2025 för uppförande av enbostadshus med komplementbyggnad. 

Tomtens avstyckningen vinner laga kraft 17 november 2025.
Förrättningen är avslutad och uppgifterna är preliminära tills förrättningsbeslutet vunnit laga kraft. På bild och på platsen markeras de preliminära och tilltänkta gränserna.

Infartsväg/Vägförening
Vägen som anlagts som infartsväg in till tomten har bekostats av säljaren - Köparen kommer till säljaren betala en avgift för denna om 100 000 på tillträdesdagen, denna avgift är utöver tomtpriset.  Se mer information under avsnittet för Ga:9.
   
El/Fiber
Tillkommer gör kostnaden för framdragning av el och önskad fiber. 

Driftkostnader/fastighetsskatt
Observera reglerna gällande fastighetsskatt - Fastighetsskatt betalas av den som står som ägare den 1 januari respektive år. Fastighetsskatt för obebyggd tomt utgår om 1 % av taxeringsvärdet per år. Samfällighetsavgifter kommer även utgå, ännu ej fastställda.

INSKRIVNINGAR / PLANBESTÄMMELSER

Servitut, etc
Gärdhems-Artorp S:12 (Ny samfällighet, område 5 på förrättningskartan)
Ändamål: Grönområde,
Andel 1
Ytan kommer ägas och underhålls gemensamt av de tre nyskapade tomterna. Eventuellt framtida samfällighetsavgift avseende drift och underhåll.

Gärdhems-Artorp ga:9
Ändamål: Infartsväg.
Andel 2
Samfällighetsavgift avseende drift och underhåll kommer belasta fastigheten, samfällighetsavgift ej fastställd.
Utbyggnationen av den tillkommande delen, markerad med B i förrättningskartan, ska färdigställas av ägarna till blivande Gärdhems-Artorp 4:2-4:4 och ska färdigställas senast 5 år efter det att anläggningsbeslutet och ersättningsbeslutet vunnit laga kraft.

Gärdhems-Artorp ga:12
Ändamål: Vattenledning
Andel 1
Kostnaden för anläggningens utförande, drift och underhåll ska fördelas mellan deltagande fastigheter enligt andelstalen.

Servitut 1488K-2023/1.4 (Nytt servitut)
Ändamål: Vattenledning, rätt att anlägga och förnya vattenledning från tomten till ga:12
Till förmån för Gärdhems-Artorp 4:4.
Belastar: Gärdhems-Artorp 4:3

Servitut för användning av infartsväg till åkermark.

Andelstal, servitut och delägarskap är preliminära tills avstyckningen vunnit laga kraft.

dokument

Allmänt om området

Gärdhem är ett mindre samhälle beläget naturnära och endast 10 minuter från centrum. Här återfinns främst villor och lantbruk placerade med fina naturnära och vidsträckta utsikter. 

Cykelvägen vid namn "Gröna stigen" tar invånarna smidigt till centrum, resecentrum, barnomsorg och livsmedelsbutik. Området ligger strategisk placerat för pendlaren då det ligger i en knytpunkt mellan vägar mot centrum, Alingsås/Lidköping, Halvorstorp och Velanda.

Även resecentrum, E45 & E44 nås bara några minuter bort med bil. Göteborg nås på 35 min med tåg, 1 h med bil och Uddevalla nås på 35 min.

Gemensamt ägd yta till höger om vägen.

VAD ÄR DIN BOSTAD VÄRD?

Helena Nyman Hjern

"Jag hjälper dig gärna med en kostnadsfri värdering."

Helena Nyman Hjern

Reg. fastighetsmäklare

VAD ÄR DIN BOSTAD VÄRD?

Jag hjälper dig gärna med en kostnadsfri värdering.

Hitta bostaden

Kunderna har sagt sitt
SVENSKA MÄKLARHUSET
ÄR DEN KEDJA SOM HAR
MEST NÖJDA KUNDER.

Enligt SKI - Svenskt Kvalitetsindex, där 1520 kunder i Sverige har tillfrågats om sin senaste bostadsaffär, är SMH - Svenska Mäklarhuset den mäklarkedja som placerar sig allra högst. Vill du också bli nöjd?

Kontakta oss idag oavsett som du ska sälja din bostad eller köpa en ny.

Till kontaktformuläret

Vi tar hjälp av cookies för att tillhandahålla våra tjänster. Genom att använda denna webbplats godkänner du att vi använder cookies.

Välkomna till unik hörntomt i Gärdhem.

Välkomna till unik hörntomt i Gärdhem.

Tre tomter planeras, denna belägen till vänster i hörnet av dungen.

Tre tomter planeras, denna belägen till vänster i hörnet av dungen.

Utsikt över åkrar omkring.

Utsikt över åkrar omkring.

Gärdhems-Artorp 4:4  - Tomt C
Anlagd återvändsgata in till de tre tomterna.

Anlagd återvändsgata in till de tre tomterna.

Gärdhems-Artorp 4:4  - Tomt C
Gärdhems-Artorp 4:4  - Tomt C
Sommartid.

Sommartid.

Sommartid.

Sommartid.

Vårbild från området.

Vårbild från området.

Sommarbild från området!

Sommarbild från området!

Gärdhems-Artorp 4:4  - Tomt C
Gärdhems-Artorp 4:4  - Tomt C
Gemensamt ägd yta till höger om vägen.

Gemensamt ägd yta till höger om vägen.