Trollhättan

Hovslagaregatan 17

Trevlig och rymlig 2:a med balkong!

Såld

Trevlig och rymlig 2:a med balkong!

NYTT LÄGRE PRIS! Välkomna till Hovslagaregatan 17! En trevlig tvårumslägenhet med balkong i ett tilltalande läge och med härligt härligt ljusinsläpp från två väderstreck.

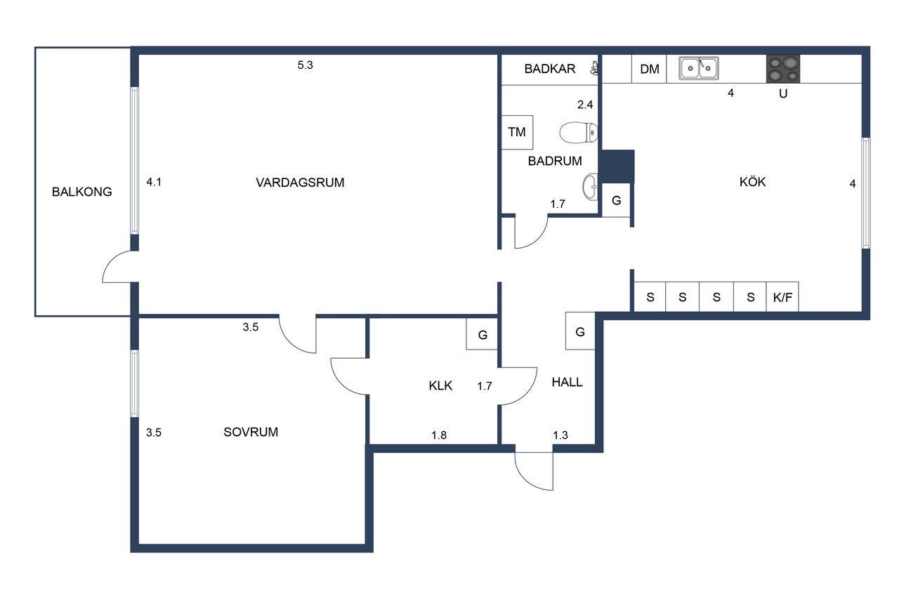
Planlösningen är tilltalande med goda förvaringsmöjligheterna i den genomgående klädkammaren! Även i köket finner ni gott om utrymme/förvaring och vid köksbordet har ni utsikt mot föreningens gård med lekplats och grönområde. Stamrenoverat badrum med tvättmaskin.

Här bor ni med närhet till livsmedelsaffärer, promenadstråk och skolor. Busskommunikationen avgår kontinuerligt och tar er till Trollhättans centrum på ca 15 minuter!

Stigbygeln är en bostadsrättsförening med bra läge i Kronogården.

Välkomna att anmäla er på visning!

Visa mer
Slutpris

300 000 SEK

Ansvarig mäklare

Helena Nyman Hjern

Reg. fastighetsmäklare

Vi tar hjälp av cookies för att tillhandahålla våra tjänster. Genom att använda denna webbplats godkänner du att vi använder cookies.

På Hovslagaregatan bor man med närhet både till barnomsorg, kommunikation och promenadstråk.

På Hovslagaregatan bor man med närhet både till barnomsorg, kommunikation och promenadstråk.

Utsikt mot förskolan intill.

Utsikt mot förskolan intill.

Stamrenoverat badrum med tvättmaskin.

Stamrenoverat badrum med tvättmaskin.

Hovslagaregatan 17
Sovrum

Sovrum

Hovslagaregatan 17
En ljus tvårumslägenhet med fönster i två väderstreck.

En ljus tvårumslägenhet med fönster i två väderstreck.

Från sovrummet samt hallen nås denna klädkammare praktiskt.

Från sovrummet samt hallen nås denna klädkammare praktiskt.

Hovslagaregatan 17
Hovslagaregatan 17
Äldre sommarbild.

Äldre sommarbild.

Välkommen till Hovslagaregatan 17!

Välkommen till Hovslagaregatan 17!

Rymligt kök med plats för matbord.

Rymligt kök med plats för matbord.

Hovslagaregatan 17
Hovslagaregatan 17
Äldre sommarbild.

Äldre sommarbild.