Gärdhem

Gärdhems-Artorp 4:2 - Tomt A

Naturnära idyll med goda pendlingsmöjligheter!

Till salu

Naturnära idyll med goda pendlingsmöjligheter!

Har du drömt om ett nytt hus i barnvänligt och lantligt läge men med närheten till centrum och alla dess bekvämligheter?

Nu finns möjligheten att förvärva denna nyavstyckade tomt belägen i uppskattade och grönskande Gärdhem . Med vida utsikt över åkrar och inne på återvändsgata återfinns denna rejäla tomt om 2005 kvm. Här finns gott om plats för stort hus, garage och trädgård!

Positivt förhandsbesked har beviljats 2025 för uppförande av enbostadshus med komplementbyggnad.

För pendlaren ligger området strategisk då både resecentrum, E45 & E44 nås bara några minuter bort. Göteborg nås på 35min med tåg(1 h med bil) & Uddevalla på 35 min.
Här erbjuds en sällsynt chans att uppföra ert drömhus i samklang med natur och lugn.

Varmt välkomna att höra av er för mer information.

Visa mer
Gärdhems-Artorp 4:2 - Tomt A Gärdhems-Artorp 4:2 - Tomt A [email protected] Svenska Mäklarhuset

SNABBFAKTA

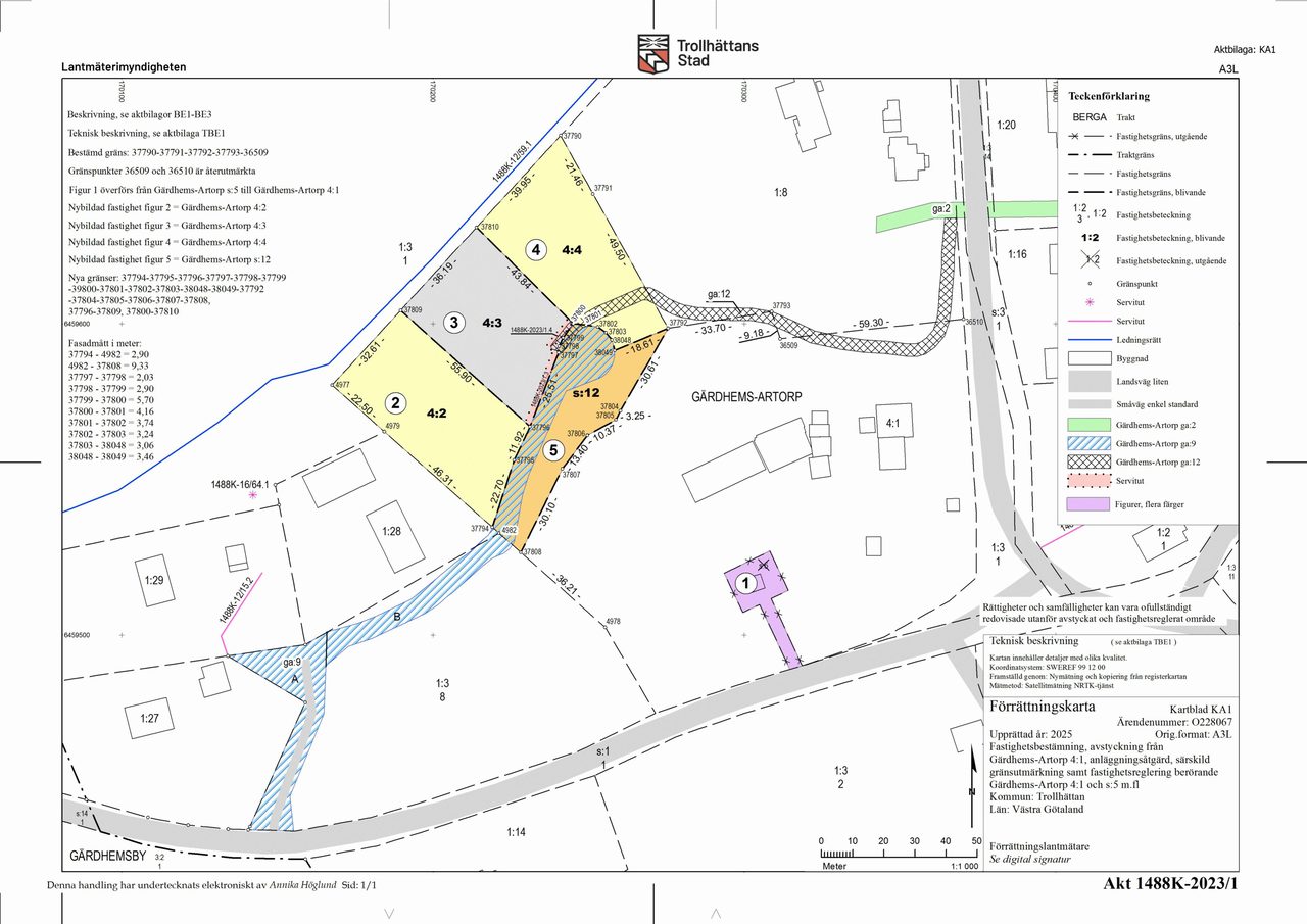
  • Fastighetsbeteckning: Gärdhems-Artorp 4:2
  • Utgångspris: 950 000 SEK
  • Tomtarea: 2 005 kvm
  • Område: Gärdhem , Trollhättan
Utgångspris

950 000 SEK

Visningar

Intresserad av visning? Vänligen kontakta mäklaren.

Intresseanmälan
Ansvarig mäklare

Helena Nyman Hjern

Reg. fastighetsmäklare
Assisterande

Sofia Arvidsson

Reg. fastighetsmäklare / Franchisetagare

Välkommen till Gärdhems-Artorp 4:2 - Tomt A

Övriga bilder

Välkomna till Gärdhem - Naturnära och grönskande.
På sensommaren är det lika vackert när åkern är slagen.
Nyanlagd återvändsgata in till de tre tomterna.
Gärdhems-Artorp 4:2 - Tomt A
Sommartid.
Sommartid.

ALLMÄNT

Fastighetsbeteckning
Gärdhems-Artorp 4:2
Tomtarea
2 005 kvm
Vatten/avlopp
Kommunalt vatten, via Gärdhems vattenförening, anslutningsavgift bekostas av köparen. Idag finns anslutningspunkt klar och nedgrävd vid tomt.
Ungefärliga kostnader för anslutning: Grävningskostnad: ca 50 000 kr. Del i Gärdhems vattenförening: ca 5 000 kr. Anslutningsavgift till Trollhättans energi i tre delar, vilket är förbindelsepunktsavgift 12 600 kr (kostnad uppstår vid avstyckning), bostadsenhetsavgift 17 456 kr (uppstår vid bygglov) samt tomtyteavgift ca 31 000kr.
Tillkommande kostnad för nya vattenpumpar till vattenföreningen: ca 14 000kr.
Uppgifter inhämtade mars 2025 och är preliminära. För mer information se avstyckningsakten och ta kontakt med Gärdhems vattenföreningen/Trollhättan Energi AB. 

Avlopp
Tomten försäljs utan avlopp. Köparen ombesörjer inkoppling till enskilt avlopp.
Övrigt om tomt
Positivt förhandsbesked finns för uppförande av enbostadshus med komplementbyggnad(beviljat 2025). 

Infartsväg/Vägförening
Vägen som anlagts som infartsväg in till tomten har bekostats av säljaren - Köparen kommer till säljaren betala en avgift för denna om 100 000 på tillträdesdagen, denna avgift är utöver tomtpriset.  Se mer information under avsnittet för Ga:9.

El/Fiber
Tillkommer gör kostnaden för framdragning av el och önskad fiber. 
   
Driftkostnader/fastighetsskatt
Observera reglerna gällande fastighetsskatt - Fastighetsskatt betalas av den som står som ägare den 1 januari respektive år. Fastighetsskatt för obebyggd tomt utgår om 1 % av taxeringsvärdet per år. Samfällighetsavgifter kommer utgå, ännu ej fastställda.

INSKRIVNINGAR / PLANBESTÄMMELSER

Servitut, etc
Gärdhems-Artorp S:12 (Område 5 på förrättningskartan)
Ändamål: Grönområde,
Andel 1
Ytan ägs och underhålls gemensamt av Gärdhems-Artorp 4:2-4:4. Eventuellt framtida samfällighetsavgift avseende drift och underhåll.

Gärdhems-Artorp ga:9
Ändamål: Infartsväg.
Andel 2
Samfällighetsavgift avseende drift och underhåll kommer belasta fastigheten, samfällighetsavgift ej fastställd.
Utbyggnationen av den tillkommande delen, markerad med B i förrättningskartan, ska färdigställas av ägarna till Gärdhems-Artorp 4:2-4:4 och ska färdigställas senast 5 år efter det att anläggningsbeslutet och ersättningsbeslutet vunnit laga kraft.

Gärdhems-Artorp ga:12
Ändamål: Vattenledning
Andel 1
Kostnaden för anläggningens utförande, drift och underhåll ska fördelas mellan deltagande fastigheter enligt andelstalen.

Servitut 1488K-2023/1.3 - FÖRMÅN
Ändamål: Vattenledning, rätt att anlägga och förnya vattenledning från tomten till ga:12
Till förmån för Gärdhems-Artorp 4:2.
Belastar: Gärdhems-Artorp 4:3

Ekonomi

Utgångspris
950 000 kr

dokument

Allmänt om området

Gärdhem är ett mindre samhälle beläget naturnära och endast 10 minuter från centrum. Här återfinns främst villor och lantbruk placerade med fina naturnära och vidsträckta utsikter. 

Cykelvägen vid namn "Gröna stigen" tar invånarna smidigt till centrum,
resecentrum, barnomsorg och livsmedelsbutik. Området ligger strategisk placerat för pendlaren då det ligger i en knytpunkt mellan vägar mot centrum, Alingsås/Lidköping, Halvorstorp och Velanda.

Även resecentrum, E45 & E44 nås bara några minuter bort med bil. Göteborg nås på 35 min med tåg, 1 h med bil och Uddevalla nås på 35 min.

VAD ÄR DIN BOSTAD VÄRD?

Helena Nyman Hjern

"Jag hjälper dig gärna med en kostnadsfri värdering."

Helena Nyman Hjern

Reg. fastighetsmäklare

VAD ÄR DIN BOSTAD VÄRD?

Jag hjälper dig gärna med en kostnadsfri värdering.

Bolånekalkyl

Hitta bostaden

Kunderna har sagt sitt
SVENSKA MÄKLARHUSET
ÄR DEN KEDJA SOM HAR
MEST NÖJDA KUNDER.

Enligt SKI - Svenskt Kvalitetsindex, där 1520 kunder i Sverige har tillfrågats om sin senaste bostadsaffär, är SMH - Svenska Mäklarhuset den mäklarkedja som placerar sig allra högst. Vill du också bli nöjd?

Kontakta oss idag oavsett som du ska sälja din bostad eller köpa en ny.

Till kontaktformuläret

Vi tar hjälp av cookies för att tillhandahålla våra tjänster. Genom att använda denna webbplats godkänner du att vi använder cookies.

Välkomna till Gärdhem - Naturnära och grönskande.

Välkomna till Gärdhem - Naturnära och grönskande.

På sensommaren är det lika vackert när åkern är slagen.

På sensommaren är det lika vackert när åkern är slagen.

Nyanlagd återvändsgata in till de tre tomterna.

Nyanlagd återvändsgata in till de tre tomterna.

Gärdhems-Artorp 4:2 - Tomt A
Sommartid.

Sommartid.

Sommartid.

Sommartid.

Sensommar

Sensommar

Sensommar

Sensommar

Sensommar

Sensommar

Gärdhems-Artorp 4:2 - Tomt A
Gärdhems-Artorp 4:2 - Tomt A
Gärdhems-Artorp 4:2 - Tomt A
Gärdhems-Artorp 4:2 - Tomt A
Gärdhems-Artorp 4:2 - Tomt A
Gärdhems-Artorp 4:2 - Tomt A
Gärdhems-Artorp 4:2 - Tomt A
Gemensamt ägd yta till höger om vägen.

Gemensamt ägd yta till höger om vägen.

Välkomna att kontakta ansvarig mäklare för mer information.

Välkomna att kontakta ansvarig mäklare för mer information.