Vargön

Limbodavägen 4 (Tomt 14)

Tomt i naturnära och barnvänligt läge av Vargön!

Till salu

Tomt i naturnära och barnvänligt läge av Vargön!

Möjlighet att förvärva tomt om 792 kvm i underbara och barnvänliga Vargön. Utefter Nordkroksvägen och bara någon minut från Granåsskolan F-6, Hallevi idrottsplats och med gångavstånd till Vänerns strand.

Området med dess böljande gatusystem och mysiga lekplats är perfekt för alla åldrar! Denna tomt erbjuder dessutom ett avskilt läge.

Det naturnära området erbjuder ett lugn perfekt för alla åldrar och fina promenadstråk i direkt anslutning. Vackra Halleberg och bokskogen ligger inom gångavstånd samtidigt som Vargön centrum erbjuder både livsmedelsbutik, pizzeria, apotek och vårdcentral. Vänersborg centrum nås på ca 10 min och Trollhättans centrum på ca 15 min.

Tillkommer till tomtpriset gör kostnad för gemensamhetsanläggning, fiber, VA- och elanslutning.

Visa mer
Limbodavägen 4 (Tomt 14) Limbodavägen 4 (Tomt 14) [email protected] Svenska Mäklarhuset

SNABBFAKTA

  • Fastighetsbeteckning: VÄNERSBORG LIMBODA 14
  • Högstbjudande: 510 000 SEK
  • Tomtarea: 792 kvm
  • Område: Vargön, Vänersborg
Högstbjudande

510 000 SEK

Visningar

Intresserad av visning? Vänligen kontakta mäklaren.

Intresseanmälan
Ansvarig mäklare

Helena Nyman Hjern

Reg. fastighetsmäklare
Assisterande

Daniel Johansson

Reg. fastighetsmäklare / Franchisetagare

Välkommen till Limbodavägen 4 (Tomt 14)

Övriga bilder

Limbodavägen 4 (Tomt 14)
Välkomna till tomtområdet Limboda!
Limbodavägen 4 (Tomt 14)
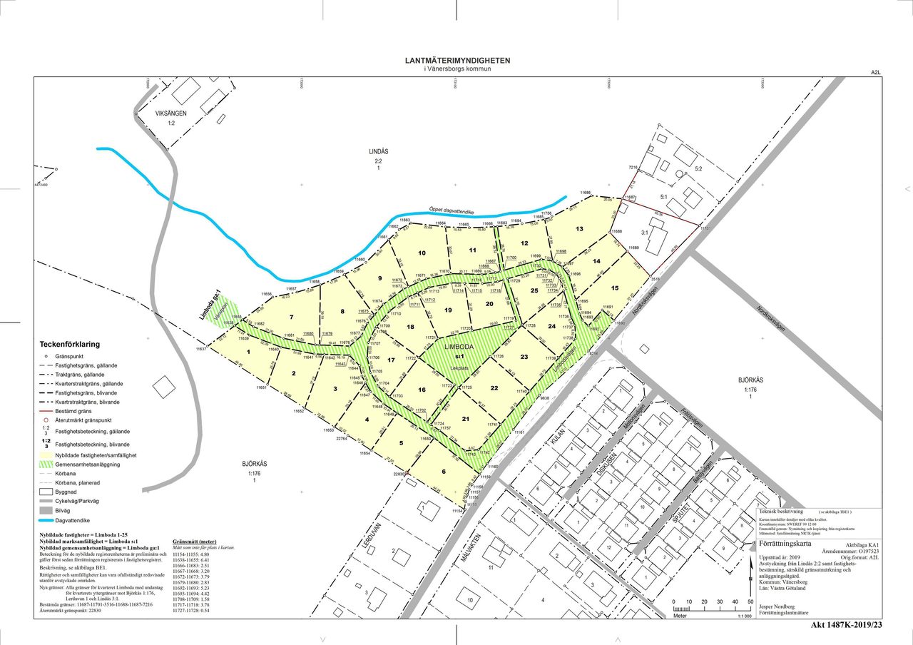
Förrättningskarta 2019-05-31
Plankarta med bestämmelser.

ALLMÄNT

Fastighetsbeteckning
VÄNERSBORG LIMBODA 14
Tomtarea
792 kvm
Vatten/avlopp
Saknas - Kommunalt vatten / kommunalt avlopp finns förberett.
Övrigt om tomt
ALLMÄN INFORMATION
Detaljplanen möjliggör för småhus med en maximal byggnadsarea om 35% av tomtstorleken. Byggnader med källare får ej uppföras och på denna tomt är högsta byggnadshöjd 6 meter.

För mer information se bland annat detaljplan, plankartor och planbestämmelser.


FÖRMEDLINGSINFORMATION
Tomten försäljs exklusive vatten/avlopp. Anslutningspunkt till kommunala VA-systemet finns vid tomtgräns. VA-anläggningen inom områdets gemensamma ytor ägs gemensamt via gemensamhetsanläggning och sköts av områdets samfällighet.

Tillkommande kostnader:

- Kommunal avgift för VA (Erläggs tillsammans med avgift för gemensamhetsanläggningen till säljaren vid tillträdet. Läs mer under gemensamhetsanläggning). Tomtköparen ansvarar för att bekosta enskild vattenmätare. 

- Elanslutning via Vattenfall. Preliminär avgiftsnivå för år 2025 är 54 125kr(anslutningspunkt inom 200m), tillkommer gör kostnad för anslutningsarbetet på egna fastigheten. För mer information kontakta Vattenfall. 

- Fiber

- Månadsavgift samfällighet 500kr/mån (Uppgifter inhämtade 2025-05-13)

Fastighetsskatt
Fastighetsskatt för obebyggd tomt utgår årligen om 1 % av taxeringsvärdet och betalas av den som står som ägare den 1 januari respektive år.

Tomterna försäljs av privatperson. 

I denna förmedling härstammar informationen från markägaren - Mäklaren ansvarar för annonsering samt förmedlingen av den obebyggda tomten. 


GEMENSAMHETSANLÄGGNING/SERVITUT
Samtliga ägare i området är delägare i vägsamfällighet och gemensamhetsanläggning. Gemensamhetsanläggningen ansvarar för bl.a. gemensamma gator, lekplats, naturmark inkl. VA-anläggning, pumpanläggning och el-anläggningar. Samfällighetsföreningen förvaltar gemensamhetsanläggning samt marksamfälligheten. Varje delägare åläggs att betala samfällighetsavgift, månadsavgift samfällighet 500kr/mån (Uppgifter inhämtade 2025-05-13).

Gemensamhetsanläggningen/samfällighetsföreningen har en gemensam anslutning med tillhörande mätarplats för gemensamma mätare(Varje tomtköpare bekostar och ansvarar för egen mätare). Gemensamhetsanläggningen/samfällighetsföreningen fakturerar löpande fasta årsavgifter och rörliga avgifter.

I samband med tomttillträdet tillkommer avgift om 220 000kr. Avgiften avser kostnader utlagda för gemensamhetsanläggning, va-anslutningsavgift samt ledningsnät.

PROCESSEN
Tillträdet av tomterna sker cirka 1,5 månad efter genomfört kontrakt.

INSKRIVNINGAR / PLANBESTÄMMELSER

Servitut, etc
Gemensamhetsanläggning VÄNERSBORG LIMBODA GA:1
Avser: Vägar, elledning och/eller belysning, vattenförsörjning, avloppsanläggning och grönområde.

Samfällighet VÄNERSBORG LIMBODA S:1, andel 4 %.
Planbestämmelser
Detaljplan för del av Lindås 2:2, Vargön, Vänersborg. 1487K-534.

Vattenskyddsområde - Vänersborgsviken och Göta Älv Vattenskyddsområde
Akt: 1487K-P1/2022
Beslutsdatum: 2022-05-16
Senaste ändring: 2025-02-10

Ekonomi

Högstbjudande
510 000 kr
FASTIGHETSAVGIFT
3 910 kr/år
TAXERINGSVÄRDE
391 000 kr (Taxeringsår 2024)
TAXERINGSKOD
210, Småhusenhet, tomtmark

dokument

Allmänt om området

Samhället Vargön växte fram under 1800-talet i samband med att en järnvägsstation och ett pappersbruk anlades. Samhället som kantas av vacker natur och vyer ligger med platåbergen Hunneberg och halleberg i öst, Göta Älvs utlopp i väster och vackra slätter i söder. Hunneberg och Hallerberg erbjuder underbara vandringsstråk, grottor och rasbranter samtidigt som ni finner intressanta Kungsjaktsmuseét - populärt i alla åldrar. 

I samhället finner ni både flertalet förskolor, två grundskolor, Hallevi idrottsanläggning och simhall. Vargön centrum erbjuder även livsmedelsbutik, pizzeria, apotek och vårdcentral. 

Detta är ett område omtyckt av alla! Vackra Nordkrokens badplats finner dessutom i norr och inom cykelavstånd samtidigt som samhället är blandat av bebyggelse från blandade tidsåldrar.  

Vargön ligger beläget cirka 5 km från Vänersborg centrum och 11 km från Trollhättans centrum. Goda kommunikationsmöjligheter finns både med bil, cykel och buss.

VAD ÄR DIN BOSTAD VÄRD?

Helena Nyman Hjern

"Jag hjälper dig gärna med en kostnadsfri värdering."

Helena Nyman Hjern

Reg. fastighetsmäklare

VAD ÄR DIN BOSTAD VÄRD?

Jag hjälper dig gärna med en kostnadsfri värdering.

Bolånekalkyl

Hitta bostaden

Kunderna har sagt sitt
SVENSKA MÄKLARHUSET
ÄR DEN KEDJA SOM HAR
MEST NÖJDA KUNDER.

Enligt SKI - Svenskt Kvalitetsindex, där 1520 kunder i Sverige har tillfrågats om sin senaste bostadsaffär, är SMH - Svenska Mäklarhuset den mäklarkedja som placerar sig allra högst. Vill du också bli nöjd?

Kontakta oss idag oavsett som du ska sälja din bostad eller köpa en ny.

Till kontaktformuläret

Vi tar hjälp av cookies för att tillhandahålla våra tjänster. Genom att använda denna webbplats godkänner du att vi använder cookies.

Limbodavägen 4 (Tomt 14)
Välkomna till tomtområdet Limboda!

Välkomna till tomtområdet Limboda!

Limbodavägen 4 (Tomt 14)
Förrättningskarta 2019-05-31

Förrättningskarta 2019-05-31

Plankarta med bestämmelser.

Plankarta med bestämmelser.