Göta

Bigården 154

Radhus med bostadsrätt i omtyckta Bigården!

Till salu

Radhus med bostadsrätt i omtyckta Bigården!

Varmt välkomna till Bigården 154! Här bor du med ett gavel-läge om totalt ca 100 kvm fördelat på två plan, stor uteplats med sol från morgon till sen eftermiddag samt en inhängnad gräsmatta.

Visa mer
Bigården 154 Bigården 154 [email protected] Svenska Mäklarhuset

SNABBFAKTA

  • utgångspris: 1 200 000 SEK
  • Boarea: 98.5 kvm
  • Antal rum: 4 rum
  • Avgift: 7 111 kr. Inklusive media och varmvattenberedarförsäkring
  • Förening: Brf Ryrsjön Nr 1
  • Byggnadsår: 1974
  • Område: Göta, Lilla Edet
utgångspris

1 200 000 SEK

Visningar

26 Mar 16:30 - 17:00
Visningsanmälan krävs. Varmt välkomna att boka in er!
Ansvarig mäklare

Evelina Martinsson

Reg. fastighetsmäklare | Franchisetagare

Välkommen till Bigården 154

Hall

Hall med plats för hatthylla för avhängning av ytterkläder. Hela entréplanet består av nya laminatgolv och nymålade väggar sedan sommaren 2024.

Bigården 154
Bigården 154

Kök

Till höger om hallen ligger kök med plats för matbord samt ett intilliggande stort skafferi/förråd. Köksluckor i ljusgrå kulör och bänkskivor av trä. Maskinellt utrustat med hel kyl och frys, diskmaskin samt spisugn. I förrådet intill står varmvattenberedaren och detta är ett perfekt utrymme att använda som skafferi.

Bigården 154
Bigården 154
Bigården 154
Bigården 154

Vardagsrum

Stort vardagsrum med gott om plats för soffgrupp och övrig möblering. Stora fönster i söderläge gör rummet ljust och inbjudande. Härifrån tar man sig ut till altanen som byggdes 2023. Staketet runtom tomten ramar in ytan på ett fint sätt.

Bigården 154
Bigården 154

Toalett entréplan

Intill hallen ligger bostadens ena toalett. På golvet ligger ett klinkergolv och väggarna är vitmålade.

Bigården 154

Sovrum

På övre plan har man bostadens samtliga tre sovrum. Det finns plats att möblera in garderober om man önskar men man har även möjlighet att ha sin klädgarderob i klädkammaren på detta våningsplan.

Bigården 154
Bigården 154
Bigården 154
Bigården 154

Badrum

Bostadens badrum är beläget på övre plan. Det renoverades ca 2007 med våtrumsmatta på golv och väggar. Inrett med badkar, toalett, handfat med kommod, väggskåp, tvättmaskin från ca 2017-2018 samt en praktisk arbetsbänk.

Bigården 154
Bigården 154

Övriga bilder

Bigården 154
Bigården 154
Bigården 154
Bigården 154

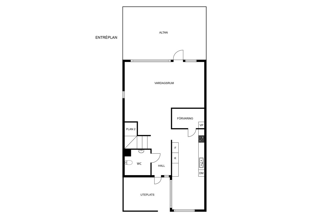
Planlösning

Bigården 154
Bigården 154

ALLMÄNT

BOENDEFORM
Lägenhet
UPPLÅTELSEFORM
Bostadsrätt
Lägenhetsnummer
L154
Månadsavgift
7 111 kr, Inklusive media och varmvattenberedarförsäkring
Antal rum
4 rum varav 3 sovrum
Boarea
98.5 m²
Andel i förening
1,29 %
Nettoskuldsättning
211 731 kr, Som underlag till beräkningen har föreningens senaste årsredovisning (2024) använts.
Bilplats
Ingår en parkeringsplats i månadsavgiften. Extra parkeringar eller en fast parkeringsplats går att hyra för 150 kr/månad. Kö till garage med 450 kr /månaden. Det finns totalt 56 st garage.
Gratis gästparkeringar.

Föreningen

Namn
Brf Ryrsjön Nr 1
ORGANISATIONSFORM/TYP
Bostadsrätt
Antal lägenheter
99 lägenheter, 1 lokal
Tillåter föreningen juridisk person
Nej
Äger föreningen marken
Ja
Äkta/Oäkta förening
Äkta
Överlåtelseavgift
1 480 kr
Pantsättningsavgift
592 kr
Tv och Bredband
Telia
Gemensamma utrymmen
Samlingslokal finns att hyra.
Parkering
Det ingår en parkeringsplats i månadsavgiften. Extra parkeringar eller fast parkeringsplats går att hyra för 150 kr/månad. Kö till garage finns. Garageplats kostar 450 kr /månaden. Det finns totalt 56 st garage.
Gratis gästparkeringar.

dokument

BYGGNADSFAKTA

Byggnadstyp
2-plans radhus
BYGGNADSÅR
1974
Uppvärmning
Direkt el + luftvärmepump
Fönster
3-glas
Hiss
Nej

Ekonomi

utgångspris
1 200 000 kr
Pantsatt
Ja

DRIFT

Uppvärmning
31 000 kr/år
Försäkring
2 500 kr/år
DRIFTKOSTNAD TOTAL
33 500 kr/år
DRIFTKOSTNADEN AVSER
4 personer
Kommentar
Bostadens driftskostnader är baserade på kostnaderna säljaren hade under 2023. Försäkringskostnaden är schablonberäknad. Driftskostnaderna för en köpare kan variera exempelvis beroende på hur bostaden används, hur många som bor i den och vilken typ av abonnemang som väljs.
Elförbrukning
12 917 kWh/år
Energideklaration
Utförd 2019-11-08
Energiklass
E
PRIMÄRENERGITAL
130 kWh per kvm och år

Allmänt om området

Göta är beläget 3 km, strax söder om Lilla Edet och tillhör Lilla Edets kommun. Här finner du bland annat Ryrsjön som är en bad- och fiskesjö med härlig natur runtom. Rid-, fotbolls- och brukshundsklubb finns allt inom gångavstånd.

Delar som också ingår i kommunen är Lilla Edet centrum, Lödöse, Nygård, Ström, Västerlanda och Hjärtum. Det bor ca 14 000 personer i hela kommunen. 

För den som gillar skog och natur har man kommit rätt. I Lilla Edet finns skogar, strövområden, stigar längs med älvpromenaden och flertalet bad-och fiskesjöar. Dessutom finns ett av landets bästa laxfiske i Lilla Edet. Det finns givetvis en mängd andra olika aktiviteter såsom ridskola, fotbollsklubbar, gymkedjor, minigolfbana etc. 

I Göta finns Ryrsjöskolan - Göta (F-6). Och i kommunen finns det flera andra grundskolor- både kommunala och fristående.
*Fuxernaskolan - centrum (F-9),
*Nya skolan - friskola i centrum (F-6),
*Strömskolan - Ström (F-6),
*Tingbergskolan - Lödöse (F-6)

Kommunala förskolor inom kommunen finns både i  Göta, Centrum, Ström, Hjärtum,  Västerlanda, Nygård och Lödöse. Fristående förskolor och dagbarnvårdare finns i centrala Lilla Edet, Ström och Lödöse. För mer information gå in på www.lillaedet.se där det även finns kontaktuppgifter.

Kommunikation

Från Göta finns bussförbindelser både till Trollhättan och Göteborgs området. Pendelstationen i Lödöse tar dig till Göteborg på 25 minuter och Trollhättan på 15 minuter. Buss 420 tar ca 15 minuter mellan Göta och Lödöse pendelstation. 
Via E45 tar du dig snabbt och lätt till Göteborg på ca 30 minuter och Trollhättan ca 20 minuter med bil.

Närservice

I centrala Lilla Edet finner du den närservice som behövs i vardagen. Här finns matbutiker, vårdcentral, tandläkare, Apotek, blomsterbutiker, café, restauranger, gym, bank, Radio-TV, Systembolaget, frisörsalonger mm. Elon och Derome finns också i centrala Lilla Edet.

Övrigt

Lilla Edets kommunhus finns i centrala Lilla Edet. Där finner du
medborgarservice och kommunala förvaltningar.  Göta älvdalen är ett av de områden i Sverige där risken för skred är stor. Läs mer på https://www.lillaedet.se/bygga-bo-och-miljo/skred/om-skred-i-vart-omrade

VAD ÄR DIN BOSTAD VÄRD?

Evelina Martinsson

"Jag hjälper dig gärna med en kostnadsfri värdering."

Evelina Martinsson

Reg. fastighetsmäklare | Franchisetagare

VAD ÄR DIN BOSTAD VÄRD?

Jag hjälper dig gärna med en kostnadsfri värdering.

Bolånekalkyl

Hitta bostaden

Kunderna har sagt sitt
SVENSKA MÄKLARHUSET
ÄR DEN KEDJA SOM HAR
MEST NÖJDA KUNDER.

Enligt SKI - Svenskt Kvalitetsindex, där 1520 kunder i Sverige har tillfrågats om sin senaste bostadsaffär, är SMH - Svenska Mäklarhuset den mäklarkedja som placerar sig allra högst. Vill du också bli nöjd?

Kontakta oss idag oavsett som du ska sälja din bostad eller köpa en ny.

Till kontaktformuläret

Vi tar hjälp av cookies för att tillhandahålla våra tjänster. Genom att använda denna webbplats godkänner du att vi använder cookies.

Hall

Bigården 154
Bigården 154

Kök

Bigården 154
Bigården 154
Bigården 154
Bigården 154

Vardagsrum

Bigården 154
Bigården 154

Toalett entréplan

Bigården 154

Sovrum

Bigården 154
Bigården 154
Bigården 154
Bigården 154

Badrum

Bigården 154
Bigården 154

Övriga bilder

Bigården 154
Bigården 154
Bigården 154
Bigården 154

Planlösning

Bigården 154
Bigården 154