Lilla Edet Centrum

Kullåsgatan 1B

3 rum och kök i centrala Lilla Edet

Såld

3 rum och kök i centrala Lilla Edet

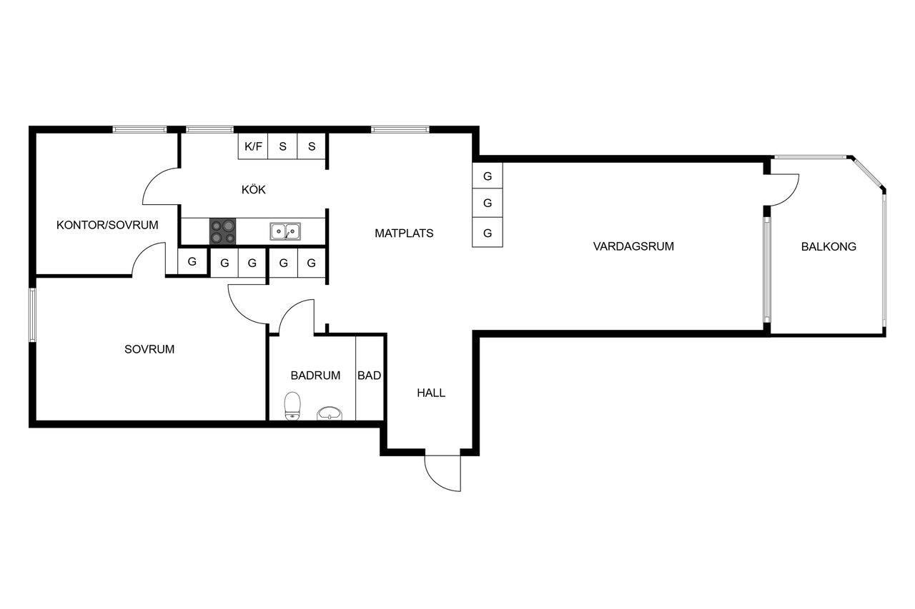
Bostadsrätten som är belägen på våning två är i originalskick och erbjuder en köpare att forma och sätta sin egen personliga prägel. Lägenheten består av tre rum och kök plus en rymlig inglasad balkong som fungerar som ett extrarum vår-höst. Fönster i tre väderstreck ger ett härligt ljusinsläpp och ljusflöde i lägenheten.

Gångavstånd till centrum, barnomsorg, skola samt all den närservice man kan tänkas behöva till vardags samt buss-kommunikationer som enkelt tar dig både till Trollhättan och Lödöse station på under 30 minuter.

Visa mer
Ansvarig mäklare

Evelina Martinsson

Reg. fastighetsmäklare | Franchisetagare

Vi tar hjälp av cookies för att tillhandahålla våra tjänster. Genom att använda denna webbplats godkänner du att vi använder cookies.

Exteriör

Kullåsgatan 1B
Kullåsgatan 1B
Kullåsgatan 1B
Kullåsgatan 1B
Kullåsgatan 1B
Kullåsgatan 1B

Hall

Kullåsgatan 1B
Kullåsgatan 1B

Vardagsrum

Före
Efter AI-genererat innehåll
Kullåsgatan 1B
Kullåsgatan 1B
Kullåsgatan 1B
Kullåsgatan 1B

Balkong

Före
Efter AI-genererat innehåll
Kullåsgatan 1B

Matplats

Före
Efter AI-genererat innehåll

Kök

Kullåsgatan 1B
Kullåsgatan 1B
Kullåsgatan 1B
Kullåsgatan 1B

Sovrum

Före
Efter AI-genererat innehåll
Kullåsgatan 1B
Kullåsgatan 1B

Badrum

Kullåsgatan 1B

Planlösning

Kullåsgatan 1B