Liljeholmskajen

Hildebergsvägen 4

Såld

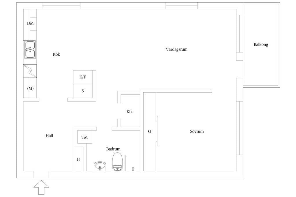
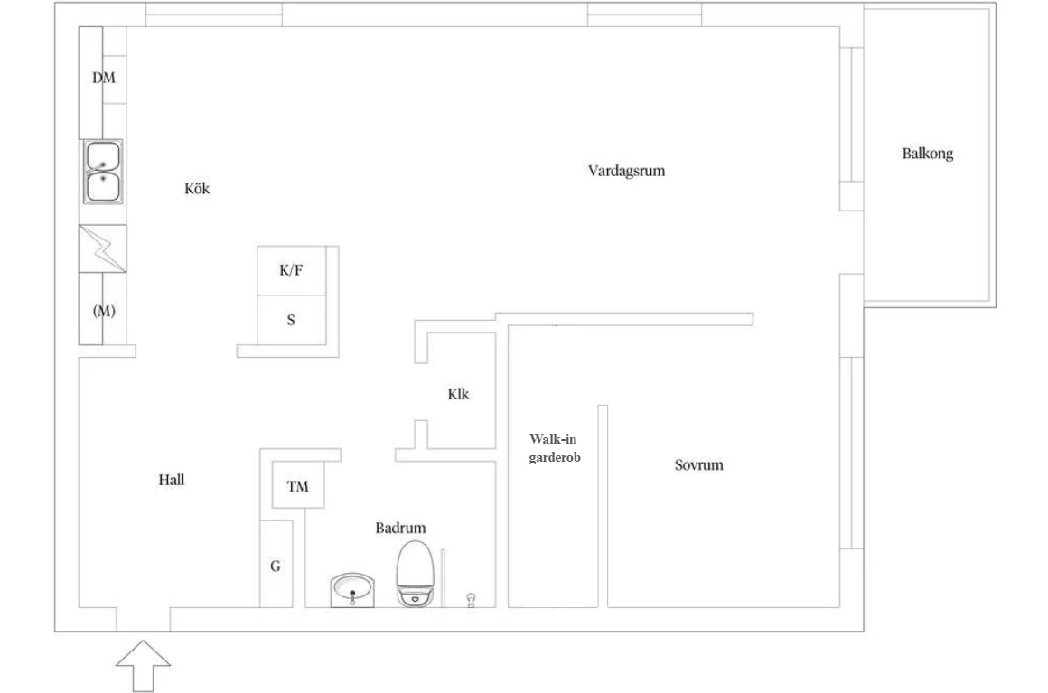
Välkommen till denna fantastiska tvåa som erbjuder genomgående hög standard, tilltalande öppen planlösning och en stor balkong med härlig utsikt! Detta är en ljus bostad med hemtrevlig känsla tack vare många fönster och fina ytskikt. I hallen finns goda avhängningsytor samt förvaring i en garderob och efter hallen nås en klädkammare för ytterligare förvaring. Vidare erbjuds ett sovrum som har gott om ljusinsläpp och här finns även en stor Walk In Closet som underlättar förvaring. Lägenheten har också ett helkaklat badrum med klinkergolv som är utrustat med tvättmaskin, torktumlare, WC, platsbyggt badkar med duschvägg, spegelskåp, kommod och golvvärme. Bostaden har ett stort fullutrustat kök med bänkskiva i kompositsten och kaklad stänkskiva, rostfria och energieffektiva vitvaror såsom kyl/frys, diskmaskin, fläkt, induktionshäll, ugn och micro. Därefter finns ett rymligt vardagsrum med gott om plats för både soffa och ett stort matbord, här flödar ljuset fritt tack vare flertalet fönster. Till lägenheten hör även nyttjanderätten till ett källarförråd.

BRF Sjövikshöjden är en ekonomiskt stark förening med 84 st lägenheter som äger marken och har tvättstuga, cykel/barnvagnsförråd, miljöstation, gemensamhetslokal och en gästlägenhet som kostar 250 kr/dygn. Belåningen ligger på 9 317 kr/kvm och föreningen amorterar kontinuerligt på sina lån enligt plan. Dessutom har föreningen 40 st garagesplatser varav 10 st platser med laddstolpe och även 9 st parkeringsplatser utomhus. Byggnaden har en hög standard och är uppförd av JM som färdigställde huset 2006.

Fastigheten är belägen på idylliska Hildeberg där det är nära till det mesta. Goda kommunikationer från busshållplats precis intill men även närhet till Årstaberg som erbjuder pendeltåg, tvärbana och bussterminal, alternativt tunnelbanan i Liljeholmen centrum. Från Hildeberg har man promenadavstånd till all service man behöver såsom mataffärer, gym och ett stort utbud av caféer och restauranger med uteserveringar. Storstadens puls finner du på andra sidan Liljeholmsbron/Årstabron. Det bästa av två världar! Här lever du i en unik boendemiljö med grönskande parker, strandpromenad, bad- och båtbryggor samt sjökrogar m.m. precis utanför porten. Nyligen öppnade en exklusiv rooftop-restaurang nere på Liljeholmskajen samt padelbanor i bergrumsgaraget.

Visa mer
Slutpris

4 050 000 SEK

Ansvarig mäklare

Vi tar hjälp av cookies för att tillhandahålla våra tjänster. Genom att använda denna webbplats godkänner du att vi använder cookies.

Vardagsrum

Hildebergsvägen 4
Hildebergsvägen 4
Hildebergsvägen 4
Hildebergsvägen 4
Hildebergsvägen 4
Hildebergsvägen 4
Hildebergsvägen 4
Hildebergsvägen 4

Balkong

Hildebergsvägen 4
Hildebergsvägen 4
Hildebergsvägen 4
Hildebergsvägen 4

Kök

Hildebergsvägen 4
Hildebergsvägen 4
Hildebergsvägen 4
Hildebergsvägen 4
Hildebergsvägen 4

Sovrum

Hildebergsvägen 4
Hildebergsvägen 4

Walk In Closet

Hildebergsvägen 4

Badrum

Hildebergsvägen 4
Hildebergsvägen 4

Klädkammare

Hildebergsvägen 4
Hildebergsvägen 4

Hall

Hildebergsvägen 4
Hildebergsvägen 4

Övriga bilder

Hildebergsvägen 4
Hildebergsvägen 4
Hildebergsvägen 4
Hildebergsvägen 4
Hildebergsvägen 4
Hildebergsvägen 4
Hildebergsvägen 4
Hildebergsvägen 4
Hildebergsvägen 4
Hildebergsvägen 4
Hildebergsvägen 4
Hildebergsvägen 4
Hildebergsvägen 4
Alternativ planritning

Alternativ planritning

Planritning

Planritning