Svenstorp

Viktor Lejons väg 8

Stort och välplanerat 1,5 planshus med naturnära omgivningar.

Såld

Stort och välplanerat 1,5 planshus med naturnära omgivningar.

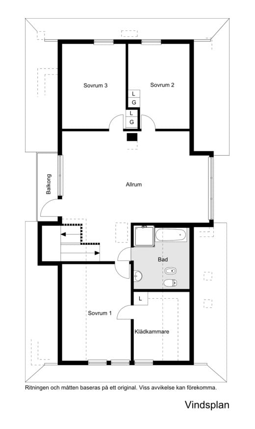
Välkommen till detta väldisponerade 1,5 planshus beläget i natursköna omgivningar. Med en yta på hela 193 kvadratmeter erbjuder detta stora hus generösa utrymmen och en smart planlösning.

Redan i entrén möts du av en rymlig hall, följt av en gäst-wc. Det generösa köket, som gränsar till matsalen, är perfekt för både vardag och fest. Det stora sällskapsrummet är ljust och luftigt med flertalet fönster som släpper in naturligt ljus. Härifrån har du också utgång till en trivsam uteplats och den härliga trädgården på baksidan av huset, samt ett inglasat uterum. Här finns också tvättstuga med förråd i anslutning, som idag används som kontor. På ovanvåningen finns ett allrum med utgång till balkong där du kan koppla av och njuta av den vackra omgivningen. Här finns 3-4 sovrum, varav ett har en praktisk walk-in closet i anslutning. Det finns även ett badrum med både dusch och badkar. Huset ligger på en trevlig tomt med härlig uteplats på baksidan, pool, gräsmatta samt garage.

Med sin naturnära omgivning, generösa ytor och smarta planlösning är detta hus perfekt för den stora familjen eller den som värdesätter utrymme och komfort. Missa inte chansen att bli ägare till denna bostad på Viktor Lejons väg i Svenstorp .

Välkomna att boka in er på visning!

Visa mer
Slutpris

3 200 000 SEK

Ansvarig mäklare
Assisterande

Anna Lundström

Reg. fastighetsmäklare / Partner

Vi tar hjälp av cookies för att tillhandahålla våra tjänster. Genom att använda denna webbplats godkänner du att vi använder cookies.

Utemiljö

Viktor Lejons väg 8
Viktor Lejons väg 8
Viktor Lejons väg 8

Entré

Viktor Lejons väg 8

Gäst wc

Viktor Lejons väg 8

Kök

Viktor Lejons väg 8
Viktor Lejons väg 8

Matsal

Viktor Lejons väg 8

Sällskapsrum

Viktor Lejons väg 8
Viktor Lejons väg 8
Viktor Lejons väg 8
Viktor Lejons väg 8

Uterum

Viktor Lejons väg 8

Tvättstuga

Viktor Lejons väg 8

Allrum

Viktor Lejons väg 8

Sovrum 1

Viktor Lejons väg 8
Viktor Lejons väg 8

Sovrum 2

Viktor Lejons väg 8

Sovrum 3

Viktor Lejons väg 8

Kontor

Viktor Lejons väg 8

Badrum

Viktor Lejons väg 8

Förråd

Viktor Lejons väg 8

Övriga bilder

Fastighetskarta

Fastighetskarta

Planlösning

Viktor Lejons väg 8
Viktor Lejons väg 8