Eknäs

Björknäs skolväg 8D

Härligt och familjevänligt radhus i tre plan med generösa ytor och trädgård.

Såld

Härligt och familjevänligt radhus i tre plan med generösa ytor och trädgård.

Välkommen till Björknäs skolväg 8D – en fantastisk bostad på hela 143 kvm fördelat över tre våningsplan med 5 rum, perfekt för den moderna familjen som söker både utrymme och komfort. Detta charmiga hem är beläget i ett mycket eftertraktat område i Nacka, med en mysig trädgård som erbjuder en avkopplande liten oas för både vuxna och barn.

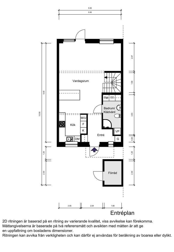
Husets planlösning är både funktionell och inbjudande, med fina sällskapsytor och genomtänkta detaljer och gott om förvaringsutrymmen. På entréplan möts du av ett välkomnande allrum med gott om plats för både soffgrupp och matsalsmöbel, perfekt för sociala tillställningar. Den öppna planlösningen mellan kök och vardagsrum skapar ett naturligt flöde genom hemmet, med stora fönsterpartier.

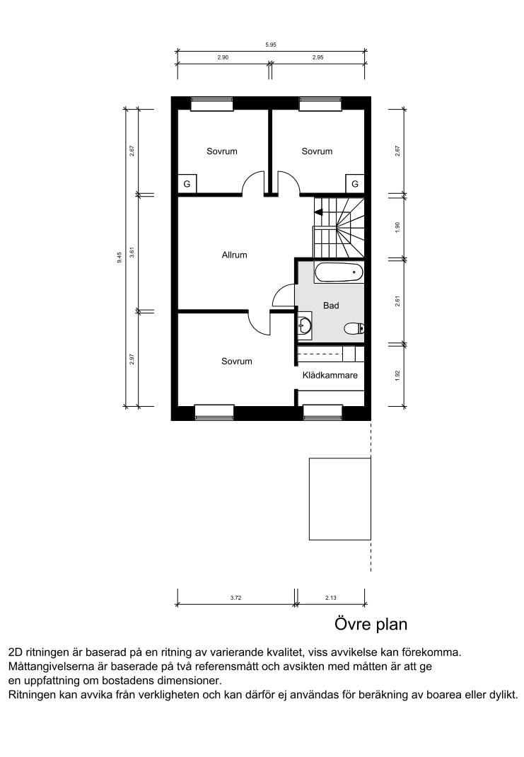
På de övre våningarna hittar du fyra rymliga sovrum, varav två med spegelvänd planlösning och härligt ljusinsläpp från den trädgårdsomslutna baksidan. På det översta planet finns också ett stort, flexibelt rum med välplanerad skiljevägg, ytterligare ett förråd och ett vackert takfönster som kan öppnas upp till en fransk balkong.

Området kring Björknäs skolväg är lugnt och familjevänligt, med närhet till både natur, skolor och goda kommunikationer till centrala Stockholm. Detta hem kombinerar det bästa av två världar – en naturnära omgivning och ett stilrent, välplanerat hem där varje detalj har sin plats.

Visa mer
Slutpris

6 950 000 SEK

Ansvarig mäklare

Mia Leijon

Reg. fastighetsmäklare / Franchisetagare
Assisterande

Hugo Norgren

Reg. fastighetsmäklare

Vi tar hjälp av cookies för att tillhandahålla våra tjänster. Genom att använda denna webbplats godkänner du att vi använder cookies.

Välkommen!

Björknäs skolväg 8D
Björknäs skolväg 8D

Bostadsbeskrivning

Björknäs skolväg 8D

Entré

Björknäs skolväg 8D
Björknäs skolväg 8D

Kök

Björknäs skolväg 8D

Matplats

Björknäs skolväg 8D
Björknäs skolväg 8D

Vardagsrum

Björknäs skolväg 8D

Uteplatser

Björknäs skolväg 8D
Björknäs skolväg 8D
Björknäs skolväg 8D
Björknäs skolväg 8D

Badrum & Tvättstuga

Björknäs skolväg 8D

Allrum

Björknäs skolväg 8D
Björknäs skolväg 8D

Föräldrasovrum

Björknäs skolväg 8D
Björknäs skolväg 8D

Badrum övre plan

Björknäs skolväg 8D

Sovrum 2 & 3

Björknäs skolväg 8D
Björknäs skolväg 8D

Studioplan

Björknäs skolväg 8D
Björknäs skolväg 8D
Björknäs skolväg 8D
Björknäs skolväg 8D

Föreningen

Björknäs skolväg 8D
Björknäs skolväg 8D
Björknäs skolväg 8D
Björknäs skolväg 8D

Planlösning

Björknäs skolväg 8D
Björknäs skolväg 8D
Björknäs skolväg 8D