Bromma / Stora Mossen

Sobelgränd 11

Vackert parhus med en generös trädgård belägen i Stora Mossens villa idyll

Såld

Vackert parhus med en generös trädgård belägen i Stora Mossens villa idyll

Välkommen till detta fantastiska bostadsrättsparhus, vackert beläget i det lummiga och eftertraktade området Stora Mossen, i den populära föreningen Brf Stora Mossen 4. Här bor du med friheten och känslan av ett eget hus, men utan oron som kan följa med att äga helt själv, tack vare den trygga bostadsrättsformen.

Den grönskande trädgården med sin inbjudande altan som ligger i ett soligt läge på baksidan erbjuder en härlig plats för både avkoppling och sociala stunder. Tack vare att ingen huskropp ligger intill upplevs trädgården både privat och insynsskyddad. Den breda uppfarten rymmer dessutom enkelt två bilar, en uppskattad detalj i vardagen.

På entréplanet möts du av husets hjärta, ett stort och luftigt vardagsrum med fönster i två väderstreck och generös takhöjd som skapar en härlig rymd. Väggarna är målade i en ljus kulör som harmonierar vackert med ekparketten. Här finns gott om plats för både soffgrupp, matbord, fåtölj och tv-möbel. Från vardagsrummet nås trädgården med altan, perfekt för grillkvällar, utomhusmiddagar och lek.

Det stora köket erbjuder gott om förvaring i skåp och utdragslådor i vit kulör, samt generösa arbetsytor med bänkskiva i rostfritt stål. Här finns side-by-side kyl och frys, spis, ugn, vinkyl, diskmaskin och köksfläkt, allt du behöver för att laga mat med stil och funktion. Vid matplatsen finns utrymme för ett matbord för sex personer.

Badrummet på entréplan är helkaklat med grått klinkergolv och vitkaklade väggar, varav en vägg i elegant blågrå ton. Här finns WC, handfat, dusch med glasvägg, samt tvättmaskin och torktumlare med praktisk avlastningsyta och överskåp.

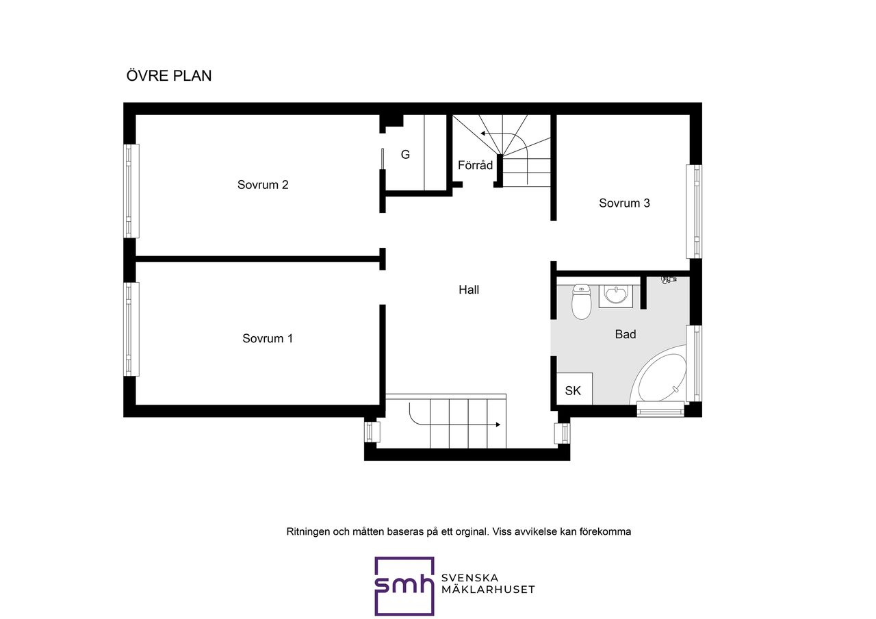
På övre plan finns tre generösa sovrum samt ett allrum som kan användas som tv-rum, kontor eller lekyta. Det ljusa och fräscha badrummet är helkaklat med mörkgrått klinkergolv och vita väggar. Här finns inbyggd WC, handfat, dusch med vikdörrar samt jacuzzi, perfekt för avkoppling efter en lång dag. Fönster i två väderstreck ger ett härligt ljusinsläpp.

På vinden finner du ett stort allrum eller extra sovrum med bra förvaring i form av kattvindar, perfekt som tonårsrum, gästrum eller hemmakontor.

Det finns gästparkeringar hos föreningen. Här bor du med naturen runt hörnet, där skogen bjuder in till promenader, löpturer och stilla stunder i grönskan. I närheten finns förskolor, Bromma gymnasium, Stora Mossens T-bana samt det populära utegymmet vid Stora Mossens IP. Dessutom öppnar Garpes Hemköp i området.

Bara några hundra meter bort finns en stor pulkabacke för vinterlek, charmiga kolonilotter och föreningens egna lekplatser, gungor, sandlåda och uteplatser, allt som gör vardagen både bekväm och trivsam.

Detta är det perfekta hemmet för dig som drömmer om ett modernt, lättskött och familjevänligt parhus – med villakänsla men utan det fulla ägaransvaret.

Kontakta ansvarig mäklare för mer information och boka din privatvisning redan idag!

Visa mer
Slutpris

12 700 000 SEK

Ansvarig mäklare

Zaga Lisse

Reg. fastighetsmäklare

Vi tar hjälp av cookies för att tillhandahålla våra tjänster. Genom att använda denna webbplats godkänner du att vi använder cookies.

Fasad

Sobelgränd 11

Trädgård

Sobelgränd 11
Sobelgränd 11
Sobelgränd 11
Sobelgränd 11

Vardagsrum

Sobelgränd 11
Sobelgränd 11
Sobelgränd 11
Sobelgränd 11

Kök

Sobelgränd 11

Matplats

Sobelgränd 11
Sobelgränd 11
Sobelgränd 11

Duschrum/WC

Sobelgränd 11

Trappa upp till övervåningen

Sobelgränd 11
Sobelgränd 11

Sovrum 1

Sobelgränd 11
Sobelgränd 11

Sovrum 2

Sobelgränd 11

Sovrum 3

Sobelgränd 11

Badrum övre plan

Sobelgränd 11

Allrum

Sobelgränd 11
Sobelgränd 11

Allrum vind

Sobelgränd 11
Sobelgränd 11

Entré

Sobelgränd 11

Förråd

Sobelgränd 11
Sobelgränd 11

Övriga bilder

Sobelgränd 11
Alviksvägen 43

Alviksvägen 43

Alviksvägen 43

Alviksvägen 43

Planlösning

Sobelgränd 11
Sobelgränd 11
Sobelgränd 11